Собрали компактные двухкомнатные квартиры, в которых есть все: гардеробные, дополнительные зоны отдыха, рабочие места. Вдохновляйтесь!
1. Квартира, где отказались от гостиной
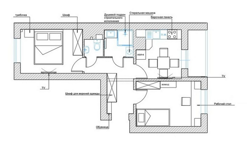
В этой квартире живут мама и ее десятилетняя дочь. Изначально стояла задача обустроить традиционный «долгоиграющий» интерьер, где были бы две отдельные жилые комнаты. Поскольку квартира находится в панельке, несущие стены ограничили возможности перепланировки. Тогда приняли решение отказаться от гостиной в пользу еще одной полноценной спальни, а общее пространство осталось только на кухне.
В отделке использовали спокойные оттенки и привычные материалы. На кухне в качестве фона выступает белый цвет, он же присутствует и в спальне мамы, а для детской выбрали яркое сочетание серого и зеленого. Несмотря на то, что основной стиль здесь — скандинавский, он построен на сочетании разных фактур, принтов и оттенков, а для создания уюта использовали большое количество текстиля.
12 фото

Планировка квартиры

Дизайн: Мария Пивоварова. Фото: Инна Каблукова

Дизайн: Мария Пивоварова. Фото: Инна Каблукова

Дизайн: Мария Пивоварова. Фото: Инна Каблукова

Дизайн: Мария Пивоварова. Фото: Инна Каблукова

Дизайн: Мария Пивоварова. Фото: Инна Каблукова

Дизайн: Мария Пивоварова. Фото: Инна Каблукова

Дизайн: Мария Пивоварова. Фото: Инна Каблукова

Дизайн: Мария Пивоварова. Фото: Инна Каблукова

Дизайн: Мария Пивоварова. Фото: Инна Каблукова

Дизайн: Мария Пивоварова. Фото: Инна Каблукова

Дизайн: Мария Пивоварова. Фото: Инна Каблукова
2. Двушка с бюджетным, но эффектным ремонтом
Поскольку эта квартира не для постоянного пребывания, бюджет на ремонт был ограничен. Дизайнеру предстояло создать стильный и комфортный интерьер в рамках указанной суммы, а также обустроить несколько систем хранения, выделить спальню и предусмотреть дополнительные зоны для сна. В первоначальной планировке квартира имела одну комнату, кухню, ванную и гардеробную. От последней решили отказаться в пользу изолированной спальни. Она отделена от гостиной стеклянной перегородкой и дополнительно закрывается шторами. Помимо кровати, в этой мини-комнате есть шкаф для одежды и место для откидной гладильной доски. На кухне организовали еще одну зону отдыха: для нее нашлось место благодаря компактному гарнитуру.
11 фото

Планировка квартиры

Дизайн: Анна Мальцева. Фото: Евгений Гнесин

Дизайн: Анна Мальцева. Фото: Евгений Гнесин

Дизайн: Анна Мальцева. Фото: Евгений Гнесин

Дизайн: Анна Мальцева. Фото: Евгений Гнесин

Дизайн: Анна Мальцева. Фото: Евгений Гнесин

Дизайн: Анна Мальцева. Фото: Евгений Гнесин

Дизайн: Анна Мальцева. Фото: Евгений Гнесин

Дизайн: Анна Мальцева. Фото: Евгений Гнесин

Дизайн: Анна Мальцева. Фото: Евгений Гнесин

Дизайн: Анна Мальцева. Фото: Евгений Гнесин
3. Квартира в старом фонде с комфортной планировкой
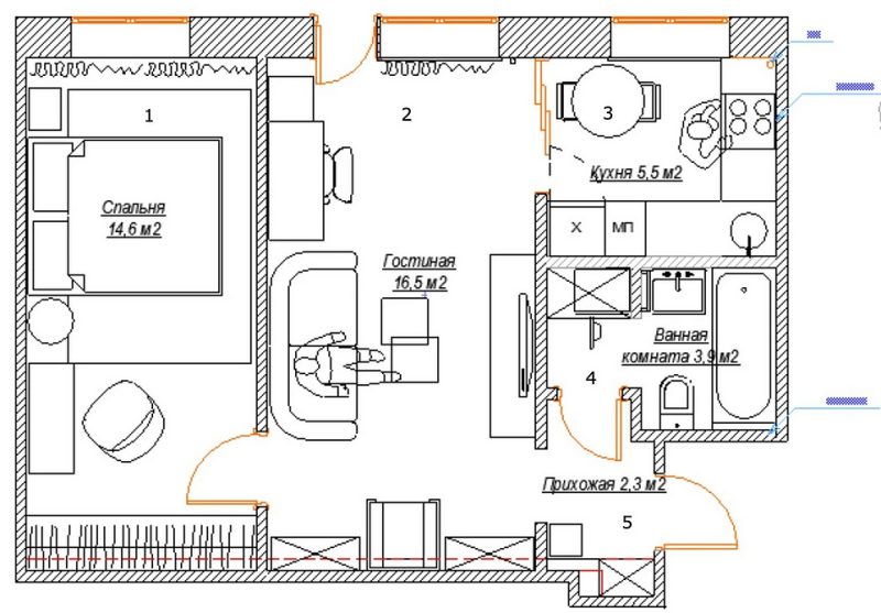
Площадь этой двухкомнатной квартиры в доме 1960 года небольшая — всего 42 квадратных метра. На них дизайнер сумела оформить полноценную спальню, гостиную зону, функциональную кухню и вместительные системы хранения. В компактном интерьере решили отказаться от традиционной светлой нейтральной палитры в пользу более яркой, скомбинировав несколько насыщенных оттенков. Их дополнили активные принты и обилие декора. Стиль тоже выбрали нетипичный для малогабариток — не сканди или минимализм, а неоклассику.
8 фото

Планировка квартиры

Дизайн: Елена Иванова. Стиль: Яна Яхина, Полина Рожкова. Фото: Фото: Дина Александрова. Стиль: Яна Яхина, Полина Рожкова

Дизайн: Елена Иванова. Стиль: Яна Яхина, Полина Рожкова. Фото: Фото: Дина Александрова. Стиль: Яна Яхина, Полина Рожкова

Дизайн: Елена Иванова. Стиль: Яна Яхина, Полина Рожкова. Фото: Фото: Дина Александрова. Стиль: Яна Яхина, Полина Рожкова

Дизайн: Елена Иванова. Стиль: Яна Яхина, Полина Рожкова. Фото: Фото: Дина Александрова. Стиль: Яна Яхина, Полина Рожкова

Дизайн: Елена Иванова. Стиль: Яна Яхина, Полина Рожкова. Фото: Фото: Дина Александрова. Стиль: Яна Яхина, Полина Рожкова

Дизайн: Елена Иванова. Стиль: Яна Яхина, Полина Рожкова. Фото: Фото: Дина Александрова. Стиль: Яна Яхина, Полина Рожкова

Дизайн: Елена Иванова. Стиль: Яна Яхина, Полина Рожкова. Фото: Фото: Дина Александрова. Стиль: Яна Яхина, Полина Рожкова
4. Небольшая евродвушка с ярким интерьером
Эта квартира сдавалась с ремонтом от застройщика. Перепланировку не делали, скорректировав только оформление и добавив интерьеру функциональности. Например, в гостиной заказчики хотели видеть обеденную и рабочую зоны, а в спальне — гардеробную и место для будущей детской кроватки. Все это удалось сделать в рамках изначального планировочного решения. В спальне уже был предусмотрен небольшой закуток под гардеробную, а гостиная была очень светлой благодаря двум окнам.
Для отделки выбрали обои под покраску, поскольку такой вариант оформления может сгладить возможные трещины во время «усадки» новостройки. В палитре использовали яркие цвета: насыщенный оттенок морской волны, желто-оранжевый, темно-зеленый, а также обои с активным узором в спальне. Остальная цветовая гамма — нейтральная, она гармонично оттеняет цветовые акценты.
10 фото

Планировка квартиры

Дизайн: Мила Генч. Фото: Екатерина Гейц. Декор: Анастасия Власова

Дизайн: Мила Генч. Фото: Екатерина Гейц. Декор: Анастасия Власова

Дизайн: Мила Генч. Фото: Екатерина Гейц. Декор: Анастасия Власова

Дизайн: Мила Генч. Фото: Екатерина Гейц. Декор: Анастасия Власова

Дизайн: Мила Генч. Фото: Екатерина Гейц. Декор: Анастасия Власова

Дизайн: Мила Генч. Фото: Екатерина Гейц. Декор: Анастасия Власова

Дизайн: Мила Генч. Фото: Екатерина Гейц. Декор: Анастасия Власова

Дизайн: Мила Генч. Фото: Екатерина Гейц. Декор: Анастасия Власова

Дизайн: Мила Генч. Фото: Екатерина Гейц. Декор: Анастасия Власова
5. Яркая квартира, в которой не тесно
Интерьер этой двушки был создан для молодого человека, который живет один, но любит принимать гостей. Несмотря на небольшой метраж, квартира не выглядит тесной и оснащена всем необходимым для комфортного быта. По желанию заказчика дизайнер обустроил отдельную гостиную, кухню со столовой зоной, а также изолированную спальню. Санузел увеличили и предусмотрели в нем вместительное хранение, также удалось сохранить полноценную прихожую.
Палитра интерьера построена на комбинации белого и бежевого (они используются в качестве базы) и более яркого зеленого оттенка в роли акцента.
7 фото

Планировка квартиры

Дизайн: Иван Поздняков. Фото: Игорь Кублин

Дизайн: Иван Поздняков. Фото: Игорь Кублин

Дизайн: Иван Поздняков. Фото: Игорь Кублин

Дизайн: Иван Поздняков. Фото: Игорь Кублин

Дизайн: Иван Поздняков. Фото: Игорь Кублин

Дизайн: Иван Поздняков. Фото: Игорь Кублин

Елена Перлова Маленькие квартиры