Этот объект хозяева решили сдавать в краткосрочную аренду и пригласили дизайнера для создания интерьера, который был бы актуален для гостей Северной столицы.
Заказчики и задачи
Владельцы этой двухкомнатной квартиры в старом фонде Санкт-Петербурга хотели создать комфортный и привлекательный объект для сдачи в посуточную аренду. Потенциальных арендаторов определили как пару или компанию из четырех человек. Перед дизайнером Ириной Шестопаловой стояла задача создать пространство, в котором могла бы разместиться эта компания, сделать новый красивый интерьер с современным комфортом, но с учетом специфики местонахождения — исторический дом.

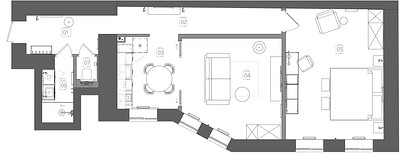
Перепланировка
По изначальному плану в квартире были две комнаты, кухня, раздельные санузлы, а от прихожей к дальней комнате тянулся длинный коридор. Не было необходимости менять планировку глобально, в двух комнатах реально обустроить нужные спальню и гостиную с раскладным диваном.

Изменение внесли в планировку гостиной и кухни. Существующую перегородку заменили на раздвижную стеклянную. Это позволило визуально расширить пространство и при необходимости объединять эти зоны.

Отделка
«Выбор отделочных материалов — это всегда баланс между стилем интерьера и бюджетом на его реализацию. К тому же в данном случае мы всегда держали в голове, что в квартире под сдачу материалы должны служить как можно дольше», — комментирует Ирина.

Поэтому для отделки стен выбрали краску, в спальне на стене за изголовьем кровати сделали раскладку молдингами. Высокие потолочные карнизы, окрашенные в цвет стен, позволили немного приподнять высоту потолков (кроме того, их увеличили за счет разбора пола при ремонте).
На полу в прихожей и на кухне — плитка с геометрическим рисунком. Для жилых зон выбрали ламинат в целях практичности.
Ванную комнату оформили плиткой. На полу — та же, что в прихожей и на кухне. На стенах — светлая прямоугольная плитка, уложенная вертикально. Высокие потолочные карнизы есть и тут.

В санузле к мозаике на стенах добавили обои, что сделало эту зону менее утилитарной и добавило уюта.

Мебель и системы хранения
Основное хранение представлено шкафами. Они есть в гостиной и спальне — выбрали отдельно стоящие шкафы, и это не случайно. По словам Ирины, такое решение обусловлено конфигурацией квартиры, а также стилистикой — попытка сделать намеки на эпоху постройки дома не предполагала встроенной мебели.

Только кухонный гарнитур сделали встроенным. В угловую кухню вписали необходимую технику, включая полноразмерный холодильник, посудомоечную машину, духовой шкаф и микроволновку, выбрали двухконфорочную варочную панель, так как в квартире для посуточной аренды вряд ли будут готовить много. При этом осталось достаточно места для хранения посуды.
Хозяйственные принадлежности хранят в тамбуре, который выделен в зоне подъезда.

Освещение
«Мы не строили сложных сценариев освещения. Функциональность и эстетика — это самые главные задачи при проектировании», — комментирует автор проекта.
Таким образом, основное освещение решили потолочными люстрами и встроенными точечными светильниками. Люстра есть даже в коридоре. Дополнительные сценарии — подвесы над обеденным столом, бра у кровати, спот рядом с зеркалом в прихожей и бра у зеркала в ванной — нужны для камерного освещение и лучшей функциональности.


Дизайнер Ирина Шестопалова, автор проекта:
Общая цветовая гамма квартиры — это продолжение атмосферы Петербурга. Спокойная, монохромная, местами уходящая в холодные оттенки. Такую строгость разбавляют небольшие яркие акценты в виде картин и постеров, в их поддержку выступает декоративный текстиль. В вечернее время при локальном мягком свете оживает игра теплого и холодного. Санузлы из-за своей небольшой площади решены в максимально светлой палитре. Только в них использованы мебель и краска бежевых оттенков.
14фото

Гостиная

Гостиная

Вид на кухню

Вид на кухню

Кухня

Кухня

Кухня

Спальня

Спальня

Спальня

Спальня

Прихожая

Ванная комната

Санузел
Редакция предупреждает, что в соответствии с Жилищным кодексом РФ требуется согласование проводимых переустройств и перепланировок.

Смотреть перепланировку