Дом с кухней-гостиной, санузлом и террасой стал местом совместного времяпрепровождения большой семьи и друзей.
Заказчики и задачи
К архитектору Катрин Диб обратилась семья из четырех поколений — бабушки и дедушки, дети, внуки, правнуки — которые хотели обустроить комфортное место для общих сборов с друзьями. Они любят собирать большие компании до 20-25 человек, но в их основном доме не было для этого места. Поэтому приняли решение построить на участке такую «беседку» — на самом деле кухню со столовой и зоной отдыха, чтобы наконец обрести возможность собирать семью и друзей с комфортом.

Планировка
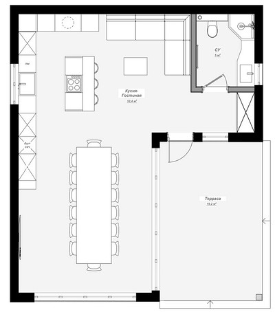
В домике всего два помещения — большая кухня-гостиная 52 квадратных метра и санузел. К дому пристроена 20-метровая терраса для отдыха на свежем воздухе в хорошую погоду. Большой стол на 11 персон стоит у окон. В дальнем углу — гостиная. Рядом с ней — кухня. Санузел изолирован от входа, находится в самой удаленной зоне.

Отделка
Для отделки пола выбрали крупноформатный керамогранит под камень. Стены покрасили. Фартук оформлен тем же керамогранитом, что и пол. В столовой на стене с телевизором применили декоративные рейки из дерева — ненавязчивый акцент.

На потолке — вагонка из лиственницы. Дерево отлично сочетается с рейками, каменной фактурой керамогранита и светлой покраской.

В санузле выбрали серый керамогранит и для пола, и для стен. Он имитирует камень.
Системы хранения и мебель
В первую очередь, нужно было продумать хранение посуды, которую семья начала покупать в этот домик еще до того, как он был готов. Для этого предусмотрели большую кухню с витринами, на которых выставлена коллекция парадной посуды. В закрытых шкафах — много места для хранения повседневной утвари.

Гарнитур — угловой с островом. Из техники выбрали большой двухдверный холодильник, предусмотрели винный холодильник, рабочую поверхность обустроили на острове, а мойку — у окна. Конечно, не обошлось без барбекю. Здесь стоит современный гриль с мощной вытяжкой над ним. Обязательно — посудомоечная машина.

Главной зоной является столовая. Здесь свое место занял большой обеденный стол со столешницей из слэба — спил натурального дерева карагача.

Из того же дерева выполнен журнальный столик, а еще столешница под раковину в санузле и дверцы шкафчика над инсталляцией унитаза.

Кстати, о санузле. Вместо стандартной тумбы под раковину решили сделать подстолье из основания старой швейной машинки «Зингер», накрыли ее слэбом, на слэб поместили накладную раковину.

Освещение
Автор проекта уделила немало внимания свету. В доме скатная крыша, потолки высокие (до 4,5 метров). Нужны были соответствующие светильники. Над кухней разместили трековый светильник с накладными спотами. Трек подвешен. Над столом — массивная люстра со множеством плафонов. Над диваном — пара минималистичных бра. Бра есть и по бокам от окна, под которым расположена мойка на кухне. В рейки встроили подсветку. В санузле — подвешенный трек со встроенными линейными светильниками.

Катрин Диб Архитектор, автор проекта
У хозяев очень большая семья и много друзей, они часто проводят праздники и приемы в своем загородном доме, на праздниках может собраться до 20-25 человек. В основном доме не было места для такого количества человек, в столовой можно было разместить максимум шестерых, и все принимали пищу по очереди. Поэтому и встал вопрос о строительстве второго домика на территории. Нужно было создать уютное, а главное, удобное пространство для сбора семьи. С чем мы и справились.

Гостиная

Кухня

Санузел Редакция предупреждает, что в соответствии с Жилищным кодексом РФ требуется согласование проводимых переустройств и перепланировок.

Смотреть перепланировку

Анастасия Дубровина

Мария Воинова

Екатерина Хелия Экостиль Серый цвет