У дизайнера Татьяны Новиковой было две основные задачи: оформить маленькое пространство так, чтобы оно выглядело визуально больше, и уложиться в бюджет до 1 млн рублей.
Заказчик и задачи
Владелец этой квартиры обратился к дизайнеру Татьяне Новиковой, чтобы оформить интерьер для последующей сдачи в аренду. Вводные были непростыми: никаких перепланировок, ограниченный бюджет и при этом многофункциональное пространство. Хотелось сделать маленькую квартиру визуально просторной. Забегая вперед, все получилось!

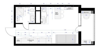
Планировка
У студии была классическая планировка для этого типа жилья: изолированная ванная, объединенное пространство кухни и комнаты, балкон и единственное окно. Так как перепланировку не хотел хозяин, работали с зонированием пространства. На балконе организовали маленькую рабочую зону.

Ближе к окну — диванную с телевизором. Диван раскладной, выполняет еще и функцию спального места.

На своем месте оставили кухню, решили заменить стандартный обеденный стол барной стойкой — она является также элементом зонирования кухни и гостиной. В прихожей организовали вместительное хранение.
Отделка
Для стен выбрали краску. Основной цвет в комнате — светлый сливочный. Прихожая оформлена в серо-оливковом цвете, включая входную дверь. Вопреки стереотипам, для дальней зоны от окна не стали выбирать светлый оттенок, что только углубило пространство и расставило правильные акценты, помогло зонированию. Тот же цвет переходит в комнату в виде плитки на фартуке. Есть и акцентные участки — на стене с телевизором сделали две крупные арки в синем и терракотовом оттенках.

Эти цвета повторяются в шторах и обивке дивана. На балконе — синяя краска, что немного охлаждает зону, наполненную ярким естественным светом.
Для пола в комнате выбрали ламинат. Прихожая и кухня оформлены плиткой с рисунком терраццо. Та же плитка — на полу в ванной комнате, а на стенах этой зоны скомбинировали несколько видов плитки: фоновую белую и акцентную голубую. Серо-оливковый тоже есть, в виде тумбы под раковину.

Словом, пространство оформили в единых цветах и перекликающихся отделках, что создало нескучный интерьер и визуально помогло расширить небольшую квартиру.
Мебель и системы хранения
Основная система хранения для одежды, хозяйственных вещей, постельного белья — это большой шкаф глубиной 65 см в прихожей. Его делали на заказ.

Кухню решили оставить без верхних шкафов, чтобы не утежелять пространство. Выбирали из готовых модулей — ИКЕА, Hoff. Необходимость вписаться в небольшой бюджет привела к необычному решению. Под барной стойкой тоже решили сделать хранение, для этой зоны выбрали базы из ассортимента верхних шкафов, они как раз подходили по размерам.

Фасад стойки со стороны комнаты отделали рельефной панелью, такой же, кстати, оформлена и тумба под раковину в ванной. Это ручной труд — дизайнера и прораба.

В качестве дополнительного хранения — небольшая консоль у входа с зеркалом, консоль под телевизором и стеллаж на балконе.
Освещение
Для основного сценария света выбрали накладные точечные светильники. Дополнительные — подвесной крупный светильник со стеклянными круглыми плафонами над барной стойкой, бра по бокам от дивана, подвес у консоли в прихожей, подсветка кухни, штор и зеркала в ванной комнате.


Татьяна Новикова Дизайнер, автор проекта
Эту маленькую квартиру заказчик приобрел для сдачи в аренду. Она находится в комплексе домов с большим количеством студий, и моей задачей было оформить интерьер так, чтобы он выгодно отличался от остальных. Необходимо было уместить все зоны в компактном пространстве без перепланировки, так как времени на ее оформление у заказчика не было. А главным пожеланием было вписаться в минимальный бюджет, включая всю мебель, технику и даже текстиль. Интерьер получился свежим, красочным, с отсылкой к стилю неомемфис. Насыщенные оттенки не выглядят вызывающими и не «давят» за счет своей натуральности и приближенности к природной палитре. В квартире использовано только 5 основных цветов, которые повторяются в деталях в каждой зоне, что делает пространство единым, но при этом цвета и помогают зонированию. Световые сценарии также поддерживают идею функционального зонирования. Черные накладные светильники на потолке создают определенный ритм, делая интерьер более живым, а их поворотная способность дает возможность создавать красивую игру света и тени на поверхностях стен и мебели. Изюминкой проекта стала современная люстра над барной стойкой. С помощью дизайн-приемов удалось не только решить главную проблему — четкого распределения пространства по функциональному назначению, но и отвлечь от его скромных габаритов.
14 фото

Комната

Комната

Комната

Балкон

Кухня

Кухня

Кухня

Кухня

Прихожая

Прихожая

Прихожая

Прихожая

Санузел

Санузел Редакция предупреждает, что в соответствии с Жилищным кодексом РФ требуется согласование проводимых переустройств и перепланировок.

Смотреть перепланировку

Анастасия Дубровина

Криста Труфанова Маленькие квартиры Современный стиль Светлые цвета Синий цвет Зеленый цвет