Работая над этим проектом в индийском городе Бхилаи, архитекторы Atelier Varun Goyal решили нестандартную задачу. Они построили дом, в разных половинах которого живут семьи двух братьев, с общим двором
Главной идеей этого проекта было создать два отдельных, но связанных между собой, дома для двух братьев, сохранив их родственную связь и одновременно уважая образ жизни каждой семьи. Общий двор стал объединяющим разные корпуса элементом, с его помощью архитекторы Atelier Varun Goyal создали пространство для общения и отдыха обеих семей.


Климат Бхилаи с его жарким летом повлиял на архитектурное решение: для дома выбрали чистый белый фасад с окнами в черных рамах, которые дополняют внутренний двор со ступенчатым бассейном, выложенным черной плиткой. В проекте архитекторы придерживались принципов устойчивого развития: например, центральный двор помог усилить перекрестную вентиляцию и естественное освещение комнат, снизив потребление энергии.

В каждой из половин дома использовали монохромную черно-белую гамму, дополнив ее предметами из переработанного тикового дерева. Полы выложили местным мрамором и терраццо из каменной крошки. Гостиные с черными стенами и большими окнами раскрыты в сторону двора, благодаря раздвижным стеклянным дверям обе семьи могут без труда ходить к друг другу в гости.




В каждой из половин дома планировка учитывала особенности семьи, помимо общих зон там достаточно личных комнат. Для интерьеров выбрали минималистичный стиль и монохромную гамму, создавая вневременной фон для архитектурных элементов и мебели.




Архитекторы придерживались концепции устойчивого развития и использовали местные материалы везде, где только можно. Это помогло свести к минимуму воздействие строительного процесса на окружающую среду. Например, в спальнях и санузлах стоит мебель из восстановленного тика, а для отделки комнат использовали местный индийский мрамор.







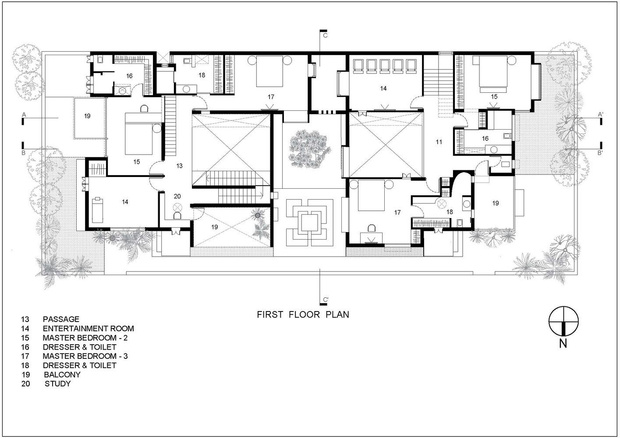
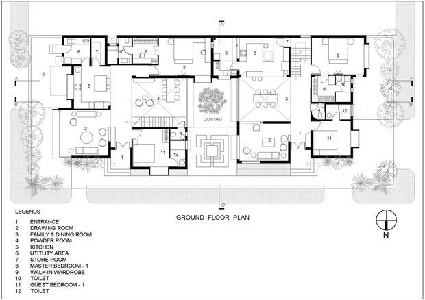
Планировка дома
