Рассказываем, как оформить и зонировать маленькую студию. Показываем готовые планировки и реализованные проекты.
Кажется, что жилье площадью пару десятков квадратных метров просто не может быть комфортным. Но опыт хозяев и дизайнеров доказывает: это не так. Такую микроквартиру можно сдавать в аренду, а можно жить там самостоятельно — при грамотной организации пространства даже такой крошечный метраж может быть функциональным и удобным. В статье рассказываем, каким должен быть дизайн студии 20 м, показываем варианты планировок и рассматриваем примеры проектов для разных жизненных сценариев.
Все о дизайне студии 20 кв. м
На что обратить внимание
Особенности оформления
— Дизайн
— Зонирование
Варианты планировки
— Прямоугольная без балкона
— Прямоугольная с балконом
— Квадратная
— Сложной формы
Примеры проектов
— В краткосрочную аренду
— В долгосрочную аренду
— Для одного человека
— Для двоих
На что обратить внимание

Первое, с чего начинают оформление любого пространства, — определение его функционала. Обычно в студии проживает один человек, пара или молодая семья с маленьким ребенком. Для каждой категории будут разные задачи.
- Одиноким людям не требуется разделение пространства. Наоборот, чем меньше стен и перегородок, тем лучше. Обставить мебелью комнату и продумать планировку будет легче.
- Организация пространства для пары усложняется тем, что каждому, вероятнее всего, будет необходим свой уголок.
- Сложнее всего продумать жилье для молодой семьи. Ведь, помимо обычных «взрослых» зон, надо предусмотреть и небольшое место для игр и отдыха малыша. Для расширения полезной площади в таком случае можно задействовать утепленную лоджию или балкон, если они есть.
15 фото

Дизайн: Ирина Бебешина. Фото: Евгений Гнесин

Дизайн: Ирина Бебешина. Фото: Евгений Гнесин

Дизайн: Ирина Бебешина. Фото: Евгений Гнесин

Дизайн: Ирина Бебешина. Фото: Евгений Гнесин

Дизайн: Ирина Бебешина. Фото: Евгений Гнесин

Дизайн: Ирина Бебешина. Фото: Евгений Гнесин

Соцсети дизайнера olga_dsgnr

Соцсети дизайнера olga_dsgnr

Соцсети дизайнера olga_dsgnr

Соцсети дизайнера olga_dsgnr

Соцсети дизайнера olga_dsgnr

Соцсети дизайнера olga_dsgnr

Соцсети дизайнера zhanna_studentsova

Соцсети дизайнера zhanna_studentsova

Соцсети дизайнера zhanna_studentsova
Особенности дизайна квартиры 20 кв. м
При оформлении маленьких пространств нужно решить сразу две задачи: найти место для всего необходимого и при этом сделать так, чтобы комната не выглядела загроможденной.
Оформление
Есть несколько приемов, которые помогают сделать пространство визуально более просторным и легким.

- Светлые цвета. Конечно, можно экспериментировать с палитрой и даже сделать полностью темную студию, но это скорее исключение из правил, чем распространенный ход. Все-таки белый, сливочный, светло-серый и другие подобные оттенки работают в маленьком помещении намного лучше.
- Много света. Маленькая площадь не означает, что можно обойтись одним светильником. Продумайте систему искусственного освещения и постарайтесь впустить в комнату как можно больше солнечного света. Не загромождайте окно, не ставьте перед ним высокую мебель, по возможности откажитесь от глухих перегородок. Также вместо плотных занавесок в пол лучше использовать более светлые, легкие. Можно заменить портьеры римскими шторами или роллетами.
- Зеркала и глянец. Отражающие и глянцевые поверхности незаменимы в крошечных пространствах. Они отражают свет и увеличивают его количество, а за счет этого — визуальную площадь.
- Уменьшенный масштаб. Любые привычные мебель и технику сегодня можно найти в компактном размере. Двухконфорочная плита, вертикальная или настенная стиральная машина, мини-духовка или холодильник, полутороспальная кровать позволят вписать в комнату все, что нужно, и при этом соблюсти правила эргономики.
19 фото

Дизайн: Наталья Косьяненко. Фото: Мария Иринархова

Дизайн: Наталья Косьяненко. Фото: Мария Иринархова

Дизайн: Екатерина Шейн. Фото: Кристина Плеер

Дизайн: Екатерина Шейн. Фото: Кристина Плеер

Дизайн: Екатерина Шейн. Фото: Кристина Плеер

Дизайн: Екатерина Шейн. Фото: Кристина Плеер

Дизайн: Екатерина Шейн. Фото: Кристина Плеер

Дизайн: Екатерина Шейн. Фото: Кристина Плеер

Дизайн: Екатерина Шейн. Фото: Кристина Плеер

Дизайн: Екатерина Шейн. Фото: Кристина Плеер

Дизайн: Екатерина Шейн. Фото: Кристина Плеер

Дизайн: Екатерина Шейн. Фото: Кристина Плеер

Дизайн: Екатерина Шейн. Фото: Кристина Плеер

Дизайн: Екатерина Шейн. Фото: Кристина Плеер

Дизайн: Екатерина Шейн. Фото: Кристина Плеер

Соцсети дизайнера olga_dsgnr

Соцсети дизайнера olga_dsgnr

Соцсети дизайнера olga_dsgnr

Соцсети дизайнера olga_dsgnr
Зонирование
Зонирование очень важно в оформлении маленькой квартиры, даже если в ней всего одна комната.

За редкими исключениями в дизайне студии 20 м кухня оказывается в том же помещении, что и спальня. Поэтому нужно продумать расположение зон так, чтобы одна не мешала другой.
Чаще всего комната делится последовательно: при входе в жилое пространство сначала идет зона готовки, за ней — обеденная, в самой дальней части, у окна — гостиная-спальня. В этом случае достаточно просто разместить группы мебель друг за другом на достаточном расстоянии. Если нужна приватность — повесить шторку либо отделить какую-то зону раздвижной перегородкой. Для более легкого зонирования подойдут декоративные рейки, разная отделка стен и пола, цвета.
Высокие потолки позволяют организовать вертикальное зонирование, выделив второй ярус. Там почти всегда располагают спальное место, поскольку именно этой зоне требуется приватность. Тогда внизу можно оставить единое пространство кухни и гостиной. Иногда там же выделяют уголок для работы.
11 фото

Дизайн: студия Neva Architecture, nevainteriordesign.com

Дизайн: Ирина Бебешина. Фото: Евгений Гнесин

Дизайн: Екатерина Шейн. Фото: Кристина Плеер

Дизайн: Екатерина Шейн. Фото: Кристина Плеер

Дизайн: Екатерина Шейн. Фото: Кристина Плеер

Дизайн: Екатерина Шейн. Фото: Кристина Плеер

Дизайн: Екатерина Шейн. Фото: Кристина Плеер

Дизайн: Екатерина Шейн. Фото: Кристина Плеер

Дизайн: Екатерина Шейн. Фото: Кристина Плеер

Дизайн: Екатерина Шейн. Фото: Кристина Плеер

Дизайн: Екатерина Шейн. Фото: Кристина Плеер
Варианты планировки
Есть несколько типичных планировок двадцатиметровых студий.
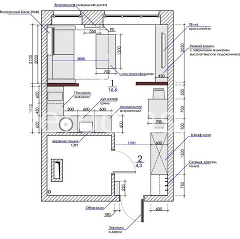
Прямоугольная без балкона
В прямоугольных студиях под жилую комнату обычно отводится 15-16 квадратов. Перед ней при входе располагаются небольшая прихожая и санузел.

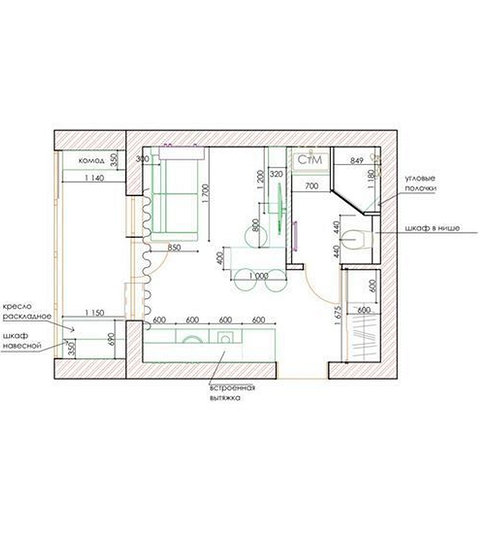
Прямоугольная с балконом
Если к малогабаритной квартире прилагается застекленный балкон — это большая удача.

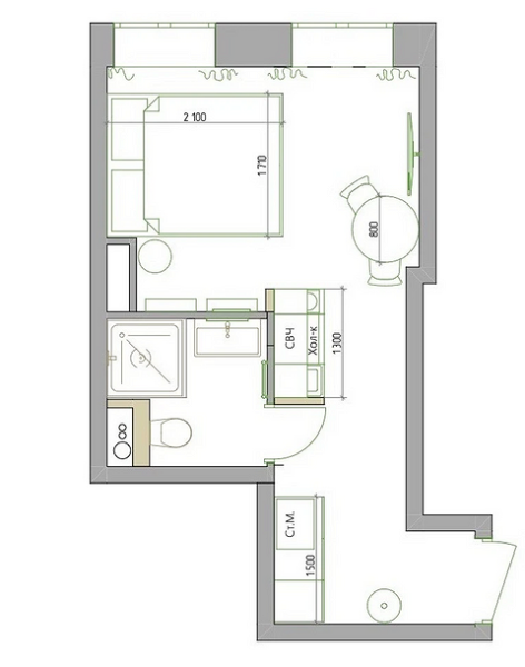
Квадратная
Квадратная планировка — это всегда вызов. Она, с одной стороны, дает больше возможностей для зонирования, с другой — придется проявить фантазию, а не расположить зоны просто друг за другом.

Сложной формы
Наконец, самая сложная ситуация — нестандартная и зачастую не самая удобная архитектура. Это могут быть скошенные углы, трапециевидная форма квартиры, углы, выступы и т.п.

Примеры проектов
А теперь рассмотрим конкретные примеры обустройства квартиры 20 кв. м для разных жизненных сценариев.
В краткосрочную аренду
Чаще всего микростудии берут для сдачи в кратковременную аренду: например, туристам. Вот один из таких примеров. Эта квартира площадью 20,8 квадратов находится в Санкт-Петербурге, и владелица апартаментов хотела оформить их так, чтобы здесь чувствовался дух города. По изначальному плану здесь была комната 12,5 кв. м, ванная 3,1 кв. м и прихожая 5,2 кв. м. Никаких изменений вносить не стали — зоны распределены традиционно, да и на такой маленькой площади нет особых вариантов для перепланировки.
Застройщик сдавал объект с частичной отделкой, и ее не стали менять. Для стен выбрали светлую краску, чтобы визуально расширить пространство, в кухонной зоне добавили бежевого цвета. Поскольку Санкт-Петербург у многих ассоциируется с водой, нейтральную палитру разбавили мебелью и текстилем глубокого синего оттенка. В итоге получился одновременно спокойный и динамичный интерьер. Поскольку жилье не для постоянного проживания, многофункциональность здесь не требовалась. Для спального места выбрали удобную широкую кровать. Для обеденной зоны — круглый столик на две персоны. Гарнитур выбрали компактный — много готовить гости не будут, зато хватило места для тостера и кофемашины.
8 фото

Дизайн: Виктория Бутвина. Фото: Кристина Плеер

Дизайн: Виктория Бутвина. Фото: Кристина Плеер

Дизайн: Виктория Бутвина. Фото: Кристина Плеер

Дизайн: Виктория Бутвина. Фото: Кристина Плеер

Дизайн: Виктория Бутвина. Фото: Кристина Плеер

Дизайн: Виктория Бутвина. Фото: Кристина Плеер

Дизайн: Виктория Бутвина. Фото: Кристина Плеер

Дизайн: Виктория Бутвина. Фото: Кристина Плеер
В долгосрочную аренду
Небольшие студии подходят и для обычной аренды — это удобное и недорогое жилье для студентов или молодых пар. Площадь этой квартиры — чуть больше 20 квадратов, по форме — классический длинный «вагон». Перепланировку не делали. Также здесь уже была отделка от застройщика, и поскольку бюджет заказчиков был ограничен, дизайнер оставила максимум уже имеющегося оформления. Сняли только обоев — вместо них стены выкрасили в три цвета (нейтральный и два акцентных), использовав прием колор-блокинга.
Мебель и аксессуары подбирали из масс-маркета, требовалось как можно больше бюджетных решений. При входе в жилую часть справа расположили зону готовки, а слева поставили большой шкаф — основную систему хранения. Там же встал холодильник, и на ним сделали две полки, чтобы полностью задействовать вертикаль стены. Гарнитур угловой, с комбинированным верхним ярусом (шкафы и открытые полки). Вместо традиционного обеденного стола — барная стойка. У окна расположили зону отдыха с раскладывающимся диваном и телевизором с комодом напротив. Для стиральной машинки нашли место в ванной, поставив ее под раковину вместо привычной тумбочки. В итоге в квартире есть все необходимое для комфортного долгосрочного проживания: бытовая техника, спальное место и мини-гостиная, достаточно мест для хранения вещей.
9 фото

Дизайн: Элина Мусина. Фото: Евгений Гнесин

Дизайн: Элина Мусина. Фото: Евгений Гнесин

Дизайн: Элина Мусина. Фото: Евгений Гнесин

Дизайн: Элина Мусина. Фото: Евгений Гнесин

Дизайн: Элина Мусина. Фото: Евгений Гнесин

Дизайн: Элина Мусина. Фото: Евгений Гнесин

Дизайн: Элина Мусина. Фото: Евгений Гнесин

Дизайн: Элина Мусина. Фото: Евгений Гнесин

Дизайн: Элина Мусина. Фото: Евгений Гнесин
Для одного человека
Студия 20 кв. м (или даже чуть меньше — 19,2 квадрата, как в этом проекте) подходит и для личного проживания. Например, здесь крошечное пространство оформили для студентки. Казалось бы, Г-образное пространство площадью чуть больше 13 кв. м не дает никакого пространства для творчества, но это не так. Дизайнер применила сразу несколько интересных приемов:
- Зеркальная стена в столовой зоне отражает свет и создают иллюзию простора.
- Все пространство у окна отдано под кровать и систему хранения, изготовленные на заказ.
- Кровать — не стандартная на ножках, а на подиуме, внутри которого предусмотрены ящики.
- Кухонный гарнитур плавно перетекает в такого же цвета большой шкаф для одежды. Вся крупная мебель — светлая, в тон отделке, чтобы сливаться с ней.
9 фото

Дизайн: Наталья Косьяненко. Фото: Мария Иринархова

Дизайн: Наталья Косьяненко. Фото: Мария Иринархова

Дизайн: Наталья Косьяненко. Фото: Мария Иринархова

Дизайн: Наталья Косьяненко. Фото: Мария Иринархова

Дизайн: Наталья Косьяненко. Фото: Мария Иринархова

Дизайн: Наталья Косьяненко. Фото: Мария Иринархова

Дизайн: Наталья Косьяненко. Фото: Мария Иринархова

Дизайн: Наталья Косьяненко. Фото: Мария Иринархова

Дизайн: Наталья Косьяненко. Фото: Мария Иринархова
Для семейной пары
Эта квартира находится в Париже, но пример будет актуален для любого жилья с высоким потолком. Здесь его задействовали с максимальной пользой, выделив антресольный ярус и разместив там спальное место. Это удобно и потому, что освобождается место внизу, и с точки зрения зонирования — все-таки психологически комфортнее спать в уединении, а под потолком получается «гнездышко». К тому же, если вы живете вдвоем, один человек не будет мешать другому так, как это было бы, если бы кровать находилась рядом с кухней или рабочим местом.
Дизайн сделали простым, но очень уютным. Получилось сочетание скандинавского и экостиля: светлая палитра, акценты в виде растений и не слишком ярких природных оттенков, много деревянных поверхностей. Всю крупную мебель сделали белой, точно в тон стен и потолка — в итоге она практически растворяется в них, не создавая ощущения тесноты в комнате.
9 фото

Дизайн: студия Neva Architecture, nevainteriordesign.com

Дизайн: студия Neva Architecture, nevainteriordesign.com

Дизайн: студия Neva Architecture, nevainteriordesign.com

Дизайн: студия Neva Architecture, nevainteriordesign.com

Дизайн: студия Neva Architecture, nevainteriordesign.com

Дизайн: студия Neva Architecture, nevainteriordesign.com

Дизайн: студия Neva Architecture, nevainteriordesign.com

Дизайн: студия Neva Architecture, nevainteriordesign.com

Дизайн: студия Neva Architecture, nevainteriordesign.com

Анастасия Хрипункова Маленькие квартиры