Дом принадлежит состоявшейся женщине, владелице бизнеса, матери двоих взрослых сыновей. Этот интерьер она с помощью дизайнера делала для себя.
Заказчик и задачи
Дом построила для себя успешная женщина. Она занимается бизнесом, вырастила двоих сыновей. Для оформления интерьера владелица обратилась в студию ArtSmart. «Забыть обо всех проблемах, слиться с природой, быстро расслабиться и наслаждаться жизнью — выезжая за город, нашей заказчице хотелось бы почувствовать именно это, — говорит дизайнер Светлана Яковлева, автор проекта. — Поэтому основная идея — сделать интерьер максимально уютным, тактильным, располагающим к глубокому релаксу. Разрабатывая концепцию, мы ставили цель объединить дом с природой с помощью материалов и колористики».

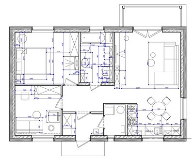
Планировка
Планировку дома разрабатывали с нуля, а строили его параллельно с созданием дизайн-проекта, поэтому изначально закладывали нужное количество комнат и зон. Так, хозяйке нужна была просторная кухня со столовой и гостиной, отдельная спальня и кабинет. Было важно предусмотреть дополнительные спальные места — в гости приезжают сыновья.
Таким образом, на небольшой площади разместили кухню-гостиную, спальню хозяйки, маленький кабинет и достаточно просторную по сегодняшним меркам ванную комнату. Прихожая изолирована, также есть котельная. Из гостиной можно выйти на маленькую террасу.
Отделка
Природность интерьера, натуральные материалы и цвета — основа концепции проекта. Однако при выборе отделки было необходимо ориентироваться еще и на практичность. Владелица дома любит животных, с ней живут два кота и две собаки. Это нельзя было не учитывать. Для отделки стен выбрали декоративную штукатурку, которую можно локально реставрировать при необходимости, к тому же покрытие бесшовное, что тоже делает его практичным.

В ванной комнате хотелось создать атмосферу спа-кабинета. Чтобы воплотить эту задумку, выбрали керамогранит нейтрального светлого оттенка, борт ванны закрыли рельефным керамогранитом, рисунок на котором который напоминает следы на песке. Стена же над ванной — художественная роспись, выполненная по штукатурке. Она защищена от влаги спецматериалами.

На полу — керамогранит под дерево по всей площади дома. Такой выбор сделали из-за особенности отопления — водяные теплые полы. Благодаря подогреву керамогранит не будет холодным, и такой выбор становится уместным даже в жилых комнатах, таких как спальня.

Мебель и системы хранения
Как и в любом современном проекте, было важно проработать системы хранения. Отдельной гардеробной или кладовой планировка не предусматривала, поэтому ставку сделали на продуманные встроенные шкафы и системы. Так, в спальне шкаф занял всю стену напротив кровати. За счет того, что он выполнен практически в цвет стен, не «давит» в пространстве. При этом шкаф является и декоративной составляющей благодаря фрезеровке на фасадах. Внизу — ритмичные «полосы», а на дверках — этнический рисунок.

В гостиной проработана система хранения в ТВ-зоне напротив дивана. Это подвесные консоль и шкаф с закрытыми и открытыми полками. Дверцы шкафа тоже декоративные. Выполнена роспись декоративной штукатуркой по ДСП.

На кухне — угловая планировка. За счет разницы в цвете верхних и нижних шкафов гарнитур не смотрится монолитно и не утяжеляет интерьер. Верхние шкафы — светлые. Нижние — под дерево.

В ванной комнате, кроме тумбы под раковину, шкаф на столешнице раковины. Сделали фрезеровку фасада по мотивами художественной росписи над ванной. Напротив по стене — шкафы и полки для хранения.
В кабинете — шкаф, который переходит в систему с рабочим столом. Для того чтобы скрыть полки и компьютерный блок на полу, сделана перфорированная стенка. Также в кабинете продумано дополнительное спальное место.

Освещение
В качестве общего света дизайнер предусмотрела точечные светильники. Их разместили так, чтобы в комнатах не было темных углов. Для вечернего атмосферного света продуманы дополнительные сценарии. Это подвесы над обеденным столом и с одной стороны кровати, настольная лампа в кабинете, подсветки.

Светлана Яковлева Дизайнер, автор проекта
За пределами дома заказчица активно занимается бизнесом, жизнь наполнена встречами, переговорами и различными стрессами. Поэтому основным пожеланием было сделать так, чтобы все дела оставались за забором участка. Она не любит яркие цвета и выразительные орнаменты, предпочитает мягкие, теплые, природные оттенки. Было пожелание использовать натуральные материалы, например, дерево, в ванной хотелось бы принимать спа-процедуры. Эту задачу помог решить скандинавский стиль с уклоном в хюгге, с классическими деталями и этническими элементами.

Спальня

Кабинет

Ванная комната Редакция предупреждает, что в соответствии с Жилищным кодексом РФ требуется согласование проводимых переустройств и перепланировок.

Смотреть перепланировку

Анастасия Дубровина

Сергей Пилипович

Юлия Мамедова Скандинавский стиль Экостиль Светлые цвета