Дизайнеры выделили для каждого приватные комнаты, продумали общую зону и разработали вместительные системы хранения. Получилось стильно и необычно!
Заказчики и задачи
Владельцы этой квартиры в панельке серии П-111М — семья с двумя дочерьми 16 и 4 лет. Супруги работают в сфере финансов и медиакоммуникаций, хозяйка увлекается фотографией. Для них было важно выделить каждому отдельные комнаты, предусмотреть общую зону для семейного отдыха и при этом не прибегать к глобальной перепланировке. Задачи предстояло решить дизайнерам Надежде Раковой и Алене Гуслиц.

Перепланировка
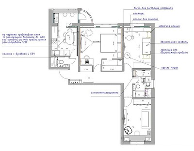
Как и было сказано выше, хозяева не хотели делать глобальную перепланировку. Изначально это была трехкомнатная квартира с отдельной кухней, кладовкой, раздельными санузлом и ванной комнатой, лоджией и мини-балконом.
Количество комнат позволяло оформить для каждого отдельную спальню, но для общей зоны места уже не хватало. Поэтому дизайнеры приняли решение визуально присоединить к кухне лоджию — для этого убрали оконный блок и утеплили помещение. Батарею не выносили на ее площадь. На лоджии организовали зону отдыха, мини-гостиную.

Также в процессе перепланировки поменяли расположение перегородки между коридором и большой комнатой, которую отвели под спальню родителей. Это сделали, чтобы со стороны коридора была возможность вписать встроенный шкаф. Кроме этого, в спальне решили выделить отдельную гардеробную, что тоже потребовало построения новых перегородок.

Из кладовки при входе сделали гостевой санузел, а ванную объединили с туалетом, чтобы организовать удобную зону для всей семьи с ванной, душевой, унитазом и стиральной машиной.
Отделка
Для отделки стен использовали обои под покраску: гладкие (на кухне и в детских) и рельефные (в коридоре, спальне родителей). Также в детских поклеили обои-панно: со сказочным сюжетом — для младшей дочери и с рисунком озера — в комнате старшей. Цветовое решение разнится в зависимости от зон, но перекликается так и или иначе между собой.
В коридоре по одной стене использовали синее покрытие с металлическим блеском. Королевский синий применен в качестве акцента в спальне хозяев — это покрытие на обоях в изголовье кровати. Молдинги по бокам от изголовья окрашены в более глубокий синий оттенок.

Также цвет появляется в отделке маленького санузла — окрашенные стены и шкаф оттенка сливы за унитазом сочетается с белой плиткой на стене и напольной плиткой с рисунком пэчворк.

Кухня выполнена в мятных оттенках с акцентом на оконный проем на лоджию — его выделили цветом манго. В мятном цвете также оформлена комната старшей дочери. Она выходит на солнечную сторону, поэтому немного «охладить» помещение стало хорошей идеей.

Детская младшей дочери оформлена в желтых песочных тонах, акцента добавляет «сказочное» панно. По словам авторов проекта, эта комната сделана не на вырост, как часто бывает с детскими. Здесь — тот интерьер, который как раз актуален для маленькой девочки дошкольного возраста. А при необходимости позднее акцентное панно можно заменить на что-то более нейтральное.

Ванную комнату оформили тремя видами белой плитки — фоновой гладкой, рельефной в зоне ванны и с золотыми вставками над раковиной, а душевую и пол — плиткой под дерево.
На полу в жилых комнатах — паркетная доска. В коридоре, на кухне и в ванной — плитка.

Системы хранения
Хранение продумали в каждой комнате. В детских это шкафы для вещей и дополнительные системы — шкафы для книг и бумаг, стеллаж игрушек; в спальне родителей — гардеробная и тумбочки для мелочей. В прихожей — шкаф для верхней одежды.
Кухню сделали угловой. Верхние шкафы — с антресолями, что увеличивает объем хранения. К тому же есть шкафчик в обеденной зоне — он еще и скрывает коммуникации системы отопления.
В санузле сделан шкаф над инсталляцией, а в маленькой ванной смогли спланировать еще и вместительное хранение — выдвижная тумба под ванной, тумба под раковину, шкафчик над унитазом и полки-ниши в зонах ванны и душа.

Освещение
В проекте продумали как общие, технические сценарии освещения, так и декоративные. Общие решены точечными светильниками в разных зонах и дополнены потолочными люстрами разных форм, в зависимости от комнаты. Декоративные же разделены по зонам — настенные бра в прихожей, детских, лаунж-зоне, подвесы у кроватей в спальне и комнате старшей дочери, а также в ванной комнате, подсветки — пола в коридоре, потолка в ванной и т.д. С помощью света можно создать яркое или уютное освещение, подсветить разные функциональные зоны .


Дизайнеры Надежда Ракова и Алена Гуслиц, авторы проекта:
Конкретных запросов по стилистике от заказчиков не было. Были отдельные пожелания по цвету, освещению и материалам, какие-то предпочтения формировались в процессе общения по ходу проекта, что в итоге вылилось в желание получить пространство, не лишенное индивидуальности, базово спокойное, с яркими акцентами и графичными контрастами, изобилующее световыми эффектами. Получилась эклектика. В проекте можно ощутить как дух минимализма, так и черты постмодернизма и экспрессионизма. Минимализм — это строгость, чистота, лаконичность и отсутствие лишних деталей и украшений. В интерьерах постмодернизма преобладают яркие, энергичные цвета в акцентах при мягких пастельных основах, сочетание натуральных и искусственных материалов, цветовые и фактурные контрасты. Что касается материалов, их можно использовать практически без ограничений, соединяя друг с другом: тонированное дерево, рельефные эмалевые поверхности, легкие воздушные оттенки и глубокие брутальные тона. А экспрессионизм добавляет выразительности, энергичности, свободы и динамики интерьеру благодаря живописи, художественной керамике, яркому текстилю и неожиданным решениям.
18 фото

Кухня

Кухня

Лоджия

Спальня

Спальня

Спальня

Спальня

Комната старшей дочери

Комната старшей дочери

Комната старшей дочери

Комната старшей дочери

Комната старшей дочери

Комната младшей дочери

Комната младшей дочери

Комната младшей дочери

Ванная комната

Ванная комната

Коридор
Фрагменты квартиры до ремонта
7 фото

Коридор

Ванная комната

Ванная комната

Санузел

Спальня

Кухня

Комната (сейчас здесь комната старшей дочери) Редакция предупреждает, что в соответствии с Жилищным кодексом РФ требуется согласование проводимых переустройств и перепланировок.

Смотреть перепланировку

Анастасия Дубровина

Борис Бочкарев Эклектика Синий цвет Мятный цвет