Дизайнер Татьяна Ртищева оформила квартиру для семьи с тремя детьми. Здесь нет претенциозности и излишнего лоска, а есть домашний уют и приятная атмосфера, которая сохранится на долгие годы.
Заказчики и задачи
Владельцы этой квартиры в Москве — семья из пяти человек: родители и трое детей (сын подросток, дочь младшего школьного возраста и дочь-дошкольница). Среди пожеланий у заказчиков было несколько главных: предусмотреть три спальни — для них, сына и общую для девочек, гостиную, обойтись без перепланировки. Важно было практично и удобно обустроить кухню, так как хозяйка много готовит, оформить рабочее место в гостиной и предусмотреть много систем хранения. «Также было важно максимально упростить уборку в квартире и сделать интерьер практичным, чтобы он прослужил по возможности дольше при таком составе семьи», — комментирует автор проекта Татьяна Ртищева.

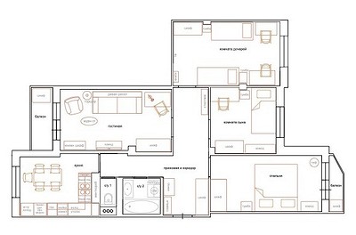
Планировка
Площадь квартиры — 81 квадратный метр. И на этом метраже предусмотрены четыре изолированные комнаты, кухня, раздельные ванная и санузел, а также два балкона. Комнаты небольшие, но все же их количество оптимально для состава семьи и обустройства отдельной гостиной. И то, что хозяева не хотели перепланировку, привело к очевидному решению — работали с существующими объемами, без изменений.

Отделка
Для пола в жилой части квартиры выбрали паркетную доску. Заказчики были готовы вложить бюджет в натуральное покрытие — по нему приятно ходить, оно теплое, что немаловажно, так как дети часто играют прямо на полу. В прихожей, кухне и санузлах — керамогранит с теплым полом, это практично и удобно.

Для стен почти во всей квартире выбрали краску, добавив акцента в отдельных зонах с помощью дополнительных материалов. Так, в комнате сына — обои двух цветов, фреска в изголовье кровати и декоративный кирпич, которым выделили несущую колонну.

В комнате дочерей — акцентные обои по одной из торцевых стен. Комната вытянутая, по словам автора проекта, с помощью этого акцента смогли визуально исправить геометрию помещения.

На кухне оформили плиткой не только фартук (что традиционно), но и половину стены в обеденной зоне. Это сделано для практичности, чтобы обеденные стулья не повредили краску, но еще такое решение добавило декоративности.

Ванные комнаты оформлены плиткой. На стенах — фоновая, нейтрального серого оттенка. На полу — в стилистике пэчворк, которая делает пространство нескучным.
Системы хранения
Продуманная кухня была одним из главных пожеланий. Дизайнер выполнила его по максимуму. Площадь помещения небольшая, 10 квадратов. Но здесь уместился угловой гарнитур со шкафами колоннами, место для хранения утвари и необходимой техники. За счет того, что в кухне выступала колонна с коммуникациями, внутри гарнитура образовалась удобная ниша, куда встает мелкая бытовая техника, всегда нужная под рукой.

В каждой спальне предусмотрены шкафы и комоды для вещей, а в детских еще и места для хранения книг, тетрадей, игрушек, рабочие столы — все для того, чтобы было удобно жить и учиться. Над столиком младшей девочки пока нет шкафов для хранения, но их можно легко добавить, когда ребенок пойдет в школу.
В гостиной также предусмотрели шкафы и комод, в прихожей — шкаф-купе и обувницу. На обоих балконах разместили системы для сезонного хранения. В ванной комнате, кроме тумбы под раковину, есть подвесной шкафчик над стиральной машиной, а в санузле — над инсталляцией унитаза.

Освещение
Искусственное освещение также продумали тщательно. В каждой комнате есть общий свет — в виде точечных светильников или люстр — и дополнительный: бра, подвесные светильники, настольные лампы, торшер, ридеры. Недостатка в освещении точно не будет.

В гостиную и кухню попадает мало естественного света, поэтому в первой продумали больше всего сценариев света, а на кухне добавили зеркало на стену — оно отражает и свет из окна, и искусственное освещение, что помогает сделать пространство лучше.

Дизайнер Татьяна Ртищева, автор проекта:
Была поставлена задача сделать интерьер максимально светлым, особенно высветлить северо-западную темную часть квартиры (кухня и гостиная), куда солнце зимой даже не заходит. За исключением спальни хозяев, где решили сделать темные стены и текстиль, базовые цвета — белый и теплый светло-серый. При этом необходимо было добавить цвет в интерьер, для этого использовали оттенки голубого, зеленого и розового. Стиль: микс современного с небольшим добавлением неоклассических элементов, чтобы интерьер был актуален как можно дольше и не вышел из моды в ближайшие 10-15 лет, а далее легко реновировался, когда «птенцы вылетят из гнезда». Элементы классики, в основном, использованы в общей зоне квартиры и спальне родителей. Это двери и мебель с филенками, часть светильников, смесители, декор, плинтусы и потолочные карнизы, мебельная фурнитура. Детские комнаты более современны, но их легко подстроить под стиль всей квартиры по мере необходимости и взросления детей.
14 фото

Гостиная

Гостиная

Гостиная

Кухня

Кухня

Спальня

Спальня

Комната дочерей

Комната дочерей

Комната сына

Комната сына

Комната сына

Санузел

Прихожая
Как квартира выглядела до ремонта
10 фото

Кухня

Ванная комната

Ванная комната

Санузел

Прихожая

Гостиная

Комната сына

Комната дочерей

Комната дочерей

Спальня Редакция предупреждает, что в соответствии с Жилищным кодексом РФ требуется согласование проводимых переустройств и перепланировок.

Смотреть перепланировку

Анастасия Дубровина

Наталья Вершинина Современный стиль Светлые цвета