Дизайнер оформила интерьер в сочных тонах, который отражает образ владелицы: неординарной и активной личности.
Заказчики и задачи
Дуплексами сегодня называют дома, разделенные на два входа для двух семей. Владелица этого дуплекса Елена — зрелая женщина, которая увлекается модой, астрологией и эзотерикой, изучает этикет, любит путешествия и встречи с друзьями, занимается йогой и медитирует. Дом предназначен для двух человек и кота. К дизайнеру Екатерине Проскуриной хозяйка обратилась с пожеланием оформить интерьер, который отражал бы ее личность, предусмотреть большую кухню-гостиную-столовую, спальню и кабинет.

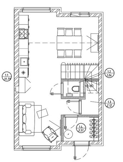
Перепланировка
Переустройство затронуло только первый этаж. Здесь организовали кухню-столовую-гостиную, маленький гостевой санузел и небольшое хозяйственное помещение — постирочную, которую разместили под лестницей.

Второй этаж — полностью приватный. Здесь находятся кабинет, спальня и хозяйский санузел.
Застройщик сдавал дуплекс с высокими потолками. Второй этаж — со скошенным потолком, но и после ремонта он остался высоким — от 2,4 до 4,7 метра.
Отделка
Отделку подбирали тщательно. На момент проектирования интерьера закладывались одни материалы, но когда пришло время реализации, многое не смогли найти в продаже и искали замену.

На стенах — краска с акцентами в виде фресок. Фресками украсили стены за диванами в гостиной и кабинете, а также в столовой зоне и в спальне за изголовьем кровати. Пол в кухне выложили плиткой, используя пэчворк в виде «ковра», а в гостиной и жилых комнатах — паркетной доской.

В гостевом санузле частично окрашенные стены, мокрые зоны — за инсталляцией унитаза и над раковиной — выложены плиткой.

В хозяйском санузле использовали три вида материала: керамогранит под дерево на полу, под серый мрамор на стенах и прямоугольную розовую плитку в душевой и за инсталляцией унитаза.

Мебель и системы хранения
Кухню и корпусную мебель сделали на заказ в столярной мастерской. Для хранения предусмотрели системы в разных зонах. В прихожей — шкаф для верхней одежды, обуви и сумок. Под лестницей в гостиной — хранение книг, но большая часть отдана под хозяйственную зону.

Коллекция книг также составлена на стеллажах в кабинете, там же есть невысокий шкаф. В спальне хозяйки — шкаф для хранения повседневных вещей.

Линейный кухонный гарнитур — достаточно вместительный. Кроме необходимой кухонной техники за фасадами скрыт и трехконтурный котел.
Освещение
Общий потолочный свет в кухне-гостиной и прихожей решен накладными спотами, дополнительные сценарии — крупная люстра над обеденным столом, бра над диваном и люстра на потолке в гостиной. Над лестницей разместили два подвеса, дополнив их бра.
На втором этаже высокие потолки позволили размесить люстру даже в ванной комнате. В кабинете — споты и настольная лампа в виде обезьянки на рабочем столе.

В спальне — споты и прикроватные светильники: настольный и подвесы в виде стрел (по словам автора, это отсылка к увлечению хозяйкой эзотерикой и астрологией), а также эффектная настольная лампа на туалетном столике.

Декор
У хозяйки уже была коллекция декора. Например, бабочки, которые теперь «поселились» на стене в зоне лестницы. Автор проводит параллель с «полетом» (в этой зоне самые высокие потолки) из-за такого выбора места размещения.

Были и картины, которые хозяйка размещала в интерьере вместе с дизайнером. «Одна из любимейших ее картин разместилась на лестнице. «Печаль утраты» перуанского художника была куплена в путешествии. Художник ее посвятил пожилой паре, у которой украли машину. Картина совпала с настроением и личными переживаниями Елены. Она назвала ее «Утрата печали», и развернула ее на 180 градусов», — рассказывает дизайнер.

Стены в прихожей и кухне-гостиной также украшают зеркальные панно. Кроме того, есть место и для зеленых растений. «Я подарила клиентке кашпо «Елена» с традесканцией. Друзья поддержали антропоморфную тему и подарили вазу с лицом. Самовары, зонтик, корыто на шкафу, расписные чайники, гжель, винтажная посуда с мимозой — все из личной коллекции хозяйки», — завершает Екатерина.


Дизайнер Екатерина Проскурина, автор проекта:
Источником вдохновения для создания этого эклектичного интерьера была сама заказчица — человек неординарный, разнообразный, любящий путешествия и жизнь во всех проявлениях. Очень захотелось создать интерьер, удобный не только со стороны человеческих потребностей во сне, еде и отдыхе, но и отражающий ее характер очень яркого человека. «Утрата печали» (так хозяйка назвала свою картину) можно отнести ко всему стилю дома. Здесь невозможно грустить. Как и задумывалось, у нас получился яркий сочный эклектичный интерьер — скандинавский минимализм с атмосферой колониального стиля. От скандинавского стиля здесь пэчворк, лаконичные гладкие фасады мебели, деревянные фактуры из золотистого и тонированного темно-коричневого дуба. От колониального стиля — теплая гамма вместе с массивной мебелью, ограждением лестницы, деревянным потолком на втором этаже, огромным количеством туристических сувениров, имеющих ценность для хозяйки, тропическими мотивами в выбранных фресках, золотой фурнитурой. Здесь все причудливо, и все между собой сочетается.
19 фото

Гостиная

Гостиная

Гостиная

Кухня

Кухня

Столовая

Санузел

Прихожая

Лестница

Коридор

Спальня

Спальня

Спальня

Спальня

Кабинет

Кабинет

Кабинет

Ванная комната

Ванная комната Редакция предупреждает, что в соответствии с Жилищным кодексом РФ требуется согласование проводимых переустройств и перепланировок.

Смотреть перепланировку

Анастасия Дубровина

Константин Малюта Эклектика Зеленый цвет Розовый цвет Яркие цвета Мятный цвет