Рассказываем, как оформить двушку в хрущевке для разных составов семьи, с перепланировкой и без. Показываем примеры работы с пространством.
Вторичное жилье для многих привлекательно сравнительно невысокой ценой. Да, условия в квартире обычно соответствующие, но ее можно преобразить, сделать более удобной и современной. Хрущевки с 2 комнатами подходят как для одного человека, так и для пар или семей с детьми — вариантов, как распределить пространство, больше, чем в тридцатиметровой однушке. В статье расскажем, каким должен быть дизайн такой двушки, покажем реальные примеры и варианты перепланировок.
Все о дизайне хрущевки с 2 комнатами
Особенности жилья
Ремонт без перепланировки
Ремонт с перепланировкой
— Для одного
— Для аренды
— Для пары
— Для семьи с детьми
Оформление комнат
— Кухня
— Жилые комнаты
— Санузел
— Прихожая
Особенности жилья

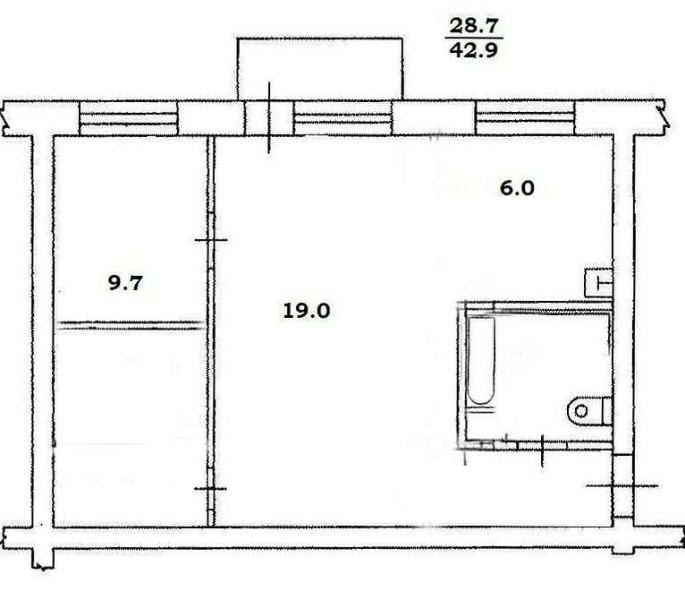
К хрущевкам относят все серии типовых домов, которые возводились при Хрущеве. Тогда основной целью было построить как можно больше жилых зданий, и сделать это нужно было быстро и недорого. Отсюда и соответствующие особенности, которые хорошо видны на фото хрущевок с 2 комнатами, одной или тремя.
Вот что характерно для такого жилья:
- Небольшая общая площадь. Для двушек это 38-46 кв. м в зависимости от года и места постройки дома.
- Маленькие изолированные помещения. Кухня — 4-6 квадратов, санузел чаще всего совмещенный, 3-4 квадрата. Жилые комнаты могут быть от 6 до 16 кв. м.
- Неудобный узкий коридор и тесная прихожая.
- Низкие потолки. Всего 2,5 метра в ранних сериях, в более поздних могут быть до 2,7 метров.
- Тонкие стены и плохая шумоизоляция. Слышно все, что происходит у соседей.
- Износившиеся коммуникации, которые могут требовать ремонта или полной замены.
- Не самая удобная планировка — есть узкие и проходные комнаты. Но об этом позже.

Дизайн: Наталья Коренева и Елена Жадан, соцсети фотографа alexandrova_dina

Дизайн: Наталья Коренева и Елена Жадан, соцсети фотографа alexandrova_dina

Дизайн: Наталья Коренева и Елена Жадан, соцсети фотографа alexandrova_dina

Дизайн: Наталья Коренева и Елена Жадан, соцсети фотографа alexandrova_dina
Со всем этим предстоит работать в процессе ремонта и планировки хрущевки с 2 комнатами. Причем изменение исходных данных может оказаться проблематичным. Например, чтобы сделать кухню-гостиную, придется отказаться от газа в квартире или обязательно ставить раздвижную перегородку. А несущие стены вообще исключают возможность как-то менять конфигурацию комнат.
16 фото

Дизайн: Анна Малютина

Дизайн: Анна Малютина

Дизайн: Анна Малютина

Соцсети блогера rooms.doors

Соцсети блогера rooms.doors

Дизайн: Юлия Винярская. Фото: Михаил Чекалов. Фото: Софья Калбазова

Соцсети блогера shaitor_katya

Соцсети блогера shaitor_katya

Дизайн: Юлия Винярская. Фото: Михаил Чекалов. Фото: Софья Калбазова

Дизайн: Юлия Винярская. Фото: Михаил Чекалов. Фото: Софья Калбазова

Дизайн: Юлия Винярская. Фото: Михаил Чекалов. Фото: Софья Калбазова

Дизайн: Екатерина Паршинцева. Фото: Ульяна Гришина. Стиль: Екатерина Шаповалова

Дизайн: Екатерина Паршинцева. Фото: Ульяна Гришина. Стиль: Екатерина Шаповалова

Дизайн: Екатерина Паршинцева. Фото: Ульяна Гришина. Стиль: Екатерина Шаповалова

Соцсети блогера hruschevka_s_himerami

Соцсети блогера hruschevka_s_himerami
Ремонт хрущевки с 2 комнатами без перепланировки
Первый и самый главный вопрос для владельцев такой квартиры: делать ли глобальную перепланировку хрущевки с 2 комнатами или нет?

Изначальные условия устраивают не всех, но многие стараются избежать сложного процесса и стараются улучшить пространство в рамках того, что уже есть. Зачастую это удается: в интернете есть много фото 2-комнатных хрущевок без перепланировки, которые удобны для современной жизни.
- Зонирование можно реализовать в рамках комнаты, не перенося перегородки. Для этого подойдут стеклянные экраны, стеллажи и другая мебель, поставленная определенным образом, шторы.
- Для маленькой ванной или узкой прихожей стоит подобрать компактную мебель, сантехнику, аксессуары для хранения.
- Если в квартире есть кладовка, ее можно использовать для хранения или превратить в мини-гардеробную.
- Будет полезная любая мебель-трансформер: раскладной диван, шкаф-кровать, откидной стол, рабочее место, которое превращается в стеллаж. Так вы сможете быстро и просто менять функционал комнаты в разное время суток, когда приходят гости и т.п.
17 фото

Соцсети блогера dvushka48m

Соцсети блогера dvushka48m

Соцсети блогера dvushka48m

Соцсети блогера dvushka48m

Соцсети блогера dvushka48m

Соцсети блогера monartdedesign

Соцсети блогера monartdedesign

Соцсети блогера monartdedesign

Соцсети блогера monartdedesign

Соцсети блогера monartdedesign

Соцсети блогера monartdedesign

Соцсети блогера monartdedesign

Соцсети дизайнера daria_kosachyova

Соцсети дизайнера daria_kosachyova

Соцсети дизайнера daria_kosachyova

Соцсети дизайнера daria_kosachyova

Соцсети дизайнера daria_kosachyova
Варианты перепланировки 2-х комнатной хрущевки
В некоторых случаях новое планировочное решение просто необходимо. Вот несколько примеров, что можно сделать.
Для одного жильца
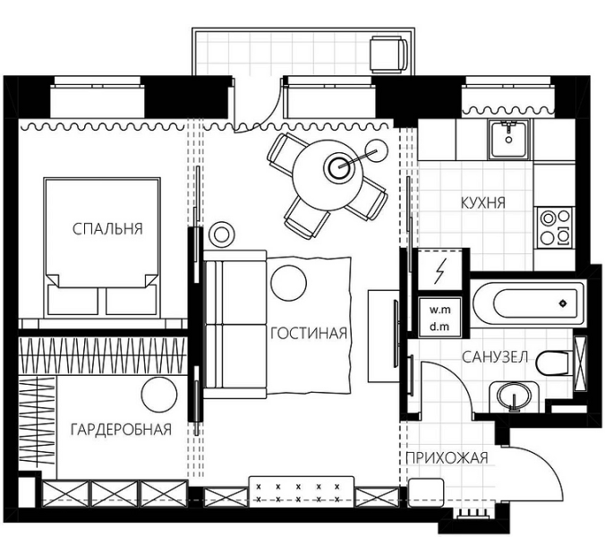
Эту квартиру площадью 43 кв. м оформляли для девушки, и важно было возможность официально согласовать все преобразования. Поэтому их внесли по минимуму и строго в рамках закона.
Так, изменили:
- Перенесли входы на кухню и в спальню, расположив их по одной оси и получив анфиладу с проходной гостиной.
- В спальне часть пространства выделили под гардеробную — сейчас это популярный прием даже в очень маленьких квартирах.
- Более рационально использовали вытянутый коридор. Одну часть отдали под то, чтобы встроить холодильник на кухне, другую — под расширение санузла. Таким образом там встала не только полноценная ванна, но и колонна из стиральной и сушильной машин.
В итоге мы видим пример удобной перепланировки 2-комнатной хрущевки с проходной комнатой.

Проект Екатерины Паршинцевой До

Проект Екатерины Паршинцевой После
Для сдачи в аренду
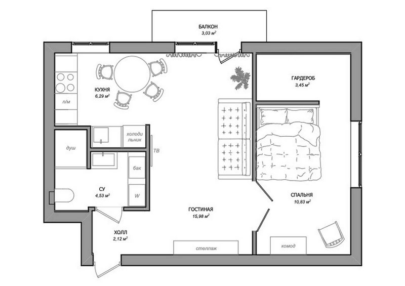
Вторичку часто преображают для того, чтобы потом сдавать в аренду. Так, эта двушка в Геленджике предназначена для приема туристов и гостей города, поэтому пространство нужно было сделать максимально удобным и универсальным. В работу дизайнеру досталось жилье с уже измененным планировочным решением, которое все так же оставалось неудобным.
Для этого:
- Снесли все перегородки (стены не несущие) и возвели их заново.
- Объединили кухню и гостиную, к последней присоединили коридор — от него как от отдельной функциональной зоны отказались.
- За его же счет увеличили ванную.
- Вход в спальню перенесли, теперь туда можно попасть из гостиной. Как и в предыдущем примере, небольшую часть помещения отвели под гардеробную.

Проект Юлии Винярской До

Проект Юлии Винярской После
Для двоих
Хрущевская двушка будет удобна для пары: площади и функционала вполне достаточно. Можно обойтись даже без перепланировки, но при отсутствии несущих стен есть смысл сделать ее удобнее. Например, здесь отказались от газа и объединили кухню с гостиной. В итоге получилась классическая европланировка с просторной общей зоной и маленькой изолированной спальней. Кладовку увеличили и сделали небольшую, но вместительную гардеробную. А на месте бывшего коридора выделили мини-кабинет.

Соцсети блогера oleynik_natalka До

Соцсети блогера oleynik_natalka После
Для семьи с детьми
Если в семье есть ребенок или даже двое, то есть два пути: отказаться от гостиной, выделив одну комнату под спальню, другую — под детскую, или оставить общее пространство, а во второй комнате оформить взрослую и детскую зоны. В этом примере сделали именно так, причем родительскую часть полностью обособили, передвинув перегородку кладовки. Таким образом дальнюю комнату разделили на две, получив мини-спальню и детскую.
Поскольку места будет мало, если детей двое, единственный вариант — поставить двухъярусную кровать. А если один из малышей еще совсем маленький, можно поставить детскую кроватку рядом со спальным местом родителей. На фото ниже — перепланировка хрущевки с 2 комнатами.

Соцсети блогера byswetka_home До

Соцсети блогера byswetka_home После
Оформление комнат
Наконец, рассмотрим работающие приемы для ремонта 2 комнат в хрущевке с фото реальных квартир.
Кухня

Кухня — главная боль всех владельцев вторички того периода. На 4-6 квадратах действительно сложно разместить все необходимое, особенно если обе комнаты отданы под спальни и нет возможности вынести столовую зону в гостиную.
Что делать на такой маленькой кухне?
- Подумать, от чего можно отказаться. Возможно, вам не нужна СВЧ-печь или посудомойка либо вы можете вынести холодильник в коридор.
- Отдавать предпочтение компактным моделям. Вы не так много готовите дома? Тогда вам точно хватит двухкомфорочной плиты. А, может быть, и холодильник подойдет в мини-формате, который можно встроить в нижний ряд гарнитура.
- Если место для обеденной зоны есть только на кухне, можно заменить классический обеденный стол барным или задействовать подоконник.
- Использовать рационально каждый сантиметр. Сделайте шкафы до потолка, повесьте на фартук рейлинги, поставьте на холодильник пару органайзеров для хранения. Так вы незаметно выделите тут и там немного места под все нужные мелочи.
Что касается дизайна, то здесь работают универсальные правила. Самый простой и безопасный вариант — однотонные поверхности и светлые нейтральные цвета. Можно и поэкспериментировать, но если вы используете яркую или темную палитру, позаботьтесь о хорошем освещении.
11 фото

Соцсети блогера gulnaz_flipping

Соцсети блогера gulnaz_flipping

Соцсети блогера shaitor_katya

Соцсети блогера shaitor_katya

Дизайн: Юлия Винярская. Фото: Михаил Чекалов. Фото: Софья Калбазова

Дизайн: Юлия Винярская. Фото: Михаил Чекалов. Фото: Софья Калбазова

Соцсети блогера rooms.doors

Дизайн: Екатерина Паршинцева. Фото: Ульяна Гришина. Стиль: Екатерина Шаповалова

Дизайн: Екатерина Паршинцева. Фото: Ульяна Гришина. Стиль: Екатерина Шаповалова

Дизайн: Екатерина Паршинцева. Фото: Ульяна Гришина. Стиль: Екатерина Шаповалова

Соцсети блогера byswetka_home
Жилые комнаты
Жилые зоны оформляются в соответствии с общим стилем, который вы выбрали для квартиры.

Их назначение зависит от состава семьи. Для одного человека или пары без детей подойдет вариант с гостиной и отдельной спальне. При наличии двух поколений придется либо отказаться от гостиной, либо зонировать вторую комнату. Последний вариант больше актуален для маленьких детей, а вот подросткам очень нужно свое пространство. В 2-комнатной хрущевке проходную комнату лучше отдать под гостиную, поскольку отдыхать там, где все время кто-то ходит, будет не слишком удобно.
12 фото

Дизайн: Юлия Винярская. Фото: Михаил Чекалов. Фото: Софья Калбазова

Дизайн: Юлия Винярская. Фото: Михаил Чекалов. Фото: Софья Калбазова

Дизайн: Юлия Винярская. Фото: Михаил Чекалов. Фото: Софья Калбазова

Дизайн: Анна Малютина

Дизайн: Анна Малютина

Дизайн: Анна Малютина

Соцсети блогера shaitor_katya

Соцсети блогера shaitor_katya

Дизайн: Екатерина Паршинцева. Фото: Ульяна Гришина. Стиль: Екатерина Шаповалова

Дизайн: Екатерина Паршинцева. Фото: Ульяна Гришина. Стиль: Екатерина Шаповалова

Дизайн: Екатерина Паршинцева. Фото: Ульяна Гришина. Стиль: Екатерина Шаповалова

Соцсети блогера rooms.doors
Если в одном помещении планируется несколько функциональных зон, продумайте эргономичное расположение мебели: диваны, кресла, столы, кровати должны стоять так, чтобы между ними был свободный проход. А чтобы пространство не казалось тесным, лучше выбрать светлую спокойную отделку и лаконичную мебель, возможно, даже ей в тон. Какие-то предметы можно сделать акцентными, чтобы добавить в нейтральный интерьер изюминку. То же самое помогут сделать детали: декор и текстиль.
7 фото

Соцсети блогера my47home

Соцсети блогера my47home

Соцсети блогера my47home

Соцсети блогера my47home

Соцсети блогера byswetka_home

Соцсети блогера gulnaz_flipping

Соцсети блогера gulnaz_flipping
Санузел
Обычно санузел в хрущевских двушках совмещенный, и чаще всего это удобный вариант, поскольку так можно вместить больше мебели и техники. Особенно если немного расширить площадь ванной за счет коридора.

Если вам подходит душевая кабина, то вы без проблем разместите в санузле ее, унитаз, раковину и стиральную машину. А вот тем, кому принципиально важна ванна, придется подумать, как найти место для всей необходимой техники. Например, можно поставить машинку на кухне или выбрать компактную настенную модель — для 1-2 человек уменьшенного барабана точно хватит.
14 фото

Соцсети блогера my47home

Соцсети блогера my47home

Соцсети блогера my47home

Соцсети блогера byswetka_home

Дизайн: Юлия Винярская. Фото: Михаил Чекалов. Фото: Софья Калбазова

Дизайн: Юлия Винярская. Фото: Михаил Чекалов. Фото: Софья Калбазова

Дизайн: Екатерина Паршинцева. Фото: Ульяна Гришина. Стиль: Екатерина Шаповалова

Дизайн: Анна Малютина

Соцсети блогера rooms.doors

Соцсети студии destiny_dizain

Соцсети студии destiny_dizain

Соцсети студии destiny_dizain

Соцсети блогера dvushka48m

Соцсети блогера dvushka48m
Прихожая
Прихожая в хрущевке занимает буквально пару квадратов, поэтому здесь нужно в первую очередь позаботиться об эргономике и хранении.

Хороший вариант — неглубокий шкаф под потолок. Если есть возможность хранить основной массив вещей в спальне, гостиной или отдельной гардеробной, можно ограничиться обувницей и вешалкой для верхней одежды. Самое главное — продумать логистику так, чтобы не нести грязь в дом. Для этого пригодятся придверный коврик, подставка под зонтики и мокрую обувь.
Для отделки выбирайте практичные материалы, которые не боятся химии и легко моются. Для пола это плитка, керамогранит и кварцвинил, для стен — влагостойкая краска, антивандальные обои или штукатурка. Палитру лучше сделать простой: на базе белого, бежевого или серого.
9 фото

Соцсети блогера hruschevka_s_himerami

Соцсети блогера hruschevka_s_himerami

Дизайн: Екатерина Паршинцева. Фото: Ульяна Гришина. Стиль: Екатерина Шаповалова

Дизайн: Анна Малютина

Соцсети блогера my47home

Соцсети блогера rooms.doors

Соцсети блогера dvushka48m

Соцсети блогера dvushka48m

Соцсети блогера dvushka48m

Анастасия Степанова Хрущевки