Показываем примеры, как можно оформить квартиру для большой семьи, не забыв о комфорте и потребностях каждого.
1. Уютная квартира, где есть все необходимые зоны
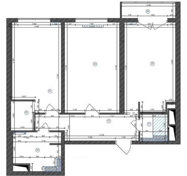
Здесь живут: родители и двое маленьких детей.
Хозяева этой квартиры хотели видеть пространство светлым и уютным, при этом со всем необходимым функционалом для семьи с маленькими детьми. Чтобы сделать пространство более удобным, решились на перепланировку. Изначально была только одна изолированная комната и кухня-гостиная, но вторую отделили от зоны готовки и организовали там детскую. В общем пространстве перегородкой отделили место для семейного отдыха. В качестве палитры дизайнер выбрала нейтральную теплую бежево-розовую гамму с акцентным голубым. В доме есть выделенная детская зона в бело-мятном оттенке, а также родительская спальня в бежевом цвете.
10 фото

Дизайн: Карина Маголина. Фото: Екатерина Титенко. Стиль: Наталья Орешкова

Дизайн: Карина Маголина. Фото: Екатерина Титенко. Стиль: Наталья Орешкова

Дизайн: Карина Маголина. Фото: Екатерина Титенко. Стиль: Наталья Орешкова

Дизайн: Карина Маголина. Фото: Екатерина Титенко. Стиль: Наталья Орешкова

Дизайн: Карина Маголина. Фото: Екатерина Титенко. Стиль: Наталья Орешкова

Дизайн: Карина Маголина. Фото: Екатерина Титенко. Стиль: Наталья Орешкова

Дизайн: Карина Маголина. Фото: Екатерина Титенко. Стиль: Наталья Орешкова

Дизайн: Карина Маголина. Фото: Екатерина Титенко. Стиль: Наталья Орешкова

Дизайн: Карина Маголина. Фото: Екатерина Титенко. Стиль: Наталья Орешкова

Проект Карины Маголиной
2. Мини-квартира со вторым ярусом
Здесь живут: родители и две дочки 5 и 13 лет.
Площадь этой квартиры — всего 48 квадратных метров вместе с лоджией. На таком небольшом пространстве удалось не только обустроить общую зону и удобный санузел, но и выделить места для каждого из четырех членов семьи: взрослых и детей. Во многом помог высокий потолок. Наверху сделали второй ярус и там оформили уединенную спальню для детей. Внизу поставили диванчик, который служит зоной отдыха для всей семьи. Рядом за стеклянной перегородкой — небольшая изолированная спальня родителей. Там же в изголовье спроектирована система хранения для одежды — отличное решение для маленькой квартиры.
9 фото

Дизайн: Елизавета Ткачева. Фото: Михаил Чекалов

Дизайн: Елизавета Ткачева. Фото: Михаил Чекалов

Дизайн: Елизавета Ткачева. Фото: Михаил Чекалов

Дизайн: Елизавета Ткачева. Фото: Михаил Чекалов

Дизайн: Елизавета Ткачева. Фото: Михаил Чекалов

Дизайн: Елизавета Ткачева. Фото: Михаил Чекалов

Дизайн: Елизавета Ткачева. Фото: Михаил Чекалов

Дизайн: Елизавета Ткачева. Фото: Михаил Чекалов

Проект Елизаветы Ткачевой
3. Удобная квартира в современной эстетике
Здесь живут: семейная пара с двумя детьми.
Интерьер этой двухкомнатной квартиры выглядит легко и просторно. На 68 квадратах удалось выделить место для каждого члена семьи, а также предусмотреть общие зоны и вместительное хранение. В оформлении дизайнер использовала много зеркал, лаконичные формы мебели и светильников, нейтральную палитру и немного графичных деталей вроде черных спотов на потолке. Изначальная планировка была удачной, поэтому кардинальных изменений не вносили: только убрали перегородку между коридором и кухней-гостиной.
9 фото

Дизайн: Наталия Смородина. Фото: Наталья Вершинина

Дизайн: Наталия Смородина. Фото: Наталья Вершинина

Дизайн: Наталия Смородина. Фото: Наталья Вершинина

Дизайн: Наталия Смородина. Фото: Наталья Вершинина

Дизайн: Наталия Смородина. Фото: Наталья Вершинина

Дизайн: Наталия Смородина. Фото: Наталья Вершинина

Дизайн: Наталия Смородина. Фото: Наталья Вершинина

Дизайн: Наталия Смородина. Фото: Наталья Вершинина

Проект Наталии Смородиной
4. Небольшая светлая квартира в сканди-стиле
Здесь живут: родители и двое детей.
Компактная двухкомнатная квартира была оформлена для семьи из четырех человек: взрослых и двоих детей. Самой многофункциональной комнатой получилась гостиная: здесь выделили столовую, зону отдыха с диваном, рабочие места и мини-спальню. Последние две зоны расположены друг над другом: внизу — два компьютерных стола, над ними на «чердаке» — спальное место родителей. В детской поставили двухъярусную кровать, к которой может присоединяться горка. Рядом оформили места для хранения и пространство для игр.
9 фото

Соцсети блогера dasha_tretyakova

Соцсети блогера dasha_tretyakova

Соцсети блогера dasha_tretyakova

Соцсети блогера dasha_tretyakova

Соцсети блогера dasha_tretyakova

Соцсети блогера dasha_tretyakova

Соцсети блогера dasha_tretyakova

Соцсети блогера dasha_tretyakova

Соцсети блогера dasha_tretyakova
5. Уютная евротрешка с яркими акцентами
Здесь живут: семейная пара и трое дочек 9-11 лет.
Эту квартиру с двумя изолированными комнатами и общей кухне-гостиной требовалось обустроить для семьи из пяти человек: родителей и троих детей. Хозяева хотели получить продуманный интерьер с вместительным хранением и уединенным пространством для взрослых. В родительской спальне, помимо кровати и тумбочек, поставили небольшую консоль для мелочей. Основной массив вещей хранится в гардеробной. В комнате девочек же удобно разместили сразу три кровати: две стоят рядом, а третья — над ними. Для удобства второй санузел сделали детским.
10 фото

Дизайн: Ксения Харламова. Фото: Екатерина Будюк. Стиль: Анна Суворова

Дизайн: Ксения Харламова. Фото: Екатерина Будюк. Стиль: Анна Суворова

Дизайн: Ксения Харламова. Фото: Екатерина Будюк. Стиль: Анна Суворова

Дизайн: Ксения Харламова. Фото: Екатерина Будюк. Стиль: Анна Суворова

Дизайн: Ксения Харламова. Фото: Екатерина Будюк. Стиль: Анна Суворова

Дизайн: Ксения Харламова. Фото: Екатерина Будюк. Стиль: Анна Суворова

Дизайн: Ксения Харламова. Фото: Екатерина Будюк. Стиль: Анна Суворова

Дизайн: Ксения Харламова. Фото: Екатерина Будюк. Стиль: Анна Суворова

Дизайн: Ксения Харламова. Фото: Екатерина Будюк. Стиль: Анна Суворова

Проект Ксении Харламовой

Елена Перлова