В разное время в доме, где расположена эта квартира, жили Рокоссовский, Твардовский и другие знаменитые персоны. Дизайнер решила создать интерьер с заботой об истории дома и современной функциональностью.
Заказчики и задачи
Владельцы этой квартиры — семейная пара, которая постоянно живет в другом городе, а в Москве бывает наездами. Тем не менее они решили обустроить для своих приездов гостевую квартиру, для чего обратились к дизайнеру Наталье Нелюбиной. «Хотелось получить эргономичное, атмосферное пространство для временного пребывания с возможностью принять и разместить гостей (организация гостевого спального места в гостиной)», — комментирует Наталья. Заказчики хотели объединить гостиную, кухню и прихожую, сделать совмещенную ванную комнату, где можно разместить и ванну, и душ.

Перепланировка
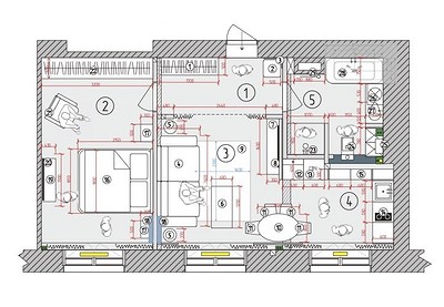
До ремонта это была стандартная двушка с изолированными комнатами, маленькой кухней, раздельными ванной и туалетом, прихожей и коридором. Дизайнер объединила кухню с гостиной, убрала часть перегородки между гостиной и прихожей, объединила ванную и туалет и расширила их за счет коридора. Таким образом получилось то пространство, которое хотели видеть заказчики. Площадь осталась прежней — 54 кв. м.

Отделка
Выбранная стилистика, которую автор определяет как советское ар-деко или сталинский ампир, диктовала и отделку. На стенах — декоративная штукатурка с эффектом бархата; много лепного декора — плинтусы, высокие потолочные карнизы, подчеркивающие высоту потолка (3 метра в чистовом виде), потолочные розетки. На полу — каменно-полимерная напольная плитка, имитирующая классическую укладку паркета. Плитка уложена по всей площади квартиры, исключая ванную комнату.

В спальне на стене напротив кровати — фреска с ботаническим рисунком. Как правило, акценты размещают на противоположной стене, за изголовьем кровати. Это обусловлено тем, что активные рисунки могут помешать хорошему засыпанию. Однако здесь другой случай. Рисунок на фреске расслабляющий и даже медитативный. А при открытой двери в спальню его видно и из прихожей. Так и задумывала дизайнер.

В ванной комнате керамогранит под белый мрамор скомбинировали с керамогранитом под натуральный камень. Из-за особенностей архитектуры дома потолок здесь получился разноуровневый. Его декорировали бордюром из фрески.

Массивные белые двери в цвет плинтусов и карнизов завершили образ отделки, как и резные решетки для радиаторов, декорированные вензелем.
Мебель и системы хранения
Дизайнер спроектировала два шкафа. Один из них — в прихожей. Это новая система хранения, выполненная в стиле 30-50-х годов. Шкаф стал не только функциональным, но и декоративным элементом входной зоны. Второй шкаф встроен в спальне во всю длину торцевой стены. На одном из фасадов — зеркало, что помогло визуально увеличить объем этой комнаты.

Кухню также изготовили на заказ. Она угловая с рядом верхних и нижних шкафов, выполнена в двух цветах. Верхний ряд кремово-белый, под цвет потолка, нижний — светлый беж. Там, где раньше был вход на кухню, встроены высокие колонны для холодильника и духового шкафа. Шкафы по стене, граничащей с ванной комнатой, уменьшенной глубины, так как было необходимо подстроиться под планировку комнаты.

В ванной комнате, кроме тумбы под раковину, для хранения и скрытия доступа к коммуникациям спроектирован встроенный шкаф с минималистичными фасадами без ручек. Он намеренно задуман таким, чтобы не привлекать к себе внимания.

Почти все предметы обстановки изготовили на заказ российские производители из разных городов и областей нашей большой страны: Москва, Санкт-Петербург, Киров, Владимир, Крым. Дизайнер нашла в этом свой символизм. «Интересный факт: когда-то в доме на Тверской располагался книжный магазин «Дружба», где продавались книги писателей стран соцлагеря, а сегодня здесь — квартира, интерьер которой тонко передает дух эпохи, где собраны работы мастеров со всех уголков нашей страны», — говорит Наталья.
Освещение
Следуя стилистике, выбрали соответствующие светильники. В каждой комнате общее потолочное освещение решено люстрами в классическом стиле. Дополнительные сценарии — настенные бра, настольные лампы, торшеры — также отвечают заданной эстетике.

Текстиль и декор
Стены квартиры украшает искусство — картины, на которых изображены исторические виды Москвы. На стене за диваном — крупное зеркало в фигурной раме. Над кроватью — тоже зеркало, в которой отражается настенная фреска. Под разными углами просмотра в этом зеркале — новая картина.

Еще одно примечательное зеркало разместили в прихожей. Оно двойное, угловое. Не только увеличивает пространство, но и скрывает за собой доступ к электрическому щитку.

Текстиль тоже подобран под стать. «Мы использовали велюр и шенилл, они относятся к ворсовым материалам, создают атмосферу уюта, придают статусность интерьеру, поддерживают общее стилевое решение», — комментирует Наталья.

Наталья Нелюбина Дизайнер, автор проекта
Передать дух эпохи, достичь идеального взаимодействия архитектурного и интерьерного решений, создать эргономичное пространство, отвечающее запросам живущих в нем людей, — нетривиальная задача. В проекте «Дух эпохи» все составляющие сложились в идеальную картину. Идея создания интерьера в стиле сталинского ампира или советского ар-деко появилась не случайно. Квартира расположена в центре столицы, в классической сталинке. Дом с богатой историей и целой чередой знаменитых жильцов. В разное время в доме жили маршал Константин Рокоссовский, оперный певец Сергей Лемешев, народный артист и певец Максим Михайлов, писатель и поэт Александр Твардовский и видный государственный деятель Иван Лихачев. Источником вдохновения послужила сама столица в лучших и самых примечательных ее проявлениях: роскошные станции метрополитена, грандиозные помпезные сооружения ВДНХ, те самые сталинские высотки, призванные в свое время демонстрировать достижения СССР и коммунистического строя.
22 фото

Гостиная

Гостиная

Гостиная

Кухня

Кухня

Кухня

Кухня

Кухня

Прихожая

Прихожая

Спальня

Спальня

Спальня

Спальня

Спальня

Спальня

Ванная комната

Ванная комната

Ванная комната

Ванная комната

Ванная комната

Ванная комната Редакция предупреждает, что в соответствии с Жилищным кодексом РФ требуется согласование проводимых переустройств и перепланировок.

Смотреть перепланировку

Анастасия Дубровина

Глеб Хлопунов Классический стиль Светлые цвета