Используя природные материалы и цвета, дизайнер Ксения Мальцева создала аутентичный интерьер двухкомнатной квартиры в Москве
Гостиная. Столики, La Forma. Диван, Lavsit. Свет, Сentrsvet. Мрамор, Cosmostone. Камин, Dimplex.
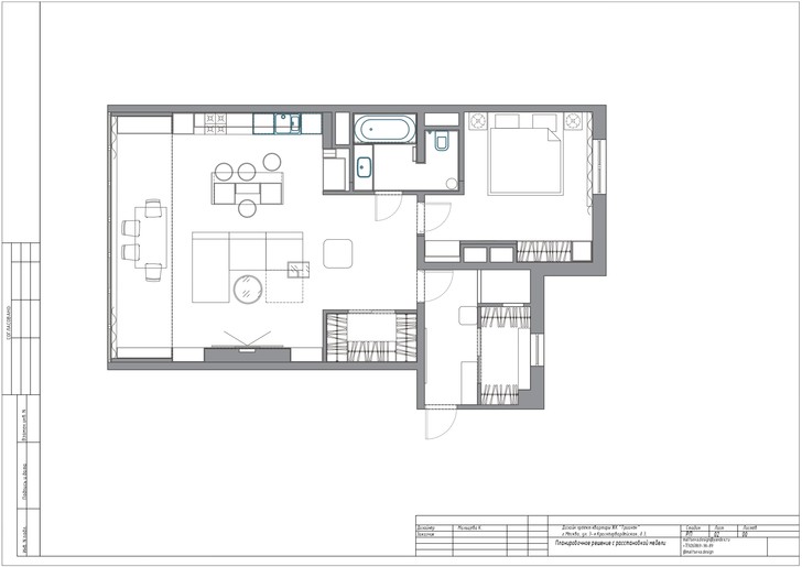
ПАРАМЕТРЫ ОБЪЕКТА
-
Тип недвижимости: квартира
-
Где находится: г. Москва, ЖК «Трианон»
-
Метраж: 85 м²
-
Стиль: стилистический микс с нотками этно
-
Основная идея проекта: создание комфортного технологичного пространства, в котором органично сочетается прошлое и будущее
-
Цветовая гамма: природные оттенки с добавлением коричнево-серых и пудрово-розовых тонов
-
Авторы проекта: дизайнер Ксения Мальцева, т. +7(926)869-96-89, maltseva.design@yandex.ru, @maltseva.design

Ковер, Kover.ru. Декор, Moon-stores.

дизайнер Ксения Мальцева
Квартира площадью 85 кв.м спланирована с учетом того, что в Москве хозяйка, которая живет в США, бывает только наездами. Это позволило свободно распоряжаться площадью, выделив отдельную спальню, и отдав основное пространство под большую гостиную, совмещенную со столовой и кухней. Огромным плюсом гостиной являются огромные окна во всю стену. Невысокий подиум вдоль окон — конструктивная особенность здания — превращает место у окна в отличную смотровую площадку, с которой видны небоскребы Сити. Так что вечером вместо свечей можно ужинать при свете городских огней.

Кухня и сервант выполнены в столярной мастерской Dargo. Панно, Kim art. Подушки, Togas.

Барные стулья, Lavsit. Подвесные светильники, Kartell. Бытовая техника, Neff.
В выборе стилистики интерьера дизайнер и владелица были абсолютно единодушны. Хозяйка просила сделать технологичное, но в то же время насыщенное природными материалами пространство. Интерьер должен быть мягким и обволакивающим, в тоже время достаточно контрастным с сочетанием фактур грубой древесины, камня и предметами ремесленного труда.

Стулья, Cattelan Italia. Стол выполнен в столярной мастерской Dargo.


Стеллажи выполнены в столярной мастерской Dargo.
Интерьер гостиной строился вокруг заранее выбранных для фартука и камина слэбов мрамора. Под его рисунок и цвет подбирались другие элементы отделки и обстановки. Стена напротив окна отделана каменным шпоном, который играет цветными бликами при попадании солнечного света. Авторская мебель выполнялась на заказ, а поиски баланса обеденного стола на трех ножках заняли не одну неделю. Шпон кухонных шкафов был выбран максимально грубый и рельефный с легким эффектом старения, чтобы подчеркнуть природную красоту дерева. Необычная стена за изголовьем кровати лепилась вручную под руководством дизайнера.

Спальня. Кровать, Lavsit. Тумбы и балки выполнены в столярной мастерской Dargo. Подушки, Togas.

Туалетный столик и шкаф выполнены в столярной мастерской Dargo.

Светильники, Penta.

Декор, Moon-stores.
В санузле использован мрамор с живописным рисунком breccia aurora и уникальная раковина из окаменелого дерева, привезенная с Бали. Ручки шкафов отливались из меди по форме природных кристаллов, а небольшой журнальный столик, не подошедший по цвету, отдали в переделку, придав ему металлизированный графитовый оттенок. Разве что светильники от Kartell над кухонным островом оказались в интерьере случайно — их повесили временно, пока оформлялся заказ на свет по проекту, но они так красиво преломляли свет при включении, рассыпая миллионы радужных осколков света по потолку, что единогласно было принято решение их оставить.

Ванная комната. Мрамор, Cosmosstone. Раковина, Woodstonebali. Декор, Moon-stores. Сантехника, Cisal, Villeroy & Boch. Керамическая плитка, Atlas Concorde.

Квартира в Москве. Проект дизайнера Ксении Мальцевой.