Квартира принадлежит дизайнеру, и она создала новый, светлый и вдохновляющий интерьер для гостей Геленджика. При этом потратили около 1 млн рублей, что кажется совсем небольшим бюджетом при таком объеме работ!
Эта квартира в старом доме 1967 года принадлежит дизайнеру Юлии Винярской. Недвижимость приобрели для того, чтобы сдавать ее в аренду гостям города. «На рынке аренды Геленджика редко можно встретить квартиру с хорошим дизайном, а расположение дома в самом центре города говорило лишь в пользу такого использования. Хотели сделать уютную, удобную, светлую и теплую квартиру для гостей курорта», — рассказывает Юлия.

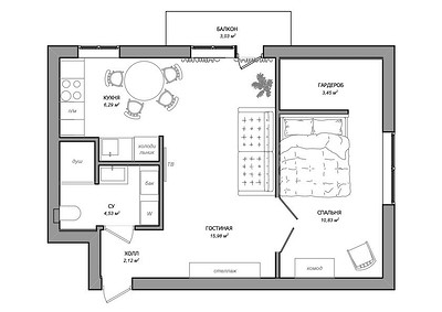
Перепланировка
Квартира досталась Юлии уже с измененной перепланировкой, что выяснилось после покупки. Но все «прелести» хрущевок оставались — маленькая кухня, такая же ванная, неудобный длинный коридор. Перепланировка была необходима, чтобы создать новое пространство, отвечающее современным представлением о комфорте. Таким образом, решили убрать абсолютно все перегородки. Новые возводили с учетом планируемой перепланировки. Кухню и гостиную объединили. Коридор убрали, присоединив его к гостиной. Вход в спальню сделали из гостиной через двойные стеклянные двери. В спальне выделили гардеробную. Новые границы санузла расширены за счет коридора.

Есть и несколько важных моментов в перепланировке. Первый — площадь кухни немного «зашла» на площадь санузла. Над частью кухни оказался санузел соседей — таким образом ухудшаются жилищные условия хозяев, но не соседей. Юридически это оформляется нотариально заверенным согласием на ухудшение жилищных условий, объяснила Юлия. Второй момент — объединение комнаты и кухни с газом. По правилам, между ними должна быть перегородка. Здесь будет заказана и установлена раздвижная легкая конструкция. Сейчас новая планировка находится в процессе оформления.

Отделка
Отделочные материалы выбирали по соображениям практичности и эстетики и смогли неплохо сэкономить. Так, стены окрашены светлой краской — она легко восстанавливается, что важно для квартиры, сдающейся в аренду. Потолки натяжные — такой выбор сделали в целях экономии. В жилых комнатах на полу уложена инженерная доска. Она досталась Юлии бесплатно: на одном из ее рабочих объектов снимали старый пол — эту доску — и заказчики отдали материал Юлии. Доску не стали циклевать, покрыли лаком, что придало интерьеру свое винтажное очарование.

На фартуке и подоконниках кухни и гостиной — керамогранит, который тоже достался Юлии бесплатно (знакомая владелица салона керамогранита и сантехники при его закрытии отдала выставочные образцы). Крупноформатные плиты уложили с минимальным количеством швов и сделали скошенную линию обреза от верхних шкафов до столешницы. «Когда фартук из крупного керамогранита, такой раскрой плиты, на мой взгляд, весьма логичен и эстетично смотрится», — говорит Юлия.

На полу кухни и ванной — шестиугольная плитка с рисунком терраццо от Kerama Marazzi — демократичного бренда. На стенах в ванной — голубая квадратная плитка того же производителя. «Это самая недорогая плитка, которая была на тот момент в салоне. Весь материал вместе с клеем, уголками и затиркой обошелся примерно в 27 тысяч рублей. Когда мы делали ремонт, была полная неизвестность: что нас ждет, какой будет летний сезон? Разумная экономия в кубе — под этим девизом велись работы в квартире», — делится дизайнер.

Мебель и системы хранения
Основное место для хранения — гардеробная в спальне. Кроме вещей там хранятся гладильная доска и утюг.
Кухню купили в Леруа Мерлен — она обошлась в 75 тыс. рублей вместе с мойкой. Демократичная мебель выглядит стильно и нисколько не выдает своей реальной стоимости. В верхних шкафах над плитой спрятаны газовая колонка и счетчик.

В проекте есть и мебель ИКЕА — раскладная кушетка-диван в гостиной, комод в спальне, стеллаж в гостиной, который Юлия перекрасила. На момент покупки шведский бренд уже закрыл свои магазины, так что мебель искали и покупали на «Авито». Есть и подлинный винтаж — кресло в гостиной, которое буквально подобрали на улице. Отреставрировали, обивку для сидения сшили из ткани, купленной хозяйкой когда-то в ИКЕА.

Обеденные стулья из ротанга можно использовать и как уличную мебель — из гостиной есть выход на открытый балкон. На нем приятно провести время — оттуда открывается вид на главную пешеходную аллею города.
Журнальный столик в гостиной — белорусского производства. Это трансформер — три столешницы можно раскрывать как лепестки. Это удобно в небольшой комнате, так как в сложенном виде столик не занимает много места.

Освещение
В квартире нет «технического» света в современном понимании — точечных светильников, треков. Этого не предусматривала стилистика, которую задумала Юлия — стиль 60-70-х, винтаж. На потолке в гостиной и спальне — люстры. На кухне и в санузле — небольшие плафоны. Есть винтажное бра (производства ГДР) над кушеткой в гостиной и современный ридер над кроватью в спальне.

Декор
Дизайнер выбирала натуральные ткани, которых было бы приятно касаться, и искусство, чтобы создать атмосферу обжитости и уюта, чего часто не хватает на объектах под сдачу.

Некоторые предметы декора тоже винтажные. Например, зеркало в санузле, которое подарила Юлии ее заказчица, делающая ремонт в старом фонде (это зеркало было в той квартире), а еще крючок для полотенца — его приобрели на «Авито».


Юлия Винярская Дизайнер, хозяйка квартиры и автор проекта
Основная идея проекта — создать интерьер квартиры, ориентированный на тех, кто ценит комфорт и хороший дизайн. Много работ мы выполняли своими руками, некоторые материалы достались бесплатно. Старались тратить с умом, где можно было сэкономить без вреда для эстетики и качества — экономили. Конечно, были и сложности. Например, сделать сухую стяжку. Дом находится в центре города, машине было не подъехать под окна. Также пришлось решить вопрос с газовыми трубами: изначально они буквально оплетали кухню по кругу. Сделали все так, как должно было быть, убрав лишние трубы, и не пришлось делать изменения в проекте газификации. В принципе, все снести и возвести заново — довольно масштабная и непростая задача, особенно учитывая, что в доме проживает много пожилых людей. Чтобы подружиться со старшей по подъезду, в ход шли даже домашние пироги!
11 фото

Кухня

Кухня

Кухня

Гостиная

Гостиная

Гостиная

Спальня

Спальня

Спальня

Спальня

Санузел
Как квартира выглядела до ремонта
12 фото












Редакция предупреждает, что в соответствии с Жилищным кодексом РФ требуется согласование проводимых переустройств и перепланировок.

Смотреть перепланировку

Анастасия Дубровина

Михаил Чекалов

Софья Калбазова Хрущевки Маленькие квартиры Светлые цвета
