Интерьер выполнен в минималистичном ключе с элементами стиля бохо.
Заказчик и задачи
Эта квартира принадлежит девушке, которая работает в офисе, а дома предпочитает отдыхать, проводить свободное время. Она обратилась к дизайнеру Екатерине Кузнецовой с просьбой оформить небольшое пространство функционально и стильно. Из стандартной однушки получилась евродвушка, где есть и спальня, и кухня-гостиная, и много систем хранения.

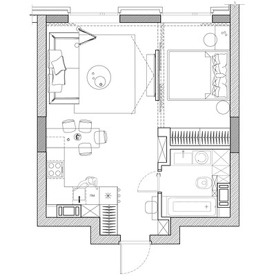
Перепланировка
Застройщик предусматривал кухню, отдельную спальню, ванную и большую прихожую с гардеробной. По мнению Екатерины, и входная зона, и гардероб занимали неоправданно большую площадь для такого метража, поэтому приняли решение о перепланировке. На месте гардеробной сделали кухню-нишу (гардероб — нежилое пространство, поэтому мокрую зону туда можно переносить). Перегородку между бывшей кухней и комнатой убрали. Организовали гостиную, а спальню уменьшили, отделив ее простенком и раздвижными стеклянными перегородками. Перепланировку узаконили. Бывшую кухню согласовали как столовую, поэтому ее можно расширять на жилую зону. Ванную комнату также незначительно расширили на площадь коридора.

Отделка
Для отделки стен выбрали краску в двух оттенках — белый и тауп (серо-коричневый), а также использовали декоративную штукатурку в терракотовом цвете. В спальне часть стены оформлена зеркалом. Оно отражает свет из окна и помогает визуально увеличить пространство.

На полу — инженерная доска в медовом оттенке. Она уложена по всей квартире, включая кухню и прихожую.

В ванной комнате продолжили общую гамму квартиры и природную тему. Здесь на полу и части стен — керамогранит с рисунком терраццо под камень, на других стенах — керамогранит под дерево, скомбинированный с покраской.

Мебель и системы хранения
В спальне встроили вместительный шкаф под потолок для повседневных вещей.

В прихожей — узкий шкаф в нише у входной двери и шкаф для верхней одежды, который переходит в кухонный гарнитур.

Это сложная конструкция, которую дизайнер продумывала и делала на заказ. Сама кухня выполнена в угловой планировке с верхними и нижними шкафами.

Фартук кухни оформлен штукатуркой и покрыт лаком, что защитило покрытие и сделало его более практичным. Внутри фартука в свободной нише также организованы полки для хранения, закрытые фасадом в том же покрытии.

Обеденный стол заменен барной стойкой. Барные стулья — с плетеными сидениями. Дизайнер таким образом решила поддержать природную тему, добавив черты популярного бохо-стиля.

В гостиной есть тумба, установленная под простенком спальни. Диван раскладывается при необходимости.
В ванной комнате — вместительная тумба под раковину, где кроме полок установлена еще и стиральная машина. В углу встроен высокий шкаф для хранения хозяйственных вещей. А также открытые полки.

Освещение
Общее освещение решено потолочными спотами и гипсовыми встроенными светильниками. На кухне — два подвеса над барной стойкой. В спальне по бокам от кровати тоже подвесы. Дизайнер намеренно выбрала разное количество лампочек, создав асимметрию.
В ванной комнате множество скрытых подсветок — зеркала, открытых полок, а также подвес около зеркала.

Екатерина Кузнецова Дизайнер, автор проекта
Проект выполнен в современном минималистичном стиле с использованием деталей в природном и немного бохо-стиле — за настроение отвечает плетеная мебель и текстиль.
26 фото

Гостиная

Гостиная

Кухня

Кухня

Кухня

Кухня

Кухня

Кухня

Спальня

Спальня

Спальня

Спальня

Спальня

Спальня

Спальня

Спальня

Спальня

Спальня

Прихожая

Санузел

Санузел

Санузел

Санузел

Санузел

Санузел

Санузел Редакция предупреждает, что в соответствии с Жилищным кодексом РФ требуется согласование проводимых переустройств и перепланировок.

Смотреть перепланировку

Анастасия Дубровина

Глеб Хлопунов Маленькие квартиры Минимализм Бохо