Яркая квартира для холостяка — директора концертного агентства, настраивает на работу и отдых. Кстати, гамак в гостиной — вовсе не декорация, и усы на стене тоже не просто так
Гостиная. Ковер, Dovlet House.

Анастасия Брандт, основатель компании Brandt.Design Bureau
ПАРАМЕТРЫ ОБЪЕКТА
Тип недвижимости: квартира в старом доме
Метраж: 40 м²
Место: Москва
Стиль: скандинавский
Основная идея проекта: создать функциональное пространство для работы, жизни и приема гостей
Цветовая гамма: светлая с оттенками синего
Срок реализации: 1 месяц (проект), 4 месяца (строительные работы)
Заказчик: директор концертного агентства
Автор проекта: дизайнер Анастасия Брандт, Brandt.Design Bureau
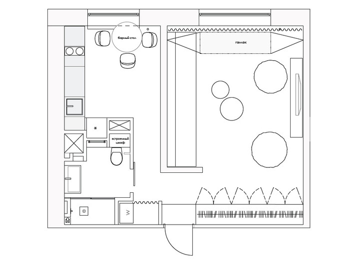
«Изначально в квартире были две изолированные комнаты, антресоль и раздельный санузел, — рассказывает дизайнер Анастасия Брандт. — Задача стояла сделать пространство максимально открытым — заказчик очень любит принимать гостей, поэтому было принято решение объединить гостиную и коридор. Кухня при этом осталась изолированной, так как от гостиной ее отделяет несущая стена».

Гостиная. Карта на стене сделана на заказ по эскизам дизайнера. Журнальный столик, Zara Home. Декор, Depst.
«Заказчик — молодой человек, занимается организацией концертов и работает с музыкальными группами, часто путешествует, — продолжает Анастасия. —Поскольку эта квартира служит для него скорее офисом и местом для отдыха с друзьями, изолированную спальню делать не стали. Функцию кровати выполняет плотный напольный матрас, который прекрасно умещается в зону хранения в коридоре. А иногда и гамак».

Гостиная. Гамак приобретен заказчиком на Бали.

На месте присоединенного к гостиной коридора сделаны встроенные шкафы. Живопись, галерея ArtBrut.
Гостиная по формату напоминает лаунж-зону с большим количеством посадочных мест, такое решение располагает к общению и встрече с друзьями.

Фрагмент кухни. Стол сделан на заказ. На стене — фотообои, The O. Светильник, Avocado lamp. Декор, Depst.

Ковер, Dovlet House. Пуф, «ШокМешок».

Живопись, галерея ArtBrut.

Кухня, ИКЕА.
«Кухня благодаря перепланировке стала просторной и функциональной. Чтобы замаскировать выступающий вентиляционный блок, поставили рядом с ним холодильник, заглубив его частично в санузел».

Планировка квартиры 40 м² — проект Анастасии Брандт.

Стол в кухне намеренно сделан высоким, «полу-барной» посадки. Это позволяет любоваться прекрасным видом из окна, задвинуть стол на подоконник, немного выиграв свободного места, и, если много гостей — они могут комфортно есть-пить стоя.

Кухня, ИКЕА. Стол сделан на заказ по эскизам дизайнера. Стул, DeepHouse.
«Чтобы визуально увеличить пространство, пол, стены и потолок выкрашены в светлые цвета. Санузел, наоборот, выполнен в темной цветовой гамме, чтобы создать кулуарную атмосферу».

Ванная комната. Стены покрашены водостойкой краской, Little Greene. Смеситель, Grohe.


Дизайнер считает главным в любом проекте сделать интерьер максимальным отражением его жильцов. «Не случайно всех гостей этой квартиры встречают и провожают неоновые усы — фирменный знак заказчика, у него даже есть татуировка в виде таких же усов на шее. Михаил сделал ее в знак поддержки организации «the movember foundation» — благотворительный фонд в знак поддержки мужского здоровья. Их миссия: to stop men dying too young». И, конечно же, гамак — место силы этой квартиры. Место, напоминающее о балийских серф-спотах и летнем отдыхе».
