Дизайнер Дарья Авдеенко оформила для своей семьи красочный интерьер квартиры в стиле современный фьюжн в петербургском ЖК

Автор проекта Дарья Авдеенко.
ПАРАМЕТРЫ ОБЪЕКТА
Тип недвижимости: квартира
Где находится: Санкт-Петербург, ЖК «Экосити»
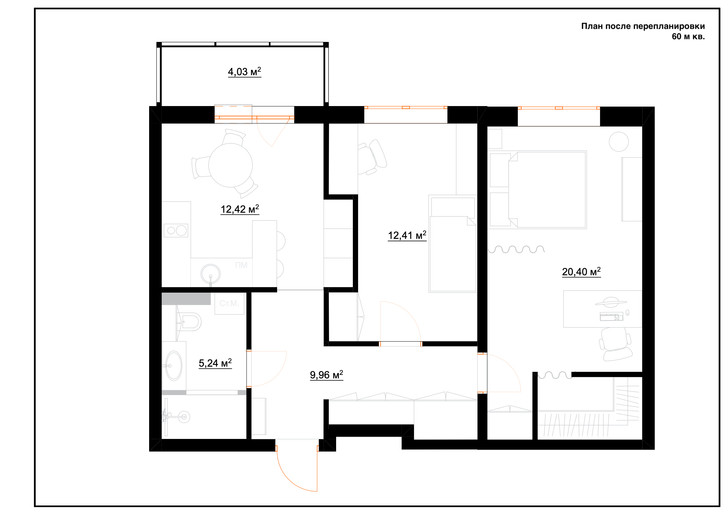
Метраж: 60 м2
Стиль: современный фьюжн
Основная идея проекта: создать праздничный, загадочный и неповторимый интерьер, с уголком спокойствия и умиротворения
Цветовая гамма: в основных помещения — красочная, яркая и праздничная, в приватной зоне — спокойные и природные оттенки
Авторы проекта: дизайнер Дарья Авдеенко, студия DA design, т. +7(911)8257344, @dadesign4u, www.dadesign4u.ru, ask@dadesign4u.ru

Панно, Cole & Son. Стол, SK design. Стулья, Deephouse. Светильник-паук, Leroy Merlin.
Эту квартиру дизайнер Дарья Авдеенко делала для самых требовательных заказчиков: для самой себя и своей семьи, мужа программиста и трехлетнего сынишки. «Мне, как дизайнеру, проектировать интерьер для себя оказалось совсем не просто, — говорит Дарья. — Самым сложным было определиться со стилем и направлением, возникало очень много идей, и все хотелось реализовать. Устав от серых и спокойных интерьеров, я хотела создать смелое, яркое, необычное пространство, задающее стиль и настроение. Квартира дизайнера — это всегда место для экспериментов».

С самого начала было принято решение оставить готовую планировку застройщика и не менять основные зоны. Главной задачей было продумать и обустроить удобное место для работы, вписав его в жилое пространство, поскольку и Дарья, и ее муж работают дома.
При проектировании кухонной зоны важно было спрятать объемные и высокие шкафы. Благодаря полупрозрачным дверцам из черного стекла и открытым полкам их удалось «растворить» в пространстве: они не выглядят массивно и не притягивают к себе все внимание. А благодаря необычному цвету фасадов, яркому кухонному фартуку и оригинальному дизайну ручек кухня становится одним из самых эффектных мест во всей квартире.

Кухня, производство Санкт-Петербурга. Плитка на фартуке, Equipe Artisan. Стулья, декор, ИКЕА.

Концепцию по цвету и по сюжету задали обои с забавными обезьянками марки Cole & Son. Сначала они «поселились» на панно на кухонной стене, оттуда частично «перекочевали» в коридор, а затем «прискакали» в спальню в виде светильника-обезьянки..

В спальне Дарья сделала три функциональных зоны: зону сна, зону работы и гардеробную. Кровать отгорожена от рабочего места легкой шторой, которая не загромождает пространство, а лишь ненавязчиво зонирует его. Мечта хозяйки — гардеробная, спрятанная в терракотовых стенах, — также закрывается с помощью черной занавески — удобное и практичное решение с естественной вентиляцией.

Кровать, «Шатура». Светильник, La Redoute. Радиаторы, Zhender. Декор, мебель, ИКЕА.
Спальню украшает картина — копия работы Микулаша Баланда «Мать и дитя», которую в свое время написал свёкр Дарьи. «Эта картина дорога нам как память. Она отлично вписалась в интерьер по цвету и настроению и ознаменовала важный период в моей жизни: материнство», — отмечает дизайнер.

В детской после незначительной перепланировки, увеличившей площадь кухни, образовалась ниша. В нее поставили шкаф и небольшой диванчик. Со временем, когда ребенок подрастет, вместо дивана будет сделано рабочее место.

Мебель, ИКЕА.

Деревянные элементы, местное столярное производство.
Санузел сделали совмещенным. Он получился изящным: плитку украшает рисунок «гусиная лапка». Черный потолок перекликается с черной сантехникой и смесителями, а акцентная оранжевая дверь делает пространство ярким и оригинальным.

Мебель, зеркало, ИКЕА.
Заходя в квартиру, сразу попадаешь в темное необычное пространство. Стены и потолок в коридоре выкрашены насыщенным оттенком зеленого. Яркой доминантой стали двери в оранжевой эмали с милыми окошками — отсылка к фасадным дверям где-то на улочках Англии. В коридоре встроили шкаф, который изначально был отдельно стоящим. Точные расчеты и приподнятые основания позволили создать единый уровень с плинтусом во всей квартире и скрыть цоколь шкафа.

Декор и консоль, La Redoute. Обувница, вешалки, шкаф, светильники, ИКЕА.
«Я горжусь тем, что квартира имеет свой неповторимый характер, — говорит автор проекта, — она эффектна и создает настроение и ощущение праздника — это так актуально в нашем климате, в Санкт-Петербурге.

Квартира в Санкт-Петербурге. Проект Дарьи Авдеенко.Екатерина Собко