Дизайнеры использовали комбинацию разных цветов и отделок, чтобы создать удобное пространство для молодой семьи с ребенком.
Заказчики и задачи
Этой квартирой в новостройке Санкт-Петербурга владеет молодая семья с маленьким сыном. Они обратились в студию Илоны Ореховской VizDiz с просьбой оформить квартиру с большим количеством систем хранения. По стилистике у них не было конкретных предпочтений, но дизайнеры стремились отразить в интерьере характер семьи. Таким образом, получилось достаточно эклектичное пространство, где сочетаются разные цвета, узоры и фактуры.

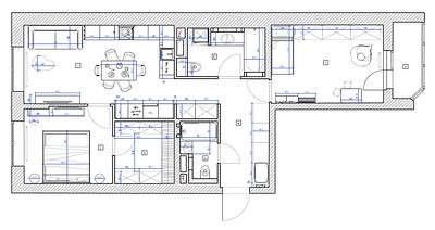
Перепланировка
Изначально квартира была двухкомнатной с большой кухней. Такие называют евротрешками, так как на площади кухни можно оборудовать и гостиную. Застройщик предлагал два санузла и балкон. Дизайнеры решили улучшить пространство. Так, часть комнаты забрали под встроенные шкафы со стороны кухни. В них прячется кухонная техника (это можно согласовать, так как мокрая зона остается на месте, а системы хранения обозначаются как встроенные шкафы). Значительную площадь спальни отвели под гардеробную. Сделали вход в нее из кухни-гостиной. Ближний ко входу санузел расширили за счет холла, чтобы сделать полноценную душевую. Перепланировку согласовали.

Отделка
Для отделки стен выбрали обои под покраску и краску. На полу в жилых зонах уложили ламинат. Для прихожей выбрали плитку с активным рисунком камня. На полу кухни — плитка с геометрическим рисунком, а на фартуке — под терраццо. Ванную комнату оформили керамогранитом под мрамор, а гостевой санузел сделали ярким с помощью краски и плитки под метлах. В отделке спальни хозяев использовали глубокий бордовый оттенок в комбинации с мягкими настенными панелями, а в качестве фона выбрали светлую краску.

В детской — светлые поверхности, декорированные интерьерными наклейками на пустой стене. Одна из наклеек выступает экраном для проектора.
Мебель и системы хранения
Благодаря перепланировке в спальне выделили большую гардеробную — 6 квадратных метров. Но, конечно, предусмотрели и другие места для хранения. В прихожей — высокий шкаф под потолок, где сделана ниша с пуфом и крючками у входной двери.

В коридоре, ведущем на кухню — еще один встроенный шкаф, который соседствует с кухонными колоннами. В детской шкаф выстроен во всю стену, в него же интегрирована кровать, нижние отсеки шкафа открытые, удобно для хранения игрушек.

В каждом санузле реализовали встроенные полки-ниши для хранения мелочей, шкафчики над инсталляциями унитазов.

В большой ванной также есть тумба под раковину, за выстроенной перегородкой установлен шкаф со встроенной стиральной машиной и местом для хранения разных хозяйственных мелочей и запасов.

Благодаря перепланировке кухня получилась более легкая. Колонны встроены по другой стене, а основной гарнитур сделан углом, причем верхние шкафы — только по одной стороне. Такое решение помогло при большом объеме хранения и функционале кухни сделать ее менее утилитарной.

Освещение
Дизайнеры выбрали в качестве основного света точечные светильники. Но, конечно, позаботились и о дополнительном освещении. Это и потолочная люстра в гостиной, и подвесы в спальне по бокам от кровати и у зеркала в гостевом санузле, и настенные бра в ванной, а также встроенные подсветки мебели. Нашей задачей было создать атмосферу, которая была бы яркой, но в то же время не излишне экстравагантной. Мы использовали различные текстуры и цвета, чтобы добавить интерьеру разнообразия и глубины. Комбинирование сложных сочетаний должно было происходить с тонким чувством гармонии, чтобы каждый элемент и деталь сливались в единую композицию. В результате получилась уникальная атмосфера, где яркость пронизывает пространство, сохраняя при этом баланс и элегантность.

Руководитель студии Илона Ореховская и дизайнер Каролина Михель Авторы проекта
Мы стремились сделать каждую комнату уникальным пространством, отражающим характеры и интересы членов семьи. При выборе цветовых решений, мебели и декоративных элементов мы учитывали индивидуальность и потребности хозяев, чтобы создать идеально подходящий интерьер. Мы верили, что интересный дизайн поможет этой семье насладиться каждым мгновением в своей уникальной и красиво оформленной квартире.
15 фото

Гостиная

Гостиная

Кухня

Спальня

Спальня

Спальня

Спальня

Детская

Детская

Ванная комната

Ванная комната

Ванная комната

Душевая

Душевая

Прихожая Редакция предупреждает, что в соответствии с Жилищным кодексом РФ требуется согласование проводимых переустройств и перепланировок.

Смотреть перепланировку

Анастасия Дубровина

Павел Чунихин

Маргарита Низамова

Анастасия Тушканова Современный стиль Яркие цвета