Конечно же, проект продумывали не только для фото, но и для комфортной жизни. Получилось все!
Заказчик и задачи
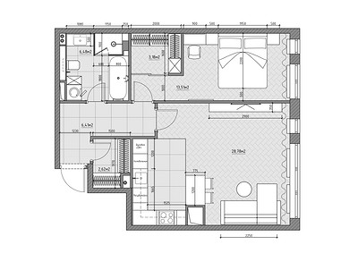
Эта квартира в одном из жилых комплексов Москвы принадлежит девушке-блогеру. Застройщик сдавал жилье в отделке white box. Перед дизайнером Ядвигой Дьяковской стояла задача грамотно зонировать пространство без глобальной перепланировки, предусмотреть много мест для хранения, в ванной сделать и ванну, и душевую. По роду деятельности хозяйке был просто необходим фотогеничный интерьер, который бы отлично смотрелся и на фото, и в качестве фона.

Перепланировка
Такие квартиры называются евродвушками — кухня-гостиная и отдельная спальня. От застройщика здесь также была большая прихожая. Дизайнер предложила часть прихожей отвести под гардеробную и в спальне выделить второй гардероб. Таким образом получили вместительное хранение. Ванная комната была достаточной площади (6,5 кв. м) для того, чтобы уместить там ванну и душ.

Отделка
На стенах — светлая краска. На полу в гостиной и спальне — паркетная доска. Пол в зоне кухни и прихожей выложен керамогранитом под белый мрамор с серыми прожилками. А для отделки ванной комнаты выбрали керамогранит под оникс. Удалось подобрать материал, максимально правдоподобно имитирующий рисунок натурального камня. Столешница и фартук кухни — искусственный камень.
Акценты сделали очень деликатные. Например, в зоне гостиной по длинной стене — шпонированные панели, перемеженные зеркальными вставками. Зеркала послужат еще и для «селфи».

В спальне за изголовьем кровати — гипсовые рельефные панели, окрашенные в нежный голубой цвет.

Материалы базовые: краска, дерево, камень и его хорошая имитация. Сегодня это можно назвать классикой — то, что вряд ли устареет в ближайшие 5-10 лет.
Мебель и системы хранения
То, что на этапе планировки выделили две гардеробные, позволило отказаться от габаритных шкафов в комнатах. В прихожей гардероб предназначен для верхней и сезонной одежды, а в спальне — для повседневных вещей, домашнего текстиля.

Для дополнительного хранения в спальне предусмотрены тумбочки, а также есть туалетный столик с выдвижным ящиком. А в гостиной — тумба под телевизор.
Кухня компактная, но вместительная. Это угловой гарнитур с верхним и нижним рядом шкафов. В колонны встроен холодильник и духовой шкаф, а также сделаны витрины с подсветкой для хранения красивой посуды и декора. Обеденный стол заменили барной стойкой.

В ванной комнате предусмотрели большой шкаф для стиральной машины, систему открытых полок для хранения полотенец, хозяйственных средств, а также закрытый шкафчик над инсталляцией унитаза.

Освещение
Автор проекта говорит, что всегда предусматривает освещение по трем сценариям: общее яркое, декоративное приглушенное и направленное функциональное. Первый сценарий в этом случае — точечные светильники, которые есть на потолке в каждой комнате. Декоративный свет — подвесы в гостиной и над барной стойкой. Светильники специально перекрашивали, так как хозяйке не нравился слишком желтый цвет латуни от производителя. Направленный свет — бра на по бокам от кровати и треки на кухне.

Ядвига Дьяковская Дизайнер, основатель студии Linart, автор проекта
Проект исполнен в современном направлении с элементами современной классики. За основу брали светлые холодные оттенки, а чтобы их разбавить и придать уюта, мы использовали шпон в стеновых панелях и на кухне. Главным цветным акцентом стал небесно-голубой — трендовый цвет сезона.
18 фото

Гостиная-кухня

Гостиная

Гостиная

Кухня

Кухня

Кухня

Кухня

Спальня

Спальня

Спальня

Спальня

Спальня

Гардеробная в спальне

Гардеробная в спальне

Прихожая

Прихожая

Санузел

Санузел Редакция предупреждает, что в соответствии с Жилищным кодексом РФ требуется согласование проводимых переустройств и перепланировок.

Смотреть перепланировку

Анастасия Дубровина

Александр Майер

Светлана Игнатенко

Ольга Васильева Современный стиль Светлые цвета