Пастельная гамма, натуральные материалы, забота о функциональности позволили создать долгоиграющий интерьер, в котором легко найти спокойствие и отдохнуть после насыщенных трудовых будней.
Заказчики и задачи
Владельцы этой небольшой квартиры в современном московском жилом комплексе — семейная пара. В будни они много работают, выходные привыкли проводить за городом, а городская квартира для них — это место отдыха после насыщенного дня. Поэтому и пространство хотели без визуального шума, комфортное и приятное. За чем и обратились к дизайнеру Кристине Изотовой.

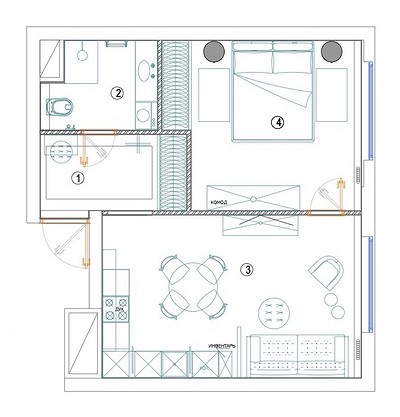
Планировка
Изначально от застройщика не было перегородок, но по плану предполагались отдельная спальня, кухня-гостиная, ванная и прихожая. Возвели стены точно по плану, но сделали вход в спальню со стороны гостиной. В прихожей за счет этого удалось вписать вместительный шкаф. И в спальне получилась удобная ниша для встройки шкафа.

Отделка
Для отделки стен выбрали краску. На полу — инженерная доска. В прихожей пол оформлен керамогранитом под мрамор. А в ванной — крупноформатный керамогранитом с рисунком, напоминающим срезы оникса. Материалы базовые, что не делает их простыми. Натуральные, фактурные, они привносят это же ощущение и в интерьер. Делают его таким же базовым, но при этом уютным и атмосферным. А еще — вневременным, так как натуральность останется актуальной всегда.

Конечно же, интерьер не обошелся без заметных деталей. Например, таких, как зеркало в деревянной раме в прихожей. Дизайнер выбрала зеркальное полотно с состаренным эффектом. При этом эффект ровно такой, чтобы не испортить визуальную составляющую — все-таки в зеркале должно быть хорошо видно отражение. Еще одно преимущество такого зеркала, кроме эстетичного вида — его практичность. На состаренном полотне меньше заметны возможные разводы и отпечатки.

Другая акцентная деталь — перегородка между кухней и гостиной. Конечно, она скорее номинальная, тонкий инструмент зонирования. Не задерживает звуки и запахи, но акцентирует внимание на разделении двух функциональных частей комнаты. Перегородку выполнили на заказ. «Изначально мы планировали здесь использовать стекло с латунной сеткой внутри, но сюрпризом стала информация о том, что при производстве рабочие часто ранились о латунь. Ее решили заменить на пластиковую сетку, и, к счастью, эффект не был потерян, она так же красиво переливается», — комментирует Кристина.

Мебель и системы хранения
Кухня — с секретом. В пространстве, которое объединено с гостиной, всегда хочется сделать акцент именно на второй зоне, сместив фокус внимания с утилитарности. Дизайнер решила спрятать рабочую поверхность кухни с мойкой за фасады. Так тряпочки и губки не будут создавать визуальный шум.

Верхние шкафы кухни выполнены до потолка, чтобы увеличить объем хранения. Боковые секции узкие. Одна из них, которая просматривается из гостиной, сделана в виде витрины — со стеклянными фасадами и подсветкой. Она для красивой посуды, декора. Вторая, с глухими фасадами — для хозяйственного инвентаря.

В квартире два вместительных шкафа. Один — в прихожей, встроенный, второй — в спальне, также встроен. Оба выполнены в одной стилистике, с деревянными фасадами.

Также для хранения предусмотрена тумба под телевизором в гостиной с фасадами под латунь и комод в спальне. В прихожей — подвесная консоль с выдвижным ящиком для разных мелочей.

В ванной комнате — большая тумба под раковину, где спрятана еще и стиральная машина. Над раковиной — подвесные шкафчики, часть из них с зеркальными фасадами.

Освещение
Дизайнер предусмотрела разные сценарии света, чтобы менять настроение интерьера. Это и потолочные люстры, и бра, и подсветка картины над консолью в прихожей, и скрытая подсветка мебели.

Кристина Изотова Дизайнер, автор проекта
Идея проекта — создать грамотное спокойное пространство для отдыха, которое отражает наши общие ценности с заказчиками — комфорт, эстетика, лишенная «хвастовства», традиции. Современная классика — стиль всегда актуальный, ликвидный и горячо любимый мной. Рамки этого стиля очень широкие и пластичные. Лепнины может быть много, а может и не быть совсем. Мебель может быть гладкой, а может быть с классическими филенками, последние могут быть прямыми или фигурными. В этом проекте — классические настенные панели, которые представлены шкафами, классические филенки на встроенной мебели, но их форма современная. В спальне — классический карниз, он был нужен здесь, чтобы нивелировать слишком современный эффект от частичного опуска потолка для монтажа канального кондиционера. Шторы — с классическим принтом. Все остальное современное, этот баланс здесь соответствует размеру помещений, больше классических решений требуют больше площади, чтобы выглядеть адекватно. Мне близка мысль о том, что грамотный интерьер самодостаточен. В таком пространстве можно обойтись и без декора, и не будет ощущения недосказанности. А можно внести новые ощущения по настроению, и поставить, например, яркую вазу на стол.
14 фото

Гостиная

Гостиная

Гостиная

Гостиная

Гостиная

Кухня

Кухня

Кухня

Кухня

Спальня

Спальня

Прихожая

Прихожая

Ванная комната Редакция предупреждает, что в соответствии с Жилищным кодексом РФ требуется согласование проводимых переустройств и перепланировок.

Смотреть перепланировку

Анастасия Дубровина

Сергей Ананьев Маленькие квартиры Светлые цвета Современная классика