Мы привыкли видеть на небольшой площади современный стиль, минимализм или скандинавскую эстетику. Этот пример доказывает, что на самом деле в выборе стиля интерьера можно не оглядываться на количество квадратных метров.
Заказчик и задачи
Владелица этой квартиры в московском ЖК La Rue воплотила свою давнюю месту пожить в центре столицы в историческом здании. Новый комплекс апартаментов — это модернизация доходного дома Г.П. Лазарика, построенного еще в XIX веке.
Среди пожеланий хозяйки этой небольшой квартиры была организация полноценной спальни и вместительных систем хранения. Для этого она обратилась к дизайнеру Ирине Лагода.

Перепланировка
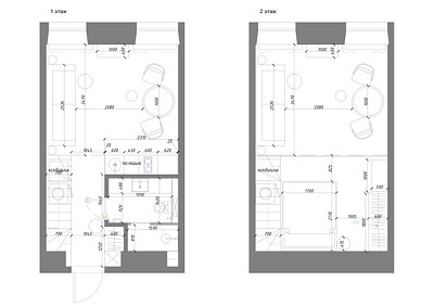
По документам апартаменты являются нежилым помещением, и тут не в полной мере действуют нормы перепланировок, которые актуальны для жилых квартир. Это открыло возможности для более смелой перепланировки. Также на организацию пространства повлияли высокие потолки — 4,2 метра. Такие исходные данные позволили сделать второй уровень — антресоль, где расположилась спальня. Под ней — санузел и вместительная система хранения. На первом уровне уместили компактную кухню и гостиную-столовую.

Отделка
Для отделки стен выбрали краску в светлом бежевом оттенке. Дополнили настенное покрытие тонкими молдингами и состаренными зеркалами, заключенными в рамы из молдингов. Получилось не только визуально увеличить пространство таким образом, но и добавить интерьеру шика и парадности.

Высокие потолочные карнизы и плинтусы служат той же идее. На полу в кухне-гостиной и на втором уровне уложили инженерную доску «елочкой» — классический рисунок для выбранной стилистики интерьера. Узкий коридор оформлен шестиугольной плиткой двух цветов, выложенных таким образом, что рисунок напоминает метлахскую плитку — еще одна отсылка к историческому контексту интерьера.

В ванной комнате использовали керамогранит под мрамор на стенах, а пол выложили той же коллекцией плитки, что и в коридоре, но в другом цвете. Состаренное зеркало появляется и здесь — над раковиной. Часть зеркала заключили в раму, большая отражающая поверхность помогает сделать маленькую ванную в два раза больше.

Мебель и системы хранения
Компактную кухню оснастили по максимуму: есть варочная панель на две конфорки, встроенный духовой шкаф и посудомоечная машина. Верхние шкафы предназначены для хранения посуды и других кухонных принадлежностей.

При входе справа встроили шкаф с зеркальными фасадами в обрамлении молдингов. Эта система хранения совершенно незаметна.

Под лестницей — еще одна вместительная система хранения, куда также встроили холодильник и стиральную машину. В зоне спальни — два вместительных шкафа для повседневных вещей.

Для мелких вещей в зоне спальни предусмотрели комод, для красивой посуды и книг — буфет в зоне гостиной. В ванной комнате — вместительная тумба под раковину.
Освещение
Общее освещение решено точечными светильниками, в кухне-гостиной разместили на потолке массивную люстру со стеклянными подвесками. На стенах — бра с плафонами в виде свечей. В спальне в качестве дополнительного освещения использовали прикроватные ридеры, также бра предусмотрели в ванной на зеркале у раковины. Торшеры возле дивана помогают создать уютную обстановку вечером.


Ирина Лагода Дизайнер, автор проекта
Интерьер получился легким, воздушным, современным, очень комфортным для жизни. Отражает настроение и энергию владелицы апартаментов с изысканным вкусом. Картину «Лотос» художника Игоря Майкова выбирали совместно с заказчицей, она добавляет атмосферы легкости и магии.
14 фото

Коридор

Гостиная

Кухня

Кухня

Кухня

Кухня

Коридор-прихожая

Коридор-прихожая

Лестница

Спальня

Спальня

Спальня

Санузел

Санузел Редакция предупреждает, что в соответствии с Жилищным кодексом РФ требуется согласование проводимых переустройств и перепланировок.

Смотреть перепланировку

Анастасия Дубровина

Константин Пырьев Маленькие квартиры Светлые цвета Современная классика