Светлые цвета и акценты в виде натурального зеленого оттенка, а также фактура дерева превращают этот интерьер квартиры недалеко от центра Москвы в природный уютный уголок.
Заказчик и задачи
Владелец квартиры — мужчина — живет на два города и много работает. Он приобрел недвижимость в столице и обратился к Полине Агафоновой с задачей обустройства интерьера. Застройщик сдавал квартиру в «голом» бетоне — предстояло оформление с нуля, включая возведение стен. Нужно было оформить уютный интерьер, где было бы легко расслабиться, с комфортом принять гостей.

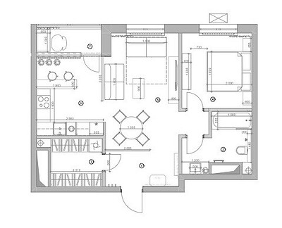
Перепланировка
Квартира была без стен, с трассировкой, тем не менее с четко обозначенными мокрыми зонами, которые было необходимо учитывать в разработке планировки. Застройщик предложил два санузла в разных частях квартиры, а из кухни — балкон. В процессе создания планировки убрали подоконный блок на балкон и заменили его высоким окном с дверью — так впустили больше света на кухню. Гостиная от кухни и прихожей отделяется не глухими стенами, а тонированными стеклянными перегородками — так удалось сохранить свет и воздух, но оставить возможность изолирования гостиной.

Спальня — отдельная комната с доступом из коридора, это приватная часть хозяина. Второй санузел решили превратить в гардеробную, что было рационально — не пришлось заставлять квартиру шкафами.
Отделка
При выборе материалов учитывали не только эстетику, но и практичность. В связи с этим стены покрасили стойкой английской краской — она легко моется. На полу уложили ламинат — так хотел хозяин квартиры ввиду практичности и стойкости этого материала. Для прихожей, кухни и балкона подобрали плитку в цвет ламината. В ванной комнате — керамогранит и краска.

Мебель и системы хранения
Для хранения есть отдельная гардеробная, где также установлена стиральная машина (и корзина для белья), и этого хватает одному мужчине, поэтому шкафов в квартире нет.

Хозяин любит готовить, и кухонный гарнитур продумали со всем необходимым функционалом: включая технику, места для хранения. На кухне — барная стойка для легких перекусов, а в гостиной — полноценная обеденная зона.

Балкон утепленный, там организован кабинет и есть подвесные шкафчики для бумаг и книг.

Также для мелочей — тумба под телевизор в гостиной, комод в прихожей, консоль, переходящая в туалетный столик, и тумбочки в спальне.

В ванной комнате, кроме тумбы под раковину, спроектировали систему хранения над инсталляцией унитаза и узкий пенал для разных хозяйственных мелочей.

Хозяин хотел принимать гостей, поэтому один из диванов в гостиной — раскладной. При этом есть второй — формируется комфортная и располагающая зона для общения.
Освещение
Общий сценарий света — встроенные в потолок точечные светильники, размещенные попарно. Конечно, не обошлось и без дополнительных сценариев света: подвесы над барной стойкой, над одной из тумбочек в спальне (специально выбрали такой ход для создания асимметричной композиции), бра над столиком в спальне, бра в обеденной зоне и зеркало с подсветкой в ванной комнате.

Полина Агафонова Дизайнер, автор проекта
Стиль подбирался в соответствии с образом жизни заказчика — ничего лишнего и то, что могло бы его расслаблять. Как мы выяснили, для этого отлично подходили экологичные, природные материалы. Поэтому в этом проекте много приятного светлого дерева, матового стекла, ровные светлые стены с минимальной текстурой, строгие четкие линии, характеризующие мужскую квартиру.
14 фото

Гостиная

Гостиная

Гостиная

Гостиная

Кухня

Кухня

Кухня

Кухня

Спальня

Спальня

Спальня

Ванная комната

Ванная комната

Ванная комната
Как квартира выглядит до ремонта


Редакция предупреждает, что в соответствии с Жилищным кодексом РФ требуется согласование проводимых переустройств и перепланировок.

Смотреть перепланировку

Анастасия Дубровина

Антон Лихтарович

Ирина Темнова Современный стиль Светлые цвета