Изначальные данные — квартира расположена на последнем этаже и имеет высоту потолков 4,7 метра — позволили реализовать необычный проект и с пользой увеличить площадь, обустроив все нужные функциональные зоны.
Заказчики и задачи
Владельцы этой квартиры в одной из новостроек бизнес-класса в Кирове — семья с двумя сыновьями. Хозяйка занимается маникюром и хотела бы принимать клиентов на дому, для чего ей был необходим отдельный кабинет. Мальчики увлекаются спортом — скейтбордингом и катаются на сноуборде. Все они любят путешествия.
Для того чтобы обустроить комфортное жилье и выполнить все задачи, семья пригласила дизайнера Ксению Огородникову.

Перепланировка
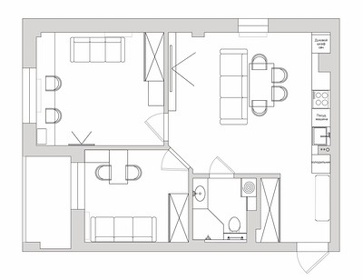
Изначально это было общее пространство без перегородок с выделенной ванной комнатой, туалетом и лоджией. Высокие потолки — почти 5 метров — а также расположение квартиры на последнем этаже дали возможность «поиграть» с планировкой и выделить второй уровень.

На первом уровне расположили кухню-гостиную, рабочий кабинет хозяйки, объединили санузлы, увеличив общую ванную, а часть площади санузла отвели под гардероб в прихожей.

Также сделали детскую с рабочим местом и вторым уровнем, на котором расположились кровати. Дверь в спальную зону — на втором этаже, но тем не менее она изолирована. На втором уровне и хозяйская спальня, она не отделяется глухими стенами от общей кухни-гостиной, но от детской — да.
Получился настоящий лофт — и дело не только в стилистике. Лофтом традиционно называли двухуровневые пространства с антресолью.

Отделка
Отделочные материалы выбирали в соответствии со стилистикой лофт-минимализма. Отправной точкой и вдохновением дизайнера для создания всего интерьера стала несущая колонна в бетоне, которую решили не только оставить в «родной» отделке, но и ей в поддержку выбрали декоративную штукатурку под бетон. Штукатуркой оформили стены кухни-гостиной, спальни и детской на втором уровне, прихожей и кабинета.

Ее скомбинировали с белой краской, чтобы высокие потолки смотрелись более гармонично, а также с деревянными рейками и зеркальным полотном в прихожей. В детской использовали для отделки декоративный кирпич, окрашенный в черный цвет. Его тоже скомбинировали с краской и штукатуркой.

На полу в зоне прихожей и кухне — практичный кварцвинил с фактурой под бетон, а в жилых зонах использовали натуральный материал — инженерную доску.

Санузел оформили керамогранитом под бетон, скомбинировав его с мозаикой и штукатуркой.
Системы хранения
Шкафы продумали в достаточном количестве, но сумели вписать их в пространство так, что они не привлекают к себе внимание. Так, в прихожей встроили шкаф для верхней одежды. Есть консоль для мелочей. В детской на первом уровне — шкаф и стеллаж.

В хозяйской спальне спроектировали вместительный шкаф, в котором помещается не только одежда, но и сноуборды и скейты. В кабинете хозяйки есть еще один распашной шкаф.

Линейный кухонный гарнитур вмещает необходимую технику и места для хранения утвари. А в ванной есть тумба под раковину и в колонну установлены стиральная и сушильная машины.

Освещение
«Пожеланием заказчиков было многофункциональный свет и несколько сценариев освещения», — говорит автор проекта.
Чтобы воплотить это пожелание, для основного освещения кухни-гостиной и детской выбрали лаконичные магнитные треки, в прихожей и санузле — встроенные светильники. В кабинете — настольная лампа для работы и бра рядом с диваном, а в детской — настенные бра.
В спальне на втором уровне эффектно подсветили бетонный потолок и сделали подвес над тумбочкой с одной стороны кровати. Такой же подвес — над раковиной в санузле.


Дизайнер Ксения Огородникова, автор проекта:
На создание концепции этой квартиры меня вдохновила несущая колонна, которую решили оставить в ее родном естественном материале — бетон. Фактура и цвет задали атмосферу всему интерьеру, так как нейтральные, приближенные к природе оттенки сейчас в тренде, и такие монохромные пространства очень актуальны. Еще одна причина выбора неярких, приглушенных цветов — это популярность экостиля.
37 фото

Кухня

Кухня

Кухня

Кухня-гостиная (вид сверху)

Кухня-гостиная (вид сверху)

Кухня-гостиная (вид сверху)

Кухня-гостиная (вид сверху)

Гостиная

Гостиная

Кухня-гостиная

Кухня-гостиная

Прихожая

Кабинет

Кабинет (лоджия)

Кабинет (лоджия)

Кабинет (лоджия)

Детская

Детская

Детская

Детская

Детская

Детская

Детская (второй уровень)

Детская (второй уровень)

Детская (второй уровень)

Детская (второй уровень)

Детская (второй уровень)

Спальня (второй уровень)

Спальня (второй уровень)

Спальня (второй уровень)

Спальня (второй уровень)

Спальня (второй уровень)

Спальня (второй уровень)

Коридор (второй уровень)

Санузел

Санузел

Санузел Редакция предупреждает, что в соответствии с Жилищным кодексом РФ требуется согласование проводимых переустройств и перепланировок.

Смотреть перепланировку

Анастасия Дубровина

Иван Сорокин Лофт Минимализм
