Анастасия Стенберг гордится планировкой этой квартиры в московской новостройке: ей удалось сделать из «двушки» — «трешку», по которой можно бродить кругами и восьмерками
Зона гостиной. Диван, Ditre. Люстра, Vistosi, винтаж, 1970-е годы, 20th Century Lamps. Керамика, Repeat Story. Римские шторы, Decortier. Декоративная кирпичная плитка, Feldhaus Klinker.
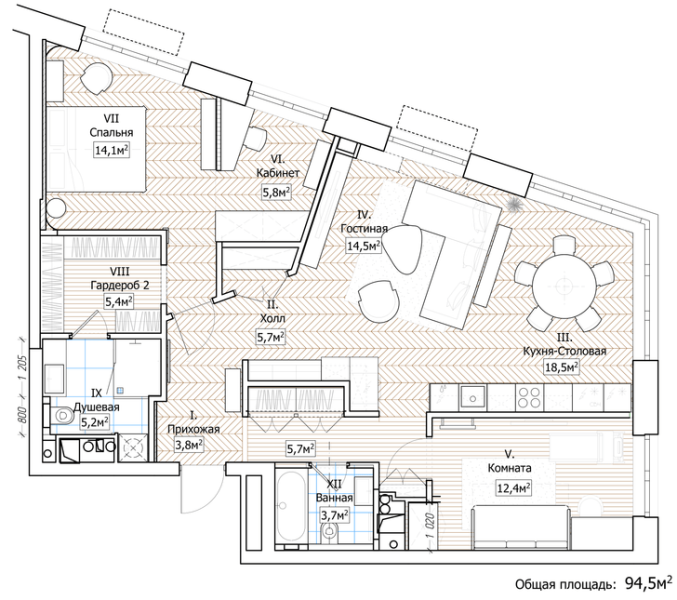
«Планировка квартиры оставляла желать лучшего», — говорит Анастасия Стенберг и поясняет, что этой болезнью страдают более половины квартир в новых домах. Дизайнеры обычно советуют своим клиентам, которые обращаются к ним за советами на этапе покупки, подобные квартиры не брать.

Зона гостиной, фрагмент. ТВ-тумба, AV-BDI CAVO.

Зона гостиной, фрагмент. Диван, Ditre. Столик с каменной столешницей, HerakLion.
Эта квартира уже была приобретена, причем ее выбрали в основном за видовые характеристики и бытовые удобства (парковка, приточная вентиляция и так далее). Владельцы рассчитывали, что дизайнер найдет способ из «двушки» площадью 99 кв.м сделать «трешку». Так, в общем-то, и получилось, но дизайнеру Анастасии Стенберг пришлось поломать голову над планировочным решением.

Обеденная группа. Стол, BoConcept. Стулья, Midj. Керамика, Repeat Story.
«Заказчикам, супругам средних лет со взрослыми детьми, проживающими отдельно, была необходима гостевая спальня для их визитов, — рассказывает Анастасия Стенберг, — поэтому кухня переехала в open space гостиную, а на ее месте образовалась вторая спальня. Необходимо было создать также небольшой домашний офис. После обсуждения различных вариантов было одобрено место в торце вытянутой вдоль наружной стены спальни».

Фрагмент кухни. Кухня, Silver Home, сделана на заказ. Столешница и фартук из гранита, «Гефест-Стоун».
Поскольку сама форма квартиры не совсем обычная (длинная косая стена не позволяет сделать комнаты квадратными), все основные помещения тоже получились необычными. Кухня, например, разделена на две части: в одной находится рабочая зона, в другой — бар и духовой шкаф.
«Мы долго дискутировали по поводу кухни, — вспоминает дизайнер. — Фасады нижних шкафов сделали в цвете „матовое золото“. Поставщики были удивлены, но мне показалось, что эти золотые дверцы дают кухне какую-то „аппетитность“. Не хотелось разбивать их духовым шкафом, поэтому мы его перенесли в другое место».

Кухня разделена на две части. Справа — витрина, Silver Home, и духовой шкаф.
Достоинством сложной планировки Анастасия считает возможность ходить по квартире «кругами и восьмерками». Это действительно создает ощущение, что пространство больше, чем на самом деле, а еще позволяет членам семьи передвигаться по квартире, не мешая друг другу. В гостевую спальню и душевую, например, можно попасть и из кухни-столовой, и сразу от входа, никого не беспокоя.

Спальня. Кровать, Kelvin Felis. Люстра, Barovier & Toso, 1950-е годы, 20th Century lamps. Бра, Catellani & Smith. Гардины, Decortier. Над изголовьем фоторабота Михаила Степанова.
Основная идея проекта — создать уютное пространство, подчеркивая современную архитектуру комплекса и акцентируя большие окна, из которых открывается прекрасный вид на город.

Домашний офис. Стол и стеллаж изготовлены на заказ в студии Netamebel. Стул, Bo Concept.
Анастасия Стенберг рассказывает, что интерьер в ее проектах обычно рождается в диалоге с заказчиком. «Это уже „старые“ клиенты приходят по второму и третьему разу, а со вновь обретенными предстоят часы обсуждений, доводов, уступок и где-то отстаивания неприкосновенного», — объясняет она. В этом проекте многое появилось в результате такого диалога.

Спальня, фрагмент. Обои, Wallquest. Паркет, «Золотой Лес».

Спальня, фрагмент. Комод, винтаж, Repeat Story. Над ним авторская репродукция художника Андрея Ремнева.
Например, клинкерный кирпич в отделке гостиной — пожелание заказчика. Он хотел, чтобы в гостиной непременно был кирпич. «Я сказала: „Только не красный“, — вспоминает Анастасия. Здание диктует стиль, если бы это был дореволюционный дом или сталинский, можно было бы использовать красный кирпич, а у нас дом современный, поэтому мы выбрали клинкер серо-коричневого оттенка».

Холл. На стене работа Аси Феоктистовой.
Оформление спальни разрабатывалось исходя из пожеланий хозяйки квартиры: спальня виделась ей в бежевых тонах, она должна была стать не только удобной, но и уютной. «Мне кажется, надо идти навстречу людям», — говорит Анастасия Стенберг. Уюта спальне добавляют не только обои с традиционным рисунком, но и винтажный комодик, и расположенная над ним авторская репродукция Андрея Ремнева — художника, который долго время провел в музее Спасо-Андроникова монастыря и в своих работах использует приемы древнерусской живописи.

Комната сына. Стеллаж, «Бережно», сделан на заказ. Стол, Wooddi. Диван, Innovation. Ковер, «Ami Ковры».

Душевая, фрагмент. Раковина с подстольем, Duravit.

Ванная комната, фрагмент. Керамогранит, La Faenza. Светильники, Nuura.

Квартира в Москве. Проект Анастасии Стенберг.