Вещей много, а место для хранения в квартире — ограничено. Стандартная ситуация. Но вовсе не обязательно заполнять пространство бесконечными шкафами, комодами и тумбами, «съедая» свободные квадратные метры. Как организовать хранение в небольшом пространстве так, чтобы оно было незаметным и дополняло интерьер, расскажем на примере проекта дизайнера Диляры Давлетшиной и компании Jim Wood.
К дизайнеру Диляре Давлетшиной обратились владельцы квартиры в центре Москвы. Уютная двушка на Арбате с окнами на Красную площадь досталась им по наследству. Семейная пара планировала сдавать недвижимость и поэтому хотела ограничиться небольшим косметическим ремонтом: освежить цвет стен, обновить мебель, двери и сантехнику. Но в процессе планы поменялись, и супруги решили сами переехать в квартиру. Поэтому косметический ремонт превратился в капитальный, с перепланировкой. Она потребовалась, чтобы сделать пространство более удобным и функциональным, «настроить» его под потребности и привычки семьи. А дополнила перепланировку выполненная на заказ по индивидуальному проекту мебель от Jim Wood.
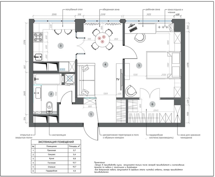
Перепланировка

Исходная планировка квартиры была стандартной: коридор, просторная гостиная, небольшие спальня и кухня. Заказчиков она не слишком устраивала. И муж, и жена часто работают из дома. Поэтому им необходимо было обустроить комфортное рабочее место. Его хотели разместить в спальне. Также в числе пожеланий была полноценная гардеробная зона для большого количества вещей. А вот от просторной гостиной супруги готовы были отказаться и сделать ее более компактной. Зато визуально расширить кухню. Чтобы решить все задачи, дизайнер предложила полную перепланировку.

После

До
От полноценного коридора отказались, отдав предпочтение открытой композиции пространства. Теперь, зайдя через входную дверь, можно попасть в небольшую зону прихожей. От гостиной ее условно отделяет лишь прозрачная стеклянная перегородка. Также зонирование подчеркивается разницей напольного покрытия. Гостиная теперь — это бывшая спальня. По размеру небольшая, но уютная и комфортная. Из гостиной можно попасть в просторную спальню (бывшую гостиную) и на кухню. Визуально расширить пространство последней также удалось за счет стеклянных перегородок. Кстати, отказ от длинного коридора позволил увеличить еще и площадь ванной комнаты. Там легко разместилась вся необходимая сантехника, техника и мебель.
6 фото

Фото: Юлия Черкасова Гостиная «После»

Гостиная «До»

Фото: Юлия Черкасова Спальня «После»

Спальня «До»

Фото: Юлия Черкасова Кухня «После»

Кухня «До»
Но одной перепланировки было бы недостаточно, чтобы все помещения квартиры использовались по максимуму. Поскольку площадь невелика, важно было грамотно подобрать мебель, организовать места хранения. При этом учесть особенности проекта квартиры.
Организация хранения и мебель
Проектных особенностей в квартире было немало. Например, в гостиной и спальне под потолком проложены балки. Это несущие конструкции, избавляться от них нельзя. Значит, надо вписывать в интерьер. Диляра Давлетшина решила этот и другие вопросы с помощью мебели и столярных конструкций, выполненных по индивидуальным проектам. Работала над ними команда компании Jim Wood.
Кухня

Напомним, задача была — визуально расширить площадь кухни. Комната небольшая, достаточно узкая. Объемный гарнитур разместить в таком пространстве довольно сложно. К тому же он смотрелся бы слишком тяжеловесно. Поэтому нужен был вариант компактный, но вместительный и функциональный. Вместе с проектировщиками Jim Wood решили разделить гарнитур на несколько частей. Основная часть — напольные и навесные шкафы — разместилась вдоль короткой «глухой» стены. Перпендикулярно ей, вдоль стены с окном, установили барную стойку. Она заменяет обеденный стол. Таким образом пространство в центре комнаты остается свободным.
В третьей свободной стене сделали нишу, куда встроили внешне лаконичный, а внутри очень вместительный шкаф. За его дверцами скрываются холодильник и выкатной пенал для хранения.
Дизайн мебели для кухни — современный, близкий к минималистичному. Снаружи — никаких лишних деталей. Для всего необходимого в хозяйстве нашлось место внутри: на полках, в выкатных и выдвижных конструкциях.
11 фото

фото компании Jim Wood, фотограф Юлия Черкасова

фото компании Jim Wood, фотограф Юлия Черкасова

фото компании Jim Wood, фотограф Юлия Черкасова

фото компании Jim Wood, фотограф Юлия Черкасова

фото компании Jim Wood, фотограф Юлия Черкасова

фото компании Jim Wood, фотограф Юлия Черкасова

фото компании Jim Wood, фотограф Юлия Черкасова

фото компании Jim Wood, фотограф Юлия Черкасова

фото компании Jim Wood, фотограф Юлия Черкасова

фото компании Jim Wood, фотограф Юлия Черкасова

фото компании Jim Wood, фотограф Юлия Черкасова
Гостиная
Несмотря на скромные размеры, гостиная не выглядит тесной. Светлый цвет стен, напольное покрытие «елочкой», отсутствие лишнего декора и вещей делают пространство визуально легким. Но при этом оно не кажется пустым и скучным.

Ритм и динамику задает акцентный деревянный портал между гостиной и кухней. Эта арка, обшитая специальной стеновой панелью, еще и маскирует одну из несущих балок, о которых мы уже говорили.
7 фото

Фото: Юлия Черкасова

Фото: Юлия Черкасова

Фото: Юлия Черкасова

Фото: Юлия Черкасова

Фото: Юлия Черкасова

Фото: Юлия Черкасова

Фото: Юлия Черкасова
Спальня
Как и в случае с гостиной, здесь нужно было обыграть несущую балку под потолком. Для этого специалисты компании Jim Wood спроектировали и изготовили деревянный портал вокруг изголовья кровати.

Он выполняет роль яркого акцента за счет сочетания насыщенного голубого и цвета светлой древесины. А еще это дополнительные места хранения. Внутри портала, за его фасадами, скрываются вместительные ящики и шкафы. Это было важно для заказчиков, поскольку в будущем в семье планируют появление ребенка.
Здесь же, в спальне, организовали удобное рабочее место для одного или двоих: письменный стол со стульями и скамья, на которую можно бросить несколько подушек и удобно устроиться с ноутбуком.
14 фото

Фото: Юлия Черкасова

Фото: Юлия Черкасова

Фото: Юлия Черкасова

Фото: Юлия Черкасова

Фото: Юлия Черкасова

Фото: Юлия Черкасова

Фото: Юлия Черкасова

Фото: Юлия Черкасова

Фото: Юлия Черкасова

Фото: Юлия Черкасова

Фото: Юлия Черкасова

Фото: Юлия Черкасова

Фото: Юлия Черкасова

Фото: Юлия Черкасова
Ванная комната
Здесь тоже уделили особое внимание зонам хранения.

Массивный шкаф под раковиной, длиной почти во всю стену, способен вместить множество бытовых предметов, всю необходимую домашнюю химию, средства ухода и многое другое. Помимо него в ванной сделали вертикальную встроенную в стену конструкцию с открытыми и закрытыми полками.

Фото: Юлия Черкасова

Фото: Юлия Черкасова

Фото: Юлия Черкасова

Фото: Юлия Черкасова
Прихожая
В небольшой прихожей нашлось место для полноценного, просторного встроенного шкафа под верхнюю одежду и обувь.

Конструкция получилась настолько объемной, что там удалось найти место даже для хранения крупных вещей. Например, столика для кормления ребенка. Завершает обстановку прихожей небольшая навесная тумба для хранения мелочей.
7 фото

Фото: Юлия Черкасова

Фото: Юлия Черкасова

Фото: Юлия Черкасова

Фото: Юлия Черкасова

Фото: Юлия Черкасова

Фото: Юлия Черкасова

Фото: Юлия Черкасова

Диляра Давлетшина, дизайнер, автор проекта:
Jim Wood я нашла случайно: каталась на велосипеде и решилась заехать в ТЦ. Была удивлена, когда увидела в одном из мебельных шоурумов кухню в концепции, которая мне была необходима. Зашла, меня встретил Иван, руководитель студии. Все рассказал и объяснил. Отношение мне понравилось сразу, потому что все очень грамотно было описано, с любовью. А для меня важно, когда человек горит, когда ему самому нравится его работа. И я решила заказать всю комплектацию объекта в Jim Wood. Работа была очень комфортная. Образцы делались в том количестве, в каком было необходимо. У нас сложилась система работы живого мудборда — привозили материалы, плитки, полы, все это вместе комбинировали и делали коллаж из реальных материалов. Также без проблем давали образцы на объект. Делали разные перерасчеты, у клиента бюджет был небольшой, но уложились в него «тютелька в тютельку». Были, конечно, казусы, но Jim Wood все устранял, ответственность не перекладывалась на клиента или дизайнера. Была самая большая сложность и даже эксперимент — это огромный портал. Очень долго продумывали, какой будет шов, чтобы его было не видно. И здорово, что полностью было погружение в проект. Ребята были настолько заинтересованы, что я наслаждалась этим. Теперь буду в Jim Wood заказывать столярные изделия, потому что знаю, что они не подведут.
ООО «ТЭРЦИЯ», https://jim-wood.ru?erid=4CQwVszH9pQNMYYLJqj

Анна Харитонова