Дизайнер Татьяна Бабенко решила сложную задачу: апартаменты непростой конфигурации зонировала и оформила таким образом, что теперь это уютное и комфортное пространство для отдыха и зимой, и летом.
Заказчики и задачи
Владельцы этих апартаментов в одном из жилых комплексов Адлера — активная многодетная семья. У них пятеро детей. Мальчики 4, 6, 8 и 16 лет и девочка 15 лет. Семья любит активный отдых. Летом — у моря, а зимой — в горах. И поэтому приобретение апартаментов в Адлере, где доступны оба вида отдыха, стало для них прекрасным решением.

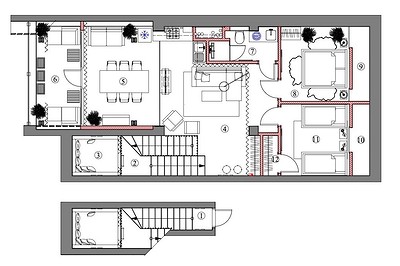
Перед Татьяной Бабенко стояла задача оформить пространство с общей зоной гостиной и кухни, спальными местами для всех членов семьи, предусмотреть места для хранения лыжного оборудования и вещей. Апартаменты расположены на двух уровнях, поэтому было важно продумать безопасное ограждение лестницы.

Перепланировка
Изначально апартаменты были свободной планировки с террасой. Они двухуровневые, но на первом уровне — только маленькая прихожая с подъемом на лестницу. Есть и промежуточный уровень, так как лестница двухмаршевая.
«При покупке площадь квартиры была заявлена 96 кв. м, но полезными оказались около 50 квадратов, так как 11 метров занимает лестница с нишей, 26 метров — терраса, и еще почти 8 квадратов с высотой потолков 60-100 см — ниши под мансардной крышей (в Адлере такие зоны тоже включают в площадь апартаментов), — комментирует Татьяна. — Вместить все необходимые зоны и помещения удалось благодаря частичному присоединению террасы, и еще остался довольно просторный балкон».

Статус жилья — апартаменты — позволил сделать такую перепланировку, так как это официально не жилое помещение, а значит, здесь не так строго действуют правила жилого законодательства.

Важно отдельно отметить, как удалось оформить спальные места для всех членов семьи. Здесь есть две спальни — родительская и детская с двумя кроватями. В гостиной и столовой — раскладывающиеся диваны. А в нише на лестничной площадке — лежанка, где можно и просто отдохнуть, и разместиться для сна. «Изначально заказчик предлагал отвести эту зону для хранения лыж, но впоследствии с радостью поддержал предложение сделать там лежанку. Теперь это любимое место отдыха старших детей с собственной лестницей, шторами для приватности, стильным ограждением, зеркалами и поворотными настенными светильниками», — говорит автор проекта.

Отделка
Для отделки стен выбрали светлую краску — антивандальное моющееся покрытие. «Это практичный цвет, не выгорающий со временем и легко подбираемый в случае необходимости точечного ремонта. Четверо сыновей в семье накладывают определенные требования к отделочным материалам в плане практичности», — комментирует автор проекта. Пол везде оформлен керамогранитом под дерево — тоже одновременно и практично, и стильно. К тому же позволяет не дробить помещения визуально.
В ванной комнате скомбинировали два вида плитки — простую белую и мелкую прямоугольную зеленого оттенка (любимый цвет хозяйки) в душевой зоне.

Вообще, зеленый цвет применяли активно именно из-за любви заказчицы к нему. Здесь зеленые фасады кухни, зеленые шторы, которые зонируют гостиную от коридора.
Мебель и системы хранения
Хоть квартира и для временного проживания, для всех членов семьи нужно было организовать место для вещей, еще и продумать хранение лыжного инвентаря. Дизайнер разместила в спальне родителей шкаф, в детской — маленькую гардеробную. А в нишах, которые занимают пространство за кроватями, организованы мини-кладовки для спортивного инвентаря и чемоданов, они спрятаны за подъемными жалюзи.

В маленькой прихожей — крючки для одежды.
Кухонный гарнитур — компактный, но вместительный, с антресольными секциями под скошенным потолком. Есть передвижной остров с дополнительными местами для хранения, а также буфет в столовой зоне для посуды и мелочей.
На балконе организовали зону отдыха с плетеной мебелью, маленьким столиком и шторами, которые закрывают пространство от солнца и глаз соседей.

Освещение
Со светом работали по стандартным сценариям. Есть общий потолочный свет и дополнительный — торшеры, настольные лампы, подвесы. Татьяна отмечает: «Для детской спальни изготовили также настенную панель со светящейся надписью «Don’t worry be happy» — как один из девизов данного проекта, а также как ассоциация с любимой фразой Карлсона: «Спокойствие! Только спокойствие!».


Дизайнер Татьяна Бабенко, автор проекта:
На создание проекта вдохновила замечательная семья заказчика с пятью детьми, четверо из которых — мальчики, а также конфигурация апартаментов, находящихся под самой крышей. Получилась некая фантазия на тему сказки «Карлсон, который живет на крыше» — легкий интерьер со скандинавскими мотивами и яркими цветными вкраплениям. Характерные черты скандинавского стиля — простота и лаконичность отделки, мебель из натуральных материалов, обилие света, уютные уголки для совместного времяпрепровождения.
22 фото

Лестница

Лестница с лежанкой

Лестница с лежанкой

Лежанка

Кухня-гостиная

Гостиная

Гостиная, вид на детскую

Гостиная, вид на детскую

Кухня

Столовая

Столовая

Санузел

Санузел

Санузел

Санузел

Терраса

Терраса

Спальня

Детская

Детская

Детская

Детская Редакция предупреждает, что в соответствии с Жилищным кодексом РФ требуется согласование проводимых переустройств и перепланировок.

Смотреть перепланировку

Анастасия Дубровина

Михаил Чекалов

Софья Калбазова Зонирование Скандинавский стиль Светлые цвета Зеленый цвет