Заказчики купили пустую квартиру с ремонтом от застройщика и попросили дизайнера оживить ее. Получилось стильно!
Заказчики и задачи
Семейная пара приобрела эту квартиру в доме, который построен по программе реновации. Здесь был типовой ремонт от застройщика: белые стены, ламинат на полу, белая плитка в ванной комнате. Хозяева хотели преобразить квартиру быстро, придать ей характер и индивидуальность. Они уже работали с дизайнером Мариной Пенние, поэтому обратились к ней и в этот раз.

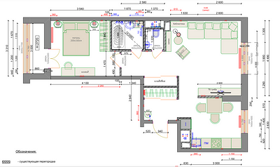
Перепланировка
Это двухкомнатная квартира «распашонка» — то есть выходящая на две стороны. Здесь раздельные ванная и санузел. В планировке был минус — узкая прихожая и коридор между комнатами. Его и исправили, убрав перегородки между одной из комнат и коридором и между кухней и коридором. Построили новые, обособив входную зону. Это же позволило со стороны прихожей вписать встроенный шкаф, а со стороны коридора между комнатами организовать мини-кладовку. Так как квартира только для двоих, гостиную не стали отделять дверью от коридора и кухни. И кухня осталась «открытой» в прихожую. Это позволило еще и осветить входную зону естественным светом из окна кухни.

Отделка
Заказчики хотели оставить электрику от застройщика, но отделку решили поменять полностью. Дизайнер учла это пожелание, но добавила чуть больше розеток и выводов под светильники. Для отделки же выбрали настенную краску, инженерную доску (жилые комнаты), напольную плитку (кухня, прихожая).

В спальне стену за изголовьем кровати украсила фреска. В ней сочетаются любимые цвета хозяйки квартиры — синий и розовый. В гостиной стену за диваном оформили с помощью шпонированных панелей с латунными вставками.

Что касается гаммы — буквально с порога хозяев и гостей встречает сложный оливковый цвет стен, который продолжается на кухне. Он очень понравился заказчикам, поэтому дизайнер применила его в достаточно большом объеме. Основной же фоновый цвет стен — более светлый, бежево-серый. В спальне стены окрашены в сложный синий оттенок, фреска же светлая. Контраст цветов делает это пространство глубже и интереснее.
В ванной комнате скомбинирована плитка двух цветов — белой и зеленой, а напольная (та же, что в прихожей и на кухне) включает сразу оба этих оттенка.

Мебель и системы хранения
За счет перепланировки удалось выделить вместительное хранение в прихожей и коридоре. Там помещается и одежда, и хозяйственные принадлежности. Для повседневных вещей предусмотрели шкаф в спальне.
В гостиной — стеллаж, в верхнюю часть которого встроен внутренний блок кондиционера. Отличная идея для того, чтобы скрыть не совсем вписывающуюся в интерьер технику! Задняя стенка стеллажа отделана каменным шпоном — красивое и благородное решение.

Предусмотрели тумбу напротив дивана. Телевизора сейчас нет, стену над ней украшает картина.

Также в гостиной установлен электрокамин в другом стеллаже. Хозяева оценили камин этой модели еще в прошлом жилье, которое оформляли вместе с Мариной. И здесь не стали отказываться от проверенной временем идеи.

Кухня линейная. Вписали всю нужную технику, включая посудомоечную машину. Холодильник установлен при входе в кухню, он незаметный.

Обеденная группа выглядит акцентно и эффектно. Стол на витиеватой крупной ноге, стулья с кожаными деталями идеально подходят друг другу.

В ванной комнате предусмотрели тумбу под раковину, здесь же под раковиной установлена стиральная машинка.
Освещение
В качестве общего света в каждой зоне предусмотрели акцентные люстры. Настольные лампы в гостиной и спальне стали источниками дополнительного атмосферного света, кроме того эти предметы освещения выступают еще и эффектным декором.

Марина Пенние Дизайнер, автор проекта
Мы создавали современное пространство, соответствующее пожеланиям хозяев, а поскольку заказчики тяготеют к классике, но душа у них требовала современных решений, мы все время балансировали. У нас много натуральных материалов, дерева, классическая симметрия в декоре, лепной карниз и плинтус, золото и латунь в отделке — это, скорее, элементы классики, от современного — подход к планировочному решению, нестандартные элементы мебели (двери с зеркальными вставками, асимметричный стеллаж, мебель без ручек), цветовые решения и декор. В кухне присутствуют элементы ар-деко: бра, люстра и даже столовая группа относит визуально именно к этому стилю, но в нашем случае это скорее проявление классических элементов в современном интерьере.
15 фото

Гостиная

Гостиная

Гостиная

Гостиная

Гостиная

Кухня

Кухня

Кухня

Кухня

Кухня

Прихожая

Спальня

Спальня

Спальня

Ванная комната
Фрагменты квартиры до ремонта



Редакция предупреждает, что в соответствии с Жилищным кодексом РФ требуется согласование проводимых переустройств и перепланировок.

Смотреть перепланировку

Анастасия Дубровина

Наталья Градусова

Юлия Чеботарь Эклектика Зеленый цвет