Дизайнер создала комфортный и функциональный интерьер с учетом имеющихся вводных для семьи с ребенком и собакой.
Заказчики и задачи
Этой квартирой в современном панельном доме в Минске владеет молодая семья с дочерью-школьницей. Планируют завести собаку. Долгое время они жили в Латинской Америке и, когда вернулись в Минск, хотели, чтобы в их квартире были яркие сочные краски, напоминающие об этом периоде жизни.

Функционально требовалось продумать вместительное хранение, общую зону для всей семьи, детскую для активного ребенка, места, где могут остановиться гости, и пространство для будущего домашнего питомца. С этими задачами предстояло работать дизайнеру Татьяне Колодей.

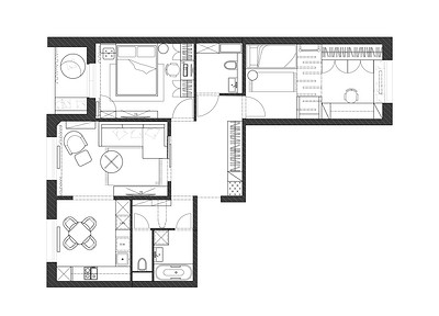
Планировка
Изначальную планировку не было возможности менять кардинально, так как дом панельный, а квартира уже с отделкой от застройщика (и даже с мебелью — был гарнитур на кухне). Это полноценная трешка — три изолированные комнаты, кухня (соединена с гостиной через широкий проем), два санузла, одна ванная комната. Заложили проем на кухню из коридора, чтобы площадь последнего «забрать» под хозяйственную зону — там поставили шкаф с интегрированной гладильной доской.
Перегородку между гостиной и коридором сделали стеклянной раздвижной. Есть возможность изолировать эту зону, но при этом остается воздух и ощущение пространства.
Отделка
Застройщик сдавал квартиру с обоями под покраску, окрашенными в базовый светло-голубой цвет, ламинатом на полу, готовой кухней, санузлами. В прихожей перекрасили стены в холодный бежевый, вклеили зеркало и окрасили часть потолка и стен в темный зеленый цвет, таким образом выделили входную зону.

В гостиной оставили голубой цвет от застройщика. За диваном разместили стеновые панели под дерево. В этой зоне переносили розетки, и чтобы скрыть штробы, применили такой декоративный прием. На кухне цвет стен также изменили — выбрали теплый светло-желтый. Дверной проем оформили ЛДСП-панелями под дерево, подбирая материал под фасады кухни от застройщика.

В спальне оставили частично обои под покраску. Зону у окна, где размещен туалетный столик, выделили глубоким зеленым цветом, включая потолок. Подобрали фоновые обои с текстурой ткани и мебельные ЛДСП-панели под дерево — они размещены за изголовьем кровати. Акцентом стала объемная картина с тропическим сюжетом, написанная автором проекта. Картина выглядит как настенное панно.

В детской отделку от застройщика тоже изменили. Функционально в комнате две зоны, и их обозначили, в том числе, отделкой. У окна — рабочая зона. Здесь обои перекрасили в светлые тона. Ближе ко входу — зона отдыха. Она обозначена обоями-панно с фламинго. По центру — отделка стен и потолка из МДФ-панелей кораллового цвета. Это зона спорта и активности.

Мебель и системы хранения
Всю корпусную мебель выполнили на заказ по эскизам дизайнера, чтобы по максимуму использовать имеющееся пространство.
В прихожей установили большую трехметровую систему хранения. Часть — с открытыми полками с подсветкой, чтобы нивелировать массивность, еще одна часть — с пуфом. Предусмотрено место для хранения обуви (под пуфом и открытыми полками), верхней одежды.

Все хозяйственное хранение сосредоточено в зоне коридора, который закрыли на этапе планировки.
На кухне к имеющемуся гарнитуру добавили два шкафа-колонны. Один из них — с фасадами из рифленого стекла. Такой материал визуально облегчает конструкцию, но при этом практичнее прозрачного стекла, так как нет полной просматриваемости содержимого шкафчиков.

В гостиной — тумба под телевизор и витрина для книг и посуды, она также со стеклянными фасадами (стекло рифленое, как и в других зонах в квартире). Диван раскладной на случай ночевок гостей.
В детской спланировали большой шкаф у окна, специально оставили в одной из секций место для собаки, которую хотят завести в семье.

Напротив шкафа — место для учебы. Там подвесной стол с выдвижными ящиками, высокий пенал и подвесные шкафы. Окно также задействовали. На низком подоконнике обустроили зону отдыха, под ней — система хранения. Сбоку от окна тоже шкафчик, но с рифленым стеклом.

Освещение
От застройщика уже были спланировали выводы и выключатели, нужно было подобрать светильники. Чтобы сделать больше вариаций освещения, дизайнер остановилась на трековых потолочных светильниках. Например, на кухне к треку прикреплены не только споты, но и подвесы. Они над столом. Но так как стол иногда придется двигать, можно двигать и светильники. В спальне хозяев — люстра-паук. Она подключается к одной точке, но длинные шнуры с лампочками можно крепить к потолку по-разному. В гостиной — люстра со множеством плафонов.
Разнообразия в сценариях освещения добились с помощью встроенной мебельной подсветки (на кухне, в спальне, детской, прихожей). А также добавили мобильные светильники — торшер в гостиной, настольная лампа и гирлянда в детской, лампа на полке над диваном.


Татьяна Колодей Дизайнер, автор проекта
Палитра интерьера основана на яркой летней тропической концепции проекта. Основным базовым цветом по всей квартире стал зеленый, менялся только оттенок исходя из стороны света и освещенности помещения. Акцентный цвет в прихожей, коридоре и гостиной — китайский красный, яркий цвет в сочетании с зеленым напоминает большие тропические цветы. В детской акцентный цвет — лососевый — подбирался в цвет фламинго на фреске. Фламинго на стене — давняя мечта маленькой заказчицы.
11 фото

Кухня

Кухня

Гостиная

Гостиная

Гостиная

Спальня

Спальня

Спальня

Спальня

Спальня

Детская Редакция предупреждает, что в соответствии с Жилищным кодексом РФ требуется согласование проводимых переустройств и перепланировок.

Смотреть перепланировку

Анастасия Дубровина

Анна Сайковская Современный стиль Красный цвет Зеленый цвет