Хозяева этой квартиры были против скандинавского стиля и за сохранение визуального простора. Что получилось в итоге?
Заказчики и задачи
Эта квартира принадлежит паре — бизнесвумен и ученому. К дизайнеру Валентине Дукмас у них была главная просьба — сохранить как можно больше свободного пространства. Хозяев не устраивал коридор, который нужно было как-то задействовать. Хозяйка часто работает дома, и ей нужен был кабинет, также была просьба о создании гардеробной. А еще им не нравился скандинавской стиль, поэтому его черты решили не использовать.

Перепланировка
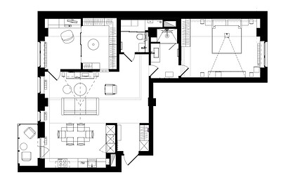
По изначальному плану это была трехкомнатная квартира с двумя санузлами и длинным коридором, который связывал комнаты. Чтобы сделать пространство удобнее, эргономичнее и воплотить пожелания владельцев, автор проекта предложила перепланировку.

В результате кухню и гостиную объединили, присоединив к общей площади пространство коридора. В одной из комнат, которая примыкает к гостиной, организовали кабинет и гардеробную, которая отделяется от кабинета раздвижной стеклянной перегородкой. Вход в эту зону перенесли в гостиную.
Один из санузлов увеличили за счет площади коридора — он стал буферной зоной между общим пространством и приватным — спальней. К тому же так получилось организовать полноценный мастер-блок. Второй санузел незначительно увеличен за счет площади первого — это было необходимо, чтобы организовать зону постирочной.
Отделка
В ходе ремонта все ненесущие перегородки убрали, чтобы возвести их заново и спроектировать четкую геометрию стен. Также «открыли» бетонный потолок, который решили не зашивать в гостиной — лишь частично для того, чтобы скрыть коммуникации. В этой зоне стены оформили декоративной штукатуркой под бетон, дополнив декоративным кирпичом в зоне кухни и частично краской. «Соединив текстуры по вертикали и горизонтали, мы визуально увеличили высоту помещения», — комментирует дизайнер.

Также в гостиной есть участок стены, выложенный стеклоблоками — эта стенка граничит с гардеробной. Стеклоблоки выполняют и декоративную функцию — когда в гардеробной включен свет, в гостиной это выглядит как своеобразное настенное «панно». В комнатах и коридоре стены и потолок окрашены. Для спальни также выбрали частичную отделку декоративным кирпичом, чтобы объединить по смыслу эту зону с гостиной.

Что касается напольной отделки, в зоне кухни и прихожей использовали керамогранит под бетон, в жилых комнатах — ?

Санузлы оформлены разными материалами. В том, где организована постирочная — декоративная штукатурка под бетон на стенах и керамогранит на полу. В мастер-санузле — краска в проходной зоне, плитка рядом с раковиной и керамогранит под дерево в душевой. На полу — также керамогранит.

Системы хранения
Основное хранение расположено в гардеробной, которая примыкает к кабинету — пожелание хозяйки дома выполнено.

В спальне установлен трехстворчатый шкаф для повседневных вещей. Хранение предусмотрено и в кабинете (подвесные шкафчики над рабочим столом), и в санузлах (тумба под раковину в душевой и подвесной шкафчик с зеркалом в гостевом санузле), а также в прихожей — встроенный шкаф и консоль напротив него.
Хозяйственное хранение реализовано в постирочной в санузле.

В гостиной хранение минимально. Пространство освободили от лишних элементов, для мелочей есть тумба под телевизор. Кухонный гарнитур — линейный с рядом верхних шкафов и встроенными шкафами-колоннами, куда спрятана необходимая техника.
Освещение
Дизайнер проектировала разные сценарии освещения — от общего яркого до зонального и подсветок. Роль общего играют потолочные накладные споты контрастного цвета. Над обеденным столом размещены подвесы, у кровати в спальне предусмотрено бра. В санузлах и кабинете, кроме яркого основного света, реализованы мягкие подсветки.


Дизайнер Валентина Дукмас, автор проекта:
Основная задача при проектировании была сохранить пространство визуально чистым и легким, но с контрастными текстурами. Также у заказчиков есть любимые ретропредметы, такие как виниловый проигрыватель, ламповый усилитель и японские гравюры, которые необходимо было вписать в интерьер. Так и родился микс японского минимализма и лофта. Я скомбинировала теплый насыщенный по цвету кирпич и дерево с нейтральным керамогранитом холодного серого оттенка. Выделила окна деревом по периметру. Комбинация серого и белого фона стен позволила расставить акценты на мебели или при необходимости растворить ее в пространстве. Так, например, диван в гостиной теплого оттенка растворился на фоне деревянной кухни. В спальне торец шкафа при входе и изголовье кровати акцентируют внимание на кирпичной кладке.
12 фото

Кухня

Кухня

Кабинет

Кабинет

Гардеробная

Спальня

Спальня

Спальня

Спальня

Спальня, вид на примыкающий санузел и коридор

Санузел при спальне

Санузел-постирочная Редакция предупреждает, что в соответствии с Жилищным кодексом РФ требуется согласование проводимых переустройств и перепланировок.

Смотреть перепланировку

Анастасия Дубровина

Антон Иванов

Диана Ремизова Лофт Минимализм Белый цвет Коричневый цвет Серый цвет