Хочется светлую квартиру, но боитесь, что она наскучит? Разбавляйте фактурами! Так, как сделала дизайнер в этом интерьере.
Заказчик и задачи
Этой квартирой владеет молодой мужчина. Он ведет активный образ жизни, получает второе высшее образование, любит принимать в гостях друзей. К дизайнеру Татьяне Кондрашовой у него был запрос на создание уютного функционального интерьера с минимумом визуального шума. Татьяна сделала ставку на фактуры!

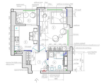
Планировка
Планировку от застройщика не меняли. Здесь большая спальня, кухня с отдельным балконом, ванная и прихожая. Хозяин хотел распланировать спальню так, чтобы поместилась зона отдыха с креслами. Дизайнер воплотила это пожелание. Еще одна зона отдыха расположена на теплом балконе (батарею там поставил застройщик).

Отделка
Дизайнер предложила для отделки практичные материалы и сделала ставку на сочетание разных фактур в отделке. На полу — глянцевый керамогранит под белый мрамор с серыми прожилками. Его уложили по всей площади квартиры, даже в спальне. «Холод» керамогранита компенсировали отделкой стен вокруг оконных проемов шпоном ореха. Основная отделка — гладкая белая краска, которую «разбавили» фактурной декоративной штукатуркой и архитектурными элементами стен: выступами, рельефным панно, построенным из гипсокартона вручную, над рабочей зоной в спальне.

Хозяин хотел бетонные потолки, это пожелание воплотили с помощью декоративной штукатурки. «Голый» бетон решили не оставлять, так как на старте ремонта стало понятно, что в доме слишком хорошая слышимость. Пришлось решать это звукоизоляцией потолков и подшивными конструкциями.

Для ванной комнаты выбрали керамогранит под мрамор насыщенного серого цвета, который скомбинировали с керамогранитом под дерево и панелями в цвет обоих видов керамики.

Мебель и системы хранения
Запрос хозяина был на отсутствие визуального шума, и он решен с помощью вместительных систем хранения. Шкаф для верхней одежды и обуви, а также хранения сезонных вещей спроектировали в прихожей. Одна из секций открытая, чтобы можно было повесить влажные куртки сразу после прихода домой.

В спальне — шкаф для повседневной одежды, где также сделали секции для хозяйственных целей: хранения пылесоса, отпаривателя, гладильной доски. В спальне же предусмотрели рабочее место с подвесными открытыми полками, где можно хранить книги, и стеллажом для хранения рабочих папок с документами. Рядом — подвесная консоль под телевизор.

Кухня — прямая. Всю технику встроили и задействовали стены под потолок, чтобы увеличить объем хранения.

В санузле выделили место для шкафа со встроенными стиральной и сушильной машиной. В нишу, которая образовалась между стеной и коробом с коммуникациями, спрятали водонагреватель. В душевой построили нишу для создания встроенных полок, куда можно поставить бутылочки с гелями и шампунями. Есть и тумба под раковину с двумя выдвижными ящиками.
Корпусную мебель изготовили на заказ, а отдельно стоящие предметы выбирали из готовых позиций на маркетплейсах и в местных мебельных магазинах.

Освещение
Чтобы создавать разную атмосферу в зависимости от настроения, дизайнер предусмотрела разнообразные сценарии освещения. На потолке — накладные споты. Скрытые подсветки — не только функциональный сценарий света (в шкафах, над рабочей поверхностью кухни), но и способ подчеркнуть архитектурные элементы интерьера и разнообразие фактур на стенах. Настенные бра над обеденным столом в кухне, над консолью в прихожей и у двери в санузел, а также подвес над кроватью в спальне также позволяют разнообразить обстановку.


Татьяна Кондрашова Дизайнер, автор проекта
Квартира, имеющая роскошные виды из окон на Казань, Волгу и верхний берег, и ее владелец — молодой целеустремленный холостяк, любящий функционал и уют, вдохновили меня на создание функциональной «берлоги», колористической сдержанной, но непременно уютной. Акцент был сделан на игре контрастов цветов и фактур. В качестве фона мы использовали контраст фактурных и гладких стен светлых и темных тонов. Яркость и «вкус» интерьеру придают сочные краски обрамления натуральным шпоном ореха оконных проемов и яркие кресла. Лаконичный сдержанный стиль не предусматривал обилие декора. Гипсовое авторское панно, сделанное мной, стало подарком и сюрпризом для заказчика.
8 фото

Спальня

Кухня

Кухня

Кухня

Прихожая

Прихожая

Санузел

Санузел
Редакция предупреждает, что в соответствии с Жилищным кодексом РФ требуется согласование проводимых переустройств и перепланировок.

Смотреть перепланировку

Анастасия Дубровина

Георгий Трушкин Маленькие квартиры Современный стиль Светлые цвета