Дизайнер Ольга Шустова работает в стиле минимализм, но заказчик изначально не до конца понимал, подойдет ли ему эта эстетика. После знакомства и общения, изучения референсов и пожеланий все встало на свои места — мужчина хотел аскетичный интерьер, функциональный, но визуально чистый. Одно из интересных решений проекта — скрытая детская зона, для которой использовали мебель-трансформер. Рассказываем подробнее.
Заказчик и задачи
Владелец этой квартиры в Санкт-Петербурге — молодой мужчина, холостяк, работает в сфере IT. В свободное время занимается спортом, читает, увлекается йогой и медитациями. У него двое детей, которые периодически остаются с ночевками.
К дизайнеру Ольге Шустовой мужчина обратился с пожеланием сделать простое и функциональное пространство, вписать зону для занятий спортом и медитаций. «Заказчик — интроверт, и раскрылся не сразу. Понадобилось несколько встреч, чтобы уловить его сущность и понять, в каком интерьере он будет себя ощущать комфортно и гармонично. Аскетизм и нейтральная цветовая гамма — это первое, на чем мы сошлись», — рассказывает Ольга.

Перепланировка
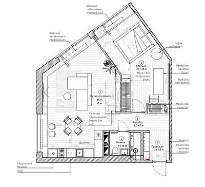
Застройщик предлагал двухкомнатную квартиру с изолированными комнатами, кухней и санузлом. Запросам заказчика это, в целом, подходило, но дизайнер все же предложила несколько вариантов перепланировки, которые могли бы улучшить образ пространства. В итоге остановились на одном из них.
Кухню и гостиную объединили. В гостиной обустроили зону спальни для детей — это двухъярусная кровать-трансформер, которая скрыта за раздвижной стеклянной перегородкой, тонированной в черный цвет. В закрытом виде трансформер представляет собой шкаф.

Конфигурацию отдельной спальни немного поменяли, чтобы вписать со стороны прихожей встроенный шкаф. Зону спорта и медитаций смогли выделить именно в спальне. Там установили большое зеркало с сенсорной подсветкой и шведскую стенку.
Отделка и ремонт
Для отделки всех зон выбрали краску. «Именно окрашенные стены дают нужную глубину и возможность использовать один тон и в мебели, и в стенах, и даже в дверях, если есть необходимость. Я люблю этот прием, так как он позволяет создавать нужную геометрию пространства», — комментирует Ольга. На полу уложили паркетную доску. Хозяин ранее жил в квартире, где был паркет, и не хотел отказываться от натурального покрытия. Дизайнер предложила современный вариант, который подходил и по качеству, и по бюджету.
Потолок сделали натяжной. И, по словам автора проекта, в этом была главная сложность. «Так как помещение гостиной имеет сложную форму и немаленькую площадь, потолки переделывали два раза. В больших помещениях натяжной потолок в любом случае имеет небольшой провис к центру. А кухня у нас была запланирована угловой формы и до потолка. И этот провис мешал монтажу кухни. К тому же в помещении кухни-гостиной были установлены три пожарных датчика, высоту которых также нужно было учитывать при натягивании потолка. Но совместными усилиями мы решили эту проблему и сделали все как надо», — рассказывает Ольга.

Другой глобальный вопрос ремонта касался окон. Застройщик анонсировал панорамное остекление, и во многом это определило выбор хозяина квартиры. Но в итоге получилось по-другому. Окна большие, но все же не в пол. Сначала владелец хотел провести замену, однако нормы не позволяли этого сделать. Дизайнер предложила решение. «У меня родилась идея оформления подоконной части и откосов единой композицией, сделав их акцентными. И так как заказчик любит читать либо проводить время за бокалом вина, решено было организовать в этих зонах дополнительные локации», — объясняет Ольга. Так подоконники стали широкими, а пространство под окнами заполнено системами хранения или декорировано решетками.

Отделку ванной комнаты не меняли, она осталась от застройщика. Предусмотрели только новую душевую систему и ограждение этой зоны.

Системы хранения
Минималистичный интерьер подразумевает скрытые системы хранения. Так и сделали. В коридоре встроили шкаф для хранения верхней одежды с секцией для пылесоса. В прихожей продумали небольшую полочку для мелочей, а также встроенную вешалку с закрытыми полками и скамьей. В спальне — шкаф для остальных вещей.

В гостиной под подоконниками оформили тумбы с выдвижными ящиками. В спальне — открытые полки.
Стиральную машину вписали на кухню, как и необходимую кухонную технику.
Мебель
Корпусную мебель выполняли на заказ и сделали ее в цвет стен, что соответствует образу и задумке минималистичного интерьера. Под заказ делали и некоторые другие предметы обстановки. Например, обеденный стол. При выборе мягкой мебели опирались не только на эстетику, но и практичность — устойчивость обивки к грязи, в частности. «В обивке дивана и стульев было важно, чтобы они имели водоотталкивающий эффект и ничего не впитывали, даже вино. Для этого мы с клиентом проводили небольшие эксперименты. И выяснили, что лучше всего нам подходит флок», — рассказывает дизайнер.

Освещение
В выборе светильников также придерживались концепции минимализма. Сценарии освещения разделили по группам и зонам. «Я чередую точечную подсветку с хорошим мощным световым потоком со светильниками-таблетками над основными зонами в виде рассеянного освещения. Для более вечерней обстановки есть теплая закарнизная подсветка вдоль окон. Рядом с диваном — напольная лампа для чтения. Над обеденной зоной — большая акцентная люстра, собирающая композицию», — рассказывает дизайнер.


Дизайнер Ольга Шустова, автор проекта:
Стилистика декора и текстиля не отличается от стилистики всего интерьера. В тканях важна была натуральность и фактура. В декоре — лаконичность и минимализм, его я подбирала сама, и на это ушло немало времени. Декор и текстиль — это окончательная точка и завершающий штрих, который делает интерьер живым. Более того, таким, каким мы видим его в журналах. Поэтому это очень важно. Я несколько раз объезжала салоны и магазины. Пересмотрев множество вариантов, нашла нужный декор, который в итоге остался с хозяином и отлично вписался в интерьер. Кроме этого, я нашла керамиста, который изготовил нам необычную посуду. Еще один элемент в гостиной — это панно из пробки. Заказчик попросил сделать доску для крепления детских рисунков. Чтобы не выбиваться из общего стиля, я нашла мастерскую, которая занимается пробковыми покрытиями и попросила их изготовить это панно. В итоге пробковый лист закрепили на листе МДФ и прокрасили в черный цвет. Получилось очень здорово.
13 фото

Кухня-гостиная

Кухня-гостиная

Кухня-гостиная

Кухня-гостиная

Кухня-гостиная

Кухня-гостиная

Кухня-гостиная

Вид на коридор

Спальня

Спальня

Вид на коридор

Вид на коридор

Коридор-прихожая Редакция предупреждает, что в соответствии с Жилищным кодексом РФ требуется согласование проводимых переустройств и перепланировок.

Смотреть перепланировку

Анастасия Дубровина

Никита Коростелев Минимализм Черный цвет Серый цвет