2 Дизайнер Юлия Люблянова применила современные приемы и отделочные материалы, создав гармоничное пространство в стенах деревянного дома.
Заказчики и задачи
Владельцы этого двухэтажного дома с цокольным этажом — семья с дочерью-подростком и сыном дошкольного возраста. Дом они строили под свои нужды, поэтому планировка и количество помещений были определены изначально. К дизайнеру же Юлии Любляновой семья обратилась за оформлением интерьера. «Нужно было создать уютное, функциональное, гармоничное и долговечное пространство для жизни. Перед проектированием кухни заказчица сразу сказала, что хочет стеклянный фартук, через который будет виден сам брус. Также она сразу обозначила что хочет филенчатые серые фасады», — рассказывает автор проекта.

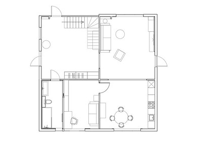
Планировка
Дом двухэтажный, с цокольным этажом. Пространство разделено традиционным образом. На первом уровне — общие зоны: большой холл, санузел, гостиная, кухня и кабинет, который по совместительству также является гостевой комнатой. Гостиную и кухню дизайнер предложила разделить стеклянной перегородкой, сохранив ощущение свободного пространства.

На втором этаже расположены приватные комнаты: спальня хозяев, две детские, душевая. На цокольном этаже — бассейн и сауна.
Отделка
Отделочные материалы подбирали, следуя принципу натуральности. Деревянные стены дома оставили, покрыв их светлой полупрозрачной краской.

Камин в гостиной оформили крупноформатным керамогранитом под черный камень, а стену за телевизором — деревом.

На полу использовали керамогранит (в прихожей и на кухне) и паркет (в жилых комнатах и кабинете). Ванную комнату на первом этаже оформили плиткой, выбрав отделку с имитацией природной фактуры дерева и песка.

На втором этаже душевая отделана керамогранитом частично: одна из стен, зона душа и пол. Часть стен решили оставить в дереве, покрыв их прозрачным лаком.

На цокольном этаже использовали отделку крупноформатным керамогранитом, также выбрали природные фактуры, чтобы сохранить единство интерьера и ощущение натуральности.
Мебель и системы хранения
Формы мебели, в основном, современные. Большинство фасадов шкафов выполнено с филенками, включая кухонный гарнитур, как и хотела хозяйка. Мягкая же мебель — прямых форм без ненужных деталей. В спальнях — кровати с мягкими изголовьями. Для родительской подобрали кровать с изголовьем в каретной стяжке.

В детской сына — фигурное изголовье в форме забавных «ушек», что добавило нужного игривого настроения.
Что касается систем хранения — их продумали в достаточном количестве. В каждой детской и спальне есть шкафы. В спальне они установлены по стене со скошенным потолком, что предусмотрено конструкцией шкафов.

В кабинете — система шкафов и стеллажей для книг и вещей гостей, которые могут остановиться там.

В гостиной ТВ-зона совмещена с настоящим камином. Под телевизором — небольшая тумба с выдвижными ящиками. На кухне, кроме линейного кухонного гарнитура, есть буфет для посуды. В холле — большой вместительный шкаф, выполненный на заказ. Для мелочей предусмотрен комод, на столешнице которого собрана красивая декоративная виньетка, обращающая на себя внимание. Также в нишу встроен стеллаж с открытыми полками.

В ванной комнате и душевой — тумбы с выдвижными ящиками под раковиной. В душевой также есть открытый стеллаж для хранения мелочей.
Освещение
Основным сценарием освещения стали черные трековые светильники, которые контрастируют со светлыми деревянными стенами и потолком. На кухне над обеденным столом повесили люстру в классической стилистике, это акцентная деталь. Для подсветки лестницы, а также картин в прихожей, кабинете и гостиной предусмотрены бра.

В спальне — настольные лампы в качестве дополнительного источника света. В комнате сына есть прикроватное бра, как и в комнате дочери.

Для дочки также предусмотрели туалетный столик с зеркалом с подсветкой.

В ванной комнате сделали скрытую подсветку потолка, использовали встроенное точечное освещение, а в качестве дополнения предусмотрели подвесы над раковиной.

Дизайнер Юлия Люблянова, автор проекта:
Акцентным цветом в проекте служит темно-серый цвет, который прослеживается в мебели (кухня, комод в прихожей, ТВ-тумба, диван в гостиной, кровать в спальне) и в некоторых отделочных материалах. Он отлично играет на контрасте со светлыми стенами из бруса, выкрашенными полупрозрачной краской. Материалы под дерево — плитка в ванных комнатах, мебель из шпонированного МДФ — придают дому уюта и тепла. В целом, дом вышел очень просторным, легким и гостеприимным.
39 фото

Холл

Холл

Холл

Холл

Холл

Кухня

Кухня

Кухня

Кухня

Гостиная

Гостиная

Гостиная

Кабинет

Кабинет

Кабинет

Кабинет

Ванная на первом этаже

Ванная на первом этаже

Ванная на первом этаже

Ванная на первом этаже

Спальня

Спальня

Комната сына

Комната сына

Комната сына

Комната сына

Комната сына

Комната дочери

Комната дочери

Комната дочери

Комната дочери

Душевая на втором этаже

Душевая на втором этаже

Душевая на втором этаже

Душевая на втором этаже

Душевая на втором этаже

Цокольный этаж

Цокольный этаж

Цокольный этаж Редакция предупреждает, что в соответствии с Жилищным кодексом РФ требуется согласование проводимых переустройств и перепланировок.

Смотреть перепланировку

Анастасия Дубровина

Стас Гаврилов

Кристина Бурак Современный стиль