Задача с непростыми вводными. Как логично, гармонично и удобно разместить в совмещенном санузле все? Какое место будет удачным для установки бытовой техники? Какие решения предлагают дизайнеры? Расскажем в этой статье.
В типовых квартирах, как правило, встречаются два варианта планировки санузлов: совмещенные и раздельные. В этой статье мы поговорим о первом. В большинстве квартир нет кладовых и технических помещений. Так что в санузле, помимо ванны, раковины и туалета, приходится размещать еще и стиральную машину. Конечно, можно найти для нее место в коридоре и даже на лоджии, — но это не самые очевидные решения. Поэтому расскажем, как сделать интерьер ванной с туалетом и стиральной машиной гармоничным и стильным, а пространство удобным и функциональным. А еще поделимся удачными идеями дизайна.
Все о дизайне совмещенного санузла со стиральной машиной
Эргономика
Планировка санузла
— Пример №1
— Пример №2
— Пример №3
— Пример №4
Способы расположения техники
— Под столешницей
— В нише
— За закрытыми дверями
— За перегородкой
— Под раковиной
— Колонна
— Отдельно стоящая
Гид по стилям
Эргономика

Прежде чем приступить к планировкелюбого помещения — гостиной, спальни, кухни и ванной, нужно заручиться знаниями в области эргономики. Специалисты давно рассчитали, какие размеры, высоты, расстояния, варианты размещения сантехники и мебели наиболее удобны и функциональны. Итак, в совмещенной уборной нужно предусмотреть: туалет, ванна (или душ), стиральная машина, раковина. И вот что важно учесть.
- Прямоугольную ванну рекомендуется ставить так, чтобы она с трех сторон была окружена стенами. Это позволит сохранить правильные пропорции помещения, рационально использовать пространство.
- Удобная высота от пола до верхнего края ванны — около 60 см.
- Расстояние сбоку от унитаза до другой сантехники или мебели должно быть 30-40 см.
- Оптимальное расстояние между унитазом и ванной, установленными друг напротив друга, — 75 см. Минимальное — 50 см.
- Средняя высота установки раковины — 90 см. Но допускаются варианты в диапазоне от 80 до 100 см.
Планировка совмещенного санузла со стиральной машиной
Вариантов планировки для совмещенной уборной существует достаточно, чтобы выбрать подходящую для любого помещения. Рассмотрим несколько удачных и интересных примеров как для небольших, так и для просторных комнат.
Пример №1

Площадь этой комнаты — 4,6 кв. м. Тем не менее здесь удалось разместить все необходимое. Дизайнер выбрала Г-образную композицию. Вдоль одной стены установлены раковина и стиральная машина под единой столешницей. По этой же стене в углу — душевая. Подвесной унитаз поместили у перпендикулярной стены. Над ним — шкафчик для хранения.

Дизайн: Анна Мальцева. Фото: Евгений Гнесин

Дизайн: Анна Мальцева. Фото: Евгений Гнесин

Дизайн: Анна Мальцева. Фото: Евгений Гнесин
Пример №2:

Еще один вариант для компактного помещения, но уже прямоугольной формы. Площадь комнаты — 4,2 кв. м. Здесь мы видим не душевую, а полноценную ванну. Ее разместили вдоль короткой стены так, что она плотно ограничена с трех сторон. По длинной стене установили раковину и машинку под одной столешницей, в углу — шкаф для хранения. Место для унитаза выбрали у второй короткой стены.

Дизайн: Мария Михайлова. Фото: Роман Спиридонов

Дизайн: Мария Михайлова. Фото: Роман Спиридонов

Дизайн: Мария Михайлова. Фото: Роман Спиридонов
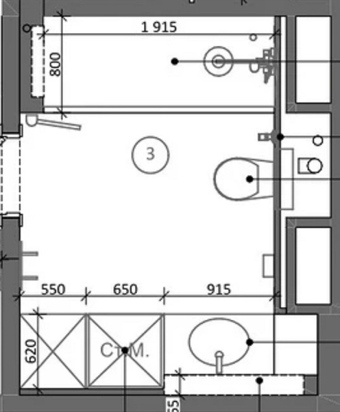
Пример №3

В этом проекте геометрия помещения более сложная. За счет стен-перегородок пространство зонировано. Несмотря на небольшие размеры, а площадь этого санузла около 4,3 кв. м, кажется он больше. В расстановке техники и мебели задействованы лишь две коротких стены прямоугольной комнаты. Вдоль одной, через перегородку, установлены раковина и колонна из стиральной и сушильной машин. Напротив, также через перегородку, — унитаз и душевая.

Дизайн: Юрий Миронов: Фото: Анастасия Вандалковская. Стиль: Настасья Корбут

Дизайн: Юрий Миронов: Фото: Анастасия Вандалковская. Стиль: Настасья Корбут

Дизайн: Юрий Миронов: Фото: Анастасия Вандалковская. Стиль: Настасья Корбут

Дизайн: Юрий Миронов: Фото: Анастасия Вандалковская. Стиль: Настасья Корбут
Пример №4

Если помещение просторное, можно предусмотреть П-образную композицию, как в этом проекте. Площадь комнаты здесь — 6,5 кв. м. Вдаль одной из стен дизайнер разместила и раковину с подвесной тумбой и зеркалом, и шкафы для хранения, и колонну из техники. Стена напротив занята просторной душевой. А вдоль третьей свободной стены поставили унитаз.
7 фото

Дизайн: Василиса Максимаджи. Фото: Татьяна Никитина. Стиль: Анна Бахтина

Дизайн: Василиса Максимаджи. Фото: Татьяна Никитина. Стиль: Анна Бахтина

Дизайн: Василиса Максимаджи. Фото: Татьяна Никитина. Стиль: Анна Бахтина

Дизайн: Василиса Максимаджи. Фото: Татьяна Никитина. Стиль: Анна Бахтина

Дизайн: Василиса Максимаджи. Фото: Татьяна Никитина. Стиль: Анна Бахтина

Дизайн: Василиса Максимаджи. Фото: Татьяна Никитина. Стиль: Анна Бахтина

Дизайн: Василиса Максимаджи. Фото: Татьяна Никитина. Стиль: Анна Бахтина
Способы расположения стиральной машины в совмещенной уборной
Мы проанализировали готовые работы специалистов и на этой основе выделили несколько удачных способов установки агрегата в объединенном санузле.
Рядом с раковиной, под единой столешницей

Это самый популярный и распространенный вариант. Выглядит это так: вдоль одной из стен устанавливают подвесную столешницу. На ней размещают накладную или врезную раковину. Чаша при этом сдвигается к одному из краев столешницы. Под ней — тумба для хранения. Другой край столешницы остается свободным. Его используют как полку. А под ним как раз устанавливается стиральная машина. Важно, чтобы глубина столешницы и машинки была одинаковой. Таким образом, агрегат не выдается вперед, не мешает проходу, оставляет свободный доступ к раковине. В этом случае подойдет только техника с горизонтальным способом загрузки белья. Планировка может быть разной. Столешницу устанавливают и вдоль короткой стены, перпендикулярно ванне. Либо можно разместить их друг напротив друга, а унитаз — у свободной стены.

Дизайн: Татьяна Бабенко. Фото: Михаил Чекалов. Стиль: Софья Калбазова

Дизайн: Татьяна Бабенко. Фото: Михаил Чекалов. Стиль: Софья Калбазова

Дизайн: Яна Сахаревич

Дизайн: Наталья Ляйфер. Фото: Евгений Гнесин
В нише
Это может быть настоящая ниша, образованная стенами или перегородками в помещении. А может быть специально спроектированная открытая ниша в нижней части шкафа. Чаще всего встречается второй вариант.

Обычно в своих работах дизайнеры проектируют высокий вертикальный распашной шкаф до потолка. Для машины оставляют свободное пространство в его основании. Шкаф может плотно прилегать к технике. Либо между ними может размещаться небольшая открытая полка. Важно, чтобы глубина шкафа равнялась глубине машинки. Тогда аппарат не будет выступать вперед. Такой шкаф чаще размещают в углу, сбоку от раковины либо ванны. Есть примеры, когда шкаф проектируют длиной во всю стену. Такой вариант подойдет для более просторных помещений. Унитаз в этом случае может быть расположен вдоль перпендикулярной стены, вместе с раковиной. А ванна напротив шкафа.
11 фото

Дизайн: Марина Есина. Фото: Евгений Гнесин. Стиль: Ирина Бебешина

Дизайн: Марина Есина. Фото: Евгений Гнесин. Стиль: Ирина Бебешина

Дизайн: Екатерина и Вадим Бычковы. Фото: Евгений Гнесин. Стиль: Ирина Бебешина

Дизайн: Екатерина и Вадим Бычковы. Фото: Евгений Гнесин. Стиль: Ирина Бебешина

VK, Наталия Юсупова @spb.designer

VK, Наталия Юсупова @spb.designer

VK @olga_dukven

VK @olga_dukven

VK @devyashina.design

VK @devyashina.design

VK @maximadzhi
За закрытыми дверями
Предыдущие два способа предполагают открытое размещение машинки. Этот же, наоборот, позволяет спрятать технику.

Есть несколько вариантов, как это сделать. В первом случае машинку убирают в тумбу под столешницей с раковиной. Это компактное и рациональное решение для маленьких комнат площадью около 3-4 кв. м. Интерьер выглядит лаконичным и завершенным. Закрытое размещение позволяет избежать визуального шума.
Если размеры санузла позволяют, можно использовать другой способ — установить встроенный хозяйственный шкаф и закрыть его раздвижными дверцами. В нем хранят и технику, и хозяйственные принадлежности. Такой шкаф можно организовать, отгородив часть помещения вдоль короткой или длинной стены. Параллельно нему, вдоль соседней стены, но на достаточном расстоянии, обычно ставят унитаз.
6 фото

VK, Наталия Юсупова @spb.designer

VK,Наталия Юсупова @spb.designer

VK, Наталия Юсупова @spb.designer

VK @olga_dukven

VK, студия Make art @razrabotka_dizain_proektov

VK, студия Make art @razrabotka_dizain_proektov
За перегородкой
Это решение по своему смыслу похоже на предыдущее. Задача — избежать лишнего визуального шума и дробления пространства.

В проекте, который представлен на фото, в качестве перегородки использованы жалюзийные дверцы. Купить подобные можно в любом крупном строительном магазине. Здесь они скреплены петлями, чтобы получилась дверь-гармошка. Мы также видим угловую чашу, рядом с ней — унитаз, а раковина размещена напротив.
Сделать перегородку можно и из других материалов. Например, из стеклоблоков. Либо просто организовать хранение за плотными шторами.

Дизайн: Евгения Филатова. Фото: Михаил Чекалов

Дизайн: Евгения Филатова. Фото: Михаил Чекалов

Дизайн: Евгения Филатова. Фото: Михаил Чекалов
Под раковиной
Удачное решение для ванных комнат, где каждый сантиметр пространства на счету.

В этом случае умывальник устанавливают непосредственно над стиральной машиной, без промежуточного звена в виде столешницы. Если в планах такой способ установки, следует заранее выбрать подходящую сантехнику. Обычная чаша не подойдет. Нужна максимально плоская со сливом в боковой части или в углу.

Дизайн: Алеся Котова. Фото: Евгений Гнесин. Стиль: Анастасия Власова

Дизайн: Алеся Котова. Фото: Евгений Гнесин. Стиль: Анастасия Власова
Колонна
Это выбор для тех, кому нужно разместить не только стиральный, но и сушильный агрегат. Тогда один ставят прямо поверх другого.

Выбирать нужно технику, которая позволяет такое расположение. В этом случае в комплекте должны быть заложены специальные крепления от производителя. Что касается планировки и дизайна, для колонны часто проектируют специальную открытую нишу в высоком вертикальном шкафу. Шкаф размещают сбоку от раковины либо вплотную к душевой кабине или ванне, чтобы он выглядел более компактно и не сужал пространство. В шкафу, вокруг колонны, организуют закрытые места хранения. Унитаз при этом устанавливают вдоль свободной стены.

Дизайн: Инна Чашина. Фото: Алексей Ключников

Дизайн: Инна Чашина. Фото: Алексей Ключников

Дизайн: Ирина Бородина и Екатерина Малая. Фото: Антон Лихтарович

Дизайн: Анна Маркова и Ксения Шабалина. Фото: Борис Бочкарев

Дизайн: Василиса Максимаджи. Фото: Татьяна Никитина. Стиль: Анна Бахтина
Отдельно стоящая
Не всегда, чтобы создать стильный и гармоничный интерьер, нужно прибегать к дополнительным приемам. Просто стоящая отдельно машинка тоже может смотреться лаконично и уместно. Главное, правильно выбрать место для техники и ее модель.

Например, поставить машинку можно в углу, слева или справа от двери. Важно, чтобы она не мешала проходу. Сантехнику в этом случае можно расположить вдоль трех свободных стен. Также технику размещают рядом с раковиной. А напротив — душевую кабину и туалет, как на фото в галерее. Что касается модели, выбирайте цвет, который подойдет интерьеру. Сегодня есть в продаже не только классические белые, но и серые, черные, цветные варианты.
9 фото

Дизайн: Владимир Карпенко. Фото: Василий Хуртин

Дизайн: Владимир Карпенко. Фото: Василий Хуртин

Дизайн: Ольга Слугина. Фото: Антон Иванов. Стиль: Анна Королева

Дизайн: Мария Пивоварова. Фото: Инна Каблукова

Дизайн: Мария Пивоварова. Фото: Инна Каблукова

VK @olga_dukven

VK @olga_dukven

VK @olga_dukven

VK @olga_dukven
Ванная комната с туалетом и стиральной машиной: гид по стилю
Выбор способа установки и оформления сантехники, мебели и техники в совмещенном санузле зависит от общего дизайна ванной комнаты с туалетом и стиральной машиной, от выбранного стиля ванны.
Скандинавский

Он достаточно демократичен. Главное — функциональность, практичность, удобство. Преимущество стоит отдать светлым цветам как техники, так и мебели, отделочных материалов. Их можно подружить с натуральными древесными оттенками, природными цветами камня. Стоит избегать обилия слишком темных или ярких красок, а также излишне блестящих, глянцевых поверхностей. Они могут быть, но в роли акцентов. В целом же отдавайте предпочтение матовым текстурам приглушенных, естественных цветов. Что касается дизайна мебели, сканди стремится к простым, понятным формам, чистым линиям.

Дизайн: Татьяна Бабенко. Фото: Михаил Чекалов. Стиль: Софья Калбазова

Дизайн: Ирина Молчановская, студия Akcent Buro. Фото: Елизавета Гуровская. Стиль: Анна Стрижак

VK @kareev_design

VK @kareev_design

VK @kareev_design
Минимализм
Он может быть в светлой гамме, на границе со скандинавскими интерьерами. А может быть брутальным, темным и насыщенным, близким к лофту.

Допускает яркие, контрастные цвета. Встречаются как матовые, так и глянцевые поверхности. Можно использовать металлизированные детали: цвета серебра, хрома, ржавого железа, меди. Популярны текстуры дерева и камня. Общим для всего этого разнообразия является стремление к минимуму декора, деталей, отсутствию визуального шума, простоте линий.

Дизайн: Наталья Ляйфер. Фото: Евгений Гнесин

Дизайн: Яна Сахаревич

Дизайн: Ксения Гусева. Фото: Евгений Гнесин

Дизайн: Ирина Шевченко. Фото: Антон Лихтарович
Классика и неоклассика
Для таких интерьеров важны композиция, симметрия, пропорции. Об этом нужно помнить и при размещении сантехники и мебели.

Если техника будет открытой, не стоит выбирать модель со множеством металлизированных, хромированных элементов. Пусть она будет лаконичной, максимально неприметной внешне. Для классики и неоклассики также характерна пастельная палитра, элементы роскоши: позолоченные или латунные элементы, лепнина, резьба, филенки на мебели. Неоклассика более демократична. Она тоже приемлет все эти элементы, но в более легком виде.

Дизайн: Владимир Карпенко. Фото: Василий Хуртин

Дизайн: Карина Сейфуль-Мулюкова. Фото: Сергей Красюк. Стиль: Кира Прохорова
Современный стиль
Когда в одном пространстве есть набор актуальных, трендовых приемов из разных востребованных стилей, говорят о современном интерьере.

Ванная комната в таком стиле — пространство для творчества. Сегодня популярны натуральные цвета и фактуры: крупноформатный керамогранит с текстурой дерева, камня, железа, в том числе окисленного и ржавого. Актуальна и мелкоформатная вертикальная плитка, а также квадратная с глянцевой поверхностью и «мокрым» эффектом. Все чаще вместо керамики или в тандеме с ней используют матовую краску, в том числе насыщенных цветов, и даже обои, порой, с невероятным, фантазийным принтом.
6 фото

Дизайн: Ольга Лаврова. Фото: Кристина Плеер. Стиль: Светлана Окулова

Дизайн: Анастасия и Евгений Российские. Фото: Евгений Гнесин. Стиль: Ирина Бебешина

Дизайн: Анастасия и Евгений Российские. Фото: Евгений Гнесин. Стиль: Ирина Бебешина

Дизайн: Анастасия Заркуа. Фото: Татьяна Никитина. Стиль: Наталья Орешкова

Дизайн: Ольга Лаврова. Фото: Кристина Плеер. Стиль: Светлана Окулова

Дизайн: Анна Мальцева. Фото: Евгений Гнесин. Стиль: Евгения Мельникова
Деревенский стиль
Кантри, прованс, рустик, шале, русский стиль — все это разновидности деревенского стиля.

Ключевая их особенность — применение натуральных, природных материалов: дерево, камень, натуральные ткани. Отделка может быть слегка небрежной, неаккуратной, даже грубой. Мебель — простая, похожая на самодельную. Главное, что должно быть, — ощущение тепла и уюта сельской жизни.

Соцсети дизайнера Татьяны Лубяной

Соцсети дизайнера Татьяны Лубяной

Соцсети дизайнера Валерии Титовой

Соцсети дизайнера Валерии Титовой

Соцсети дизайнера Валерии Титовой

Анна Харитонова