Для молодой семейной пары, которая большую часть времени проводит дома, дизайнер спроектировала актуальный и удобный интерьер.
Заказчики и задачи
Этой квартирой владеет молодая семья с котом. Оба работают дома, большую часть времени проводят вдвоем, любят смотреть фильмы по вечерам, иногда принимают дома гостей до 5 человек. Им был необходим комфортный интерьер в природной гамме. Нужно было вписать уже существующую мебель из ИКЕА, предусмотреть два рабочих места, добавить естественного света в темный коридор. С этим пара обратилась к дизайнеру Евгении Абориной.

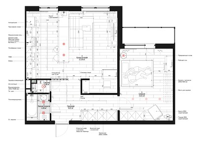
Перепланировка
Изначально это была двухкомнатная квартира с изолированными комнатами, кухней, большой прихожей, раздельными ванной и санузлом, балконом. Вместе с дизайнером хозяева решили, что им было бы удобнее иметь большую общую зону для совместного времяпрепровождения и встречи гостей, чем отдельные кухню и гостиную. К тому же надо было как-то задействовать большую и темную прихожую.
Таким образом, перегородку между кухней и комнатой убрали, так же как и стену в коридор. Построили новую перегородку между комнатой и коридором с нишей для рабочего стола. А чтобы визуально все же отделить «грязную» зону от кухни, выбрали стеклоблоки. Они зонируют пространство, но при этом пропускают естественный свет из окон. К тому же создают интересную игру света и тени на стенах прихожей в разное время дня. Решение очень понравилось заказчикам.

Отделка
Для отделки стен выбрали обои ввиду более простой подготовки стен под них. На этапе планирования отделки семья была не уверена, что бригада справится с подготовкой. Тем не менее стены выровняли отлично, но от обоев не отказались. Выбрали фоновые обои в светлых тонах без фактуры для кухни-гостиной и прихожей, а в спальне — с фактурой штукатурки.

Есть и акцентные участки. Например, меловые обои в рабочей зоне, обои с рисунком листьев в прихожей, фреска с изображением крупных листьев в изголовье кровати в спальне. В этом тоже стремились поддерживать природную тематику.

На полу — ПВХ-плитка под дерево, уложенная по всей площади, за исключением ванной, туалета и балкона. Хотелось не дробить пространство разной отделкой, и ПВХ отлично подошел по качеству и износостойкости.

В ванной комнате акцент сделан на зоне ванны. Стенка от пола до бортика и стена за ванной оформлены керамогранитом с геометрическим рисунком в спокойных тонах. Чтобы не спорить с ним, для других стен и пола выбрали серый керамогранит.

В санузле песочный керамогранит на стене за унитазом сочетали со светлой бежевой краской и керамогранитом под терраццо на полу.

Мебель и хранение
У хозяев было четкое понимание, сколько вещей им нужно хранить, и планировать лишние шкафы они не хотели. Поэтому, как комментирует сама дизайнер, систем хранения не много, но достаточно для конкретного случая. В прихожей — шкаф под потолок, где в торце спроектирована банкетка и крючки для повседневной верхней одежды. Торец — у входной двери, поэтому такое решение удобно.

В спальне — трехстворчатый шкаф из ИКЕА. Также тут оборудовано рабочее место для супруги. Вместо кресла и торшера в будущем может встать детская кроватка.

В гостиной — тумба под телевизор для разных мелочей и документов, а также шкаф с открытыми и закрытыми полками в нише рядом со вторым рабочим местом (для супруга).

Кухня линейная. Шкафы не стали делать под потолок, здесь самое необходимое, предусмотрена нужная техника, включая встроенные духовку, микроволновку и посудомойку. Холодильник оставили отдельно стоящий. Вместо обеденного стола — полубарная стойка.

В ванной комнате — тумба под раковину. За шторкой ванны скрыты навесные полочки для гигиенических принадлежностей. Стиральная машина установлена напротив раковины, ее не стали прятать. В санузле — небольшой шкаф над инсталляцией унитаза, где скрыт доступ к коммуникациям, под ним полочка для мелочей.
Освещение
Хозяева не стремились сделать больше разных сценариев освещения. Общий свет — треки и встроенные светильники. Местный — там, где в этом есть необходимость: в спальне у кровати в виде подвеса с бумажным абажуром и торшер в углу рядом с креслом, в кухне-гостиной над барной стойкой в виде подвесов со стеклянными плафонами и настольные лампы у рабочих мест.

Евгения Аборина Дизайнер, автор проекта
Сам интерьер достаточно сдержанный, основные цвета в нем — монохромные оттенки и дерево, но также есть акценты в виде оттенков зелени, различных орнаментов и материалов, как, например, металлический фартук в зоне кухни. У меня такая цветовая гамма вызывает ассоциации с природой в лесах на севере Петербурга или даже в Финляндии: мох, камни, насыщенного оттенка дерево, приглушенные тона, которые можно увидеть в дождливую или туманную погоду. Не стояло задачи воспроизвести определенный стиль в интерьере. И, вообще, на мой профессиональный взгляд, это и не всегда требуется. Достаточно создать гармоничное пространство, соответствующее требованиям заказчиков, а не обозначить интерьер определенным стилем.
11 фото

Кухня-гостиная

Кухня-гостиная

Прихожая

Дверь в санузел

Спальня

Спальня

Спальня

Спальня

Ванная комната

Ванная комната

Ванная комната
Как квартира выглядела до ремонта
15 фото

Кухня

Кухня

Кухня

Кухня

Гостиная

Гостиная

Спальня

Прихожая

Прихожая

Прихожая

Прихожая

Прихожая

Туалет

Туалет

Ванная комната Редакция предупреждает, что в соответствии с Жилищным кодексом РФ требуется согласование проводимых переустройств и перепланировок.

Смотреть перепланировку

Анастасия Дубровина

Андрей Семенов Маленькие квартиры Современный стиль Зеленый цвет