Спокойные цвета, сочетание бежевого и голубого напоминают о морском стиле интерьера.
Заказчики и задачи
Этой квартирой в одном из столичных жилых комплексов владеет молодая семейная пара. Хозяева — увлеченные люди. Среди их хобби: дайвинг и другой активный отдых, просмотр фильмов, чтение книг. Они гостеприимные: любят принимать друзей и родственников, которые нередко остаются на ночь.
Обустройством интерьера занимались Ксения Блохина и Инна Маркова, и главным пожеланием к оформлению были красота и удобство, без бутафории, излишней напыщенности и максимализма. С функциональной точки зрения было важно сохранить две изолированные комнаты и предусмотреть дополнительное спальное место на кухне.

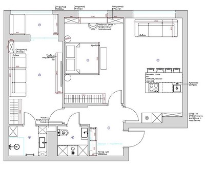
Перепланировка
Изначальная планировка — две комнаты, большая кухня, два санузла, балкон. Значительных изменений не вносили. Убрали стандартный подоконный блок на балконе, заменив его раздвижной стеклянной перегородкой. А также немного расширили санузлы за счет коридора и гостиной. Расширение подразумевало использование строительных блоков для перегородок меньшей толщины, так что фактически границы жилой зоны не изменились за счет мокрой, объясняют дизайнеры.

Отделка
Для отделки выбрали практичные материалы, но и учитывали их эстетику. Рабочая зона кухни выложена керамогранитом с необычным рисунком, причем его «завели» и на стены, чтобы усилить практичность и долговечность ремонта. В пространстве «второй гостиной» — инженерная доска. Стены окрашены и дополнены молдингами, одна из стен — 3D-панели под дерево.

В спальне и гостиной для пола также выбрали инженерную доску, стены покрасили. В спальне использовали для акцента окрашенные 3D-панели, а в гостиной, кроме панелей, еще и зеркальное полотно для визуального увеличения пространства.
В прихожей на полу уложен керамогранит, часть стен — также в панелях под дерево, это ламинированное покрытие, как и на кухне, такой выбор сделали в целях практичности. Остальные стены окрашены.

В ванной комнате скомбинировали два вида керамогранита: фоновый бежевый, а также акцентный с рисунком, который разместили в зоне душа и у раковины. Керамогранит с декором украшает интерьер и отменяет необходимость в большом количестве аксессуаров.

В маленьким санузле — фоновый керамогранит, чтобы не перегружать небольшое пространство рисунками и фактурами.
Системы хранения
Дизайнеры предусмотрели два шкафа для вещей: в спальне и гостиной. Для коллекции книг хозяев — система хранения в спальне, это стеллажи с открытыми и закрытыми полками, стоящие по обе стороны от окна и разделенные рабочим столом.

Для разных мелочей — тумба под ТВ в гостиной, в прихожей — комод. Для верхней одежды есть крючки.
Кухню визуально и функционально разделили на две части. Первая — высокие шкафы до потолка с местом для хранения и встроенной техникой, а также витриной для посуды. Вторая — остров с барной стойкой, на острове расположена варочная панель и мойка, внутри есть ящики для хранения. Барная стойка — выше, чем рабочая поверхность острова, что не только удобно, но и эстетично, из зоны отдыха не видно возможной грязной посуды.

В малом санузле — система хранения со встроенным прачечным блоком. В душевой — тумба под раковину и полки в нише у зеркала для разных мелочей.

Освещение
Общее освещение решено точечными, встроенными светильниками и треками. Стилистика приборов — подчеркнуто современная и функциональная, ничего лишнего. Есть, конечно, и местные сценарии света, например, подвесы по обеим сторонам кровати и бра в спальне, торшер в зоне отдыха на кухне, бра у зеркала в санузле. Продуманы и скрытые подсветки: зеркала в прихожей и ванной комнате, под тумбой в гостиной.

Ксения Блохина и Инна Маркова Дизайнеры, авторы проекта
В каждом комнате присутствует любимый сине-голубой цвет владельцев. Он и объединяет всю квартиру. В кухне — наиболее чистые и яркие цвета: белый, серый. Для акцента использовали черный, синий. Цвет темного дерева на стене отделяет зону отдыха, но повторяется в отделке внутренней части стеклянного шкафа. В спальне — спокойная палитра, располагающая ко сну. Бежевый цвет стен и пол ассоциируется с песочным пляжем. В гостиной цвета самые насыщенные и теплые: охра, коричневый, бирюзовый, желтый. Акцентное розовое кресло появилось спонтанно и очень понравилось хозяйке. Поддержали его розовыми подушками и ковром.
15 фото

Гостиная

Гостиная

Кухня

Кухня

Кухня

Кухня

Кухня

Спальня

Спальня

Спальня

Спальня

Спальня

Душевая

Душевая

Санузел Редакция предупреждает, что в соответствии с Жилищным кодексом РФ требуется согласование проводимых переустройств и перепланировок.

Смотреть перепланировку

Анастасия Дубровина

Константин Малюта

Лиза Эшва Современный стиль Бежевый цвет