Архитектор Татьяна Левина оформила две одинаковых квартиры по принципам китайского учения о единстве и борьбе противоположностей: мужское и женское, инь и ян — как две половинки одного целого. Посмотрите, как выглядит мужская сторона
Кухня-гостиная, фрагмент. В гостиной планировка и мебель спроектированы так, что граница между кухней и гостиной растворяется, это единое пространство.
Общие параметры
Тип недвижимости: квартира-новостройка
Где находится: Москва, Пресня Сити
Метраж: 49 м2
Стиль: современный
Цветовое решение: черно-белый монохром + теплый цвет охры
Основная идея проекта: квартира под сдачу, удобная для всех
Автор проекта: архитектор Татьяна Левина, архитектурное бюро Proektor, т. +7 (495) 120-31-77, levina@proektor.biz, www.proektor.biz
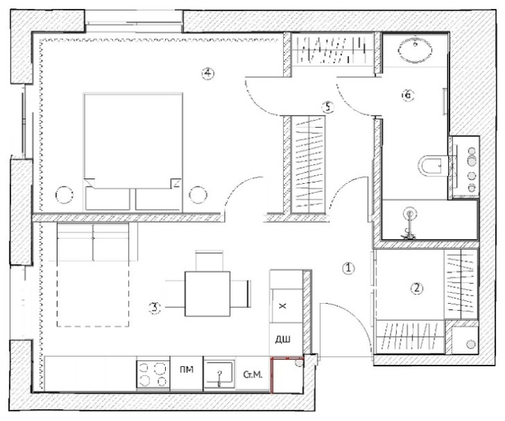
«Мы сделали семь вариантов планировок, но когда появилась круговая, стало ясно, что она единственно правильная»
Обычно предложения оформить интерьер по фэншуй и другим восточным принципам, которые российскому человеку непонятны, но интересны, исходят от заказчика, но в данном конкретном случае идею предложила автор проекта Татьяна Левина. Давние клиенты купили две одинаковых квартиры в ЖК «Пресня», чтобы сдавать их в аренду, и она подумала, почему бы не оформить их как две половинки единого целого. Мужское и женское, иль и ян, активность и покой. Интересная задача.

Кухня-гостиная, фрагмент. В гостиной и спальне используются гипсовые 3Д-панели, Artpole.
Сначала нужно было определиться с планировкой. Прежде чем остановиться на нынешней, команда бюро Proektor, которым руководит Татьяна Левина, сделало семь вариантов. Лучшим оказался тот, который предполагал круговое движение по квартире. Чтобы прийти к этому решению, архитекторы представляли себя ее жильцами. Вот я проснулся, куда я иду? В гардеробную, оттуда в ванную комнату. Если я живу не один, важно, чтобы я не разбудил домашних. Итоговая планировка, как считают авторы проекта, подойдет для всех типов жильцов — с детьми и без детей.

Кухня-гостиная. Cтол и стулья, Dg-Home.

Кухня-гостиная, фрагмент.
«У меня правило, — объясняет Татьяна Левина, — мы делаем для клиента минимум три планировки. Но на первую встречу приносим не больше семи. В среднем, как правило, мы даем пять вариантов и потом из них собираем один или два. Больше семи вариантов клиенту просто трудно переварить, тут как в немецкой пословице: „если ты имеешь выбор — имеешь проблему“».

Кухня, фрагмент.
Следуя разработанной концепции, Татьяна сделала интерьер одной квартиры «мужским», а второй — «женским». В первом — жесткость, четкие линии, упорядоченность, монохром с редкими цветными акцентами (рыжие стулья олицетворяют тепло и солнце — элементы мужского начала). Во втором — мягкость, плавные линии, бежевые тона без резких контрастов.

Вид из прихожей на кухню-гостиную.


Квартиры были закончены одновременно и почти сразу же были сданы. На первую, мужскую, выстроилась очередь. О чем это говорит? Не обязательно о том, что у нас маскулинное общество. Возможно, москвичи просто устали от непредсказуемости завтрашнего дня, поэтому им нравится все прямолинейное, четкое, понятное. И китайская философия тут совершенно не при чем.

Спальня. Кровать, Ideal Beds. Плед, Design Boom.

Спальня, фрагмент. Кровать, Ideal Beds.

Прихожая, фрагмент. В гардеробной для верхней одежды установили откатную зеркальную дверь. Очень красиво и функционально.

Гардеробная для верхней одежды в прихожей.

Ванная комната, фрагмент. Керамогранит под дерево и керамогранит с фактурой камня в качестве компаньона. Сантехника, am.pm. Аксессуары, Moon Stories.

План квартиры. Проект Татьяны Левиной.Татьяна Филиппова