Дизайнер Мария Макарова оформила небольшую квартиру в одном из самых красивых домов Москвы для заказчицы, которая большую часть времени живет за городом
После перепланировки кухня однокомнатной квартиры превратилась в небольшую кухню-гостиную. Люстра Arteriors Home.
ОБЩИЕ ПАРАМЕТРЫ
Тип недвижимости: квартира в Доме Полярников 1936 г. постройки
Где находится: Москва, Никитский бульвар, д.9
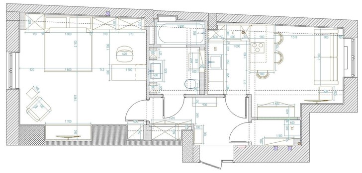
Метраж: 50 м2
Стиль: современная классика
Основная идея проекта: квартира pied-a-terre (собственный номер-люкс в центре города на время визитов)
Цветовая гамма: спокойные светлые цвета в отделке, насыщенные цвета в мебели, ручная роспись как акцент
Автор проекта: Мария Макарова, т. +7 (916) 251-44-84, diamond17@yandex.ru

Кухня-гостиная, фрагмент. Два светильника-шара на подоконнике создают симметрию.

Кухня-гостиная, фрагмент. Окно выходит на Никитский бульвар.
«Дом полярников» в начале Никитского бульвара — один из самых красивых сталинских домов в Москве. Он был построен во второй половине 1930-х годов, когда полярники были примерно тем же, чем в 1970-х стали космонавты. В разные годы в этом доме жили девять героев Советского Союза. Ну а для фанатов романа «Мастер и Маргарита», возможно, важнее, что здесь жила Елена Сергеевна Булгакова, с которой Булгаков писал образ верной подруги Мастера.

Кухня-гостиная, фрагмент. Кухня, John Green. Столешницы и фартук из мрамора Calacatta Gold сделаны на заказ, компания Enot Stone. Люстра и подвесные светильники над островом, Arteriors Home.
Хозяйка квартиры живет за городом, а эту однушку в легендарном московском доме приобрела, чтобы превратить ее в pied-a-terre («собственный номер-люкс в центре города на время визитов»). «У нас не было задачи прямо и „в лоб“ транслировать всю значимость „Дома полярников“, но было желание сохранить ощущение парадности в квартире», — говорит дизайнер Мария Макарова.
За парадность отвечают высота потолков, гипсовая лепнина, высокие двери со стеклянными фрамугами, выложенная золотой поталью ниша в спальне, панели со шпоном ореха в ванной и ручные росписи в кухне-гостиной, где кухонный ряд сделали максимально незаметным.

Кухонный ряд сделан максимально незаметным — роспись маскирует кухонные колонны, за которыми прячутся коммуникации.

Кухня, фрагмент.

Кухня, фрагмент.
Изначально квартира была однокомнатной, с большой кухней и холлом-прихожей. В процессе демонтажа удалось обнаружить сразу несколько «сокровищ»: второй работающий стояк (это позволило сделать отдельную постирочную), большую нишу на кухне, в которую «встал» старинный голландский буфет, и маленькую нишу в спальне, приспособленную под скрытое хранение.

Кухня-гостиная, фрагмент. Солидный, респектабельный голландский буфет напоминает о немалом возрасте дома и его богатой истории.
Голландский буфет, прошедший через длительную транспортировку и реставрацию, — самый интересный предмет в квартире. Он сразу притягивает к себе внимание, но несмотря на свой солидный вид и немалые размеры, не перегружает скромное по размерам помещение, поскольку стоит в нише.

Кухня-гостиная, фрагмент.

Буфет в гостиной.
Спальня максимально приближена к номеру в пятизвездочном отеле. Золотая поталь в нише для телевизора сверкает так, что кажется, будто в ней всегда горит свет. Стена за изголовьем кровати тоже оформлена ручной росписью: этот декоративный прием Мария сделала сквозным, он повторяется во всех помещениях. Окно, выходящее на бульвар, из-за особенностей фасада получилось узким и в большой комнате смотрелось несколько несуразно. Шторы во всю стену в скрытом карнизе позволили избавиться от этого дефекта.

Спальня. Мебель сделана на заказ. Текстиль, Togas. Краска, Majestic. Гипсовая лепнина, «Фабрика лепнины».

Спальня, фрагмент. Письменный стол с мраморной вставкой в столешнице сделан на заказ.

Спальня, фрагмент. Комод, Dantone Home. Бра возле ниши, Regina Andrews.

Вид на спальню из коридора.

Прихожая, фрагмент. Консоль, Dantone Home. Подвесной светильник, Arteriors Home. Двери сделаны на заказ.

Прихожая. Консоль, Dantone Home. Двери и встроенный шкаф сделаны на заказ. Пуф, Mde House. Подвесной светильник, Arteriors Home. Гипсовая лепнина, «Фабрика лепнины». Краска, Majestic.
В ванной комнате после ремонта образовался альков, куда встала встроенная ванна. В зеркале над консолью с раковиной отражается декоративная роспись на противоположной стене. Она настолько реалистично выполнена, что гости, побывавшие в квартире, не сразу понимали, что объем нарисован. «Это наш „очаг папы Карло“», — шутит Мария. Плитка на стене здесь не нарисованная, а настоящая, но ручная работа все равно присутствует: «золотые» детали покрывали вручную специальной краской в мастерской.

Ванная комната. Консоль с раковиной Kerasan Bentley. Ванна Jacob Delafon. Панели со шпоном ореха и стеллажи по бокам от консоли сделаны на заказ в Marko Studio. Плитка в зоне ванной Kerama Marazzi. На стенах декоративная штукатурка.

Ванная комната, фрагмент. В зеркале над над консолью с раковиной отражается декоративная роспись на противоположной стене.

Квартира 50 кв. метров в «Доме Порярников» в Москве. Проект Марии Макаровой.Татьяна Филиппова