Сделать все черным — так звучало главное пожелание семейной пары, поручившей проект своей новой квартиры дизайнеру Ольге Копосовой
Кухня-гостиная. Кухня выполнена по эскизам дизайнера. Стол и стулья, ИКЕА. Техника, Neff. На полу — паркетная доска, Polar Wood.
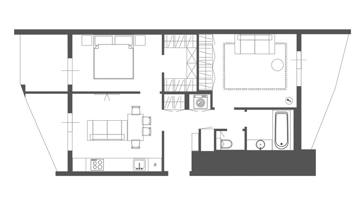
ПАРАМЕТРЫ ОБЪЕКТА
-
Тип недвижимости: квартира в новостройке
-
Где находится: Московская обл., пос. Развилка, ЖК «Римский»
-
Метраж: 55 м2
-
Стиль: современный
-
Основная идея проекта: сделать функциональное пространство в темной цветовой гамме
-
Цветовая гамма: темная
-
Авторы проекта: дизайнер Ольга Копосова, @olyakoposova, o.kopos@yandex.ru

Подвесной светильник, Mantra.
«Заказчики проекта — молодая семейная пара с маленькой дочкой. Основным пожеланием была темная цветовая гамма. Черный — любимый цвет хозяйки квартиры. Она работает сомелье и много путешествует с семьей, а темные интерьеры ассоциируются у нее с любимым делом и отелями», — рассказывает Ольга Копосова.

Бокалы, Zara Home. Ваза, Ceramum.

Вазы, Ceramum.
«Квартира была со свободной планировкой. По полу были выведены мокрые зоны, а ровно по центру пространства располагалась металлическая опора, которую нельзя было убрать. В итоге вся планировка сформировалась вокруг этой опоры: мы окружили ее встроенными шкафами, тем самым решили вопрос с хранением. Кроме того, застройщик сдал квартиру без стяжки пола, что позволило сделать во всех комнатах внутрипольные конвекторы и сделать окна во всю стену, избавившись от подоконных блоков».

Диван, «Аскона».
«Несмотря на то, что все стены заказчики просили сделать темными, все-таки удалось уговорить их выкрасить участки рядом с окнами в светло-серый, чтобы в квартире было больше света. Из-за несущей опоры шкафы в коридоре не получилось выстроить в одну линию, поэтому на этапе выбора краски искали цвет максимально подходящий к фасадам шкафов и кухни».

Фрагмент прихожей. На полу — плитка, Kerama Marazzi. Зеркало, ИКЕА.
«На самом деле, пожелание „сделать все черным“ в некоторой степени упростило выбор отделочных материалов и мебели. Так, к примеру, мы взяли черные межкомнатные двери и кухонные шкафы с самыми темными фасадами, которые производит фабрика. Кухню дополнили черной столешницей и фартуком».

Спальня. На стенах — декоративная краска Loft original, ID. Плинтус, Orac Decor. Кровать выполнена по эскизам дизайнера. Покрывало и прикроватный столик, ИКЕА. Декоративные подушки, Enere.it. Керамика, Ceramum.

Прикроватный столик, ИКЕА. Подвесные светильники, Odeon Light. Бра, Maytoni. Картина, Frameless.art. Часы Depst_store, Papier Atres.
«В спальне отдельного внимания заслуживает картина от Frameless.art. Небольшой рельеф изображения гармонично перекликается с фактурой декоративной краски под бетон. Кровать мы также обили самой темной тканью, которую удалось найти».

Детская комната. Диван, Divan.ru. Обои, Affresco. Шкаф, ИКЕА. Декоративные подушки, Enere.it.
«В ванной комнате мы организовали нишу для шампуней вдоль всей стены. Для этого пришлось пожертвовать 15 сантиметрами площади. Но это того стоило! В нишу встроили подсветку для создания более интимной атмосферы».

Ванная комната. Керамогранит, Atlas Concorde и Kerama Marazzi. Стекло, Wassercraft. Зеркальный шкаф выполнен по эскизу дизайнера.

Фрагмент ванной комнаты. Смеситель, Wassercraft. Тумба и столешница, ИКЕА. Раковина, Santiline. Ваза, Ceramum. Дозатор и стакан, Zara Home.

Санузел. Унитаз, Bocchi. Зеркало, Zara Home.

Квартира в Подмосковье. Проект Ольги Копосовой.