Главное украшение этой небольшой квартиры — произведения искусства из коллекции заказчиков. Дизайнер Евгения Самарина рассказывает, как создавался интерьер
Гостиная, фрагмент. Огромное окно выходит на парк.

Автор проекта, дизайнер Евгения Самарина.
ОБЩИЕ ПАРАМЕТРЫ
Тип недвижимости: двухкомнатная квартира в доме сталинской эпохи
Где находится: на северо-западе Москвы
Метраж: 60 кв. м
Основная идея проекта: светлый дом, полный искусства.
Цветовая гамма: белый + серый + дерево
Автор проекта: дизайнер Евгения Самарина, т. +7 (903) 662-66-99

Гостиная, фрагмент. Стол и стулья, винтаж. Диван, Eichholtz, переехал из предыдущей квартиры заказчиков. Столик Twins, Artifort. Люстра, французский фонарь, винтаж, тоже из предыдущей квартиры заказчиков. Над диваном работы Арона Буха.
Это первая собственная совместная квартира заказчиков — ранее они предпочитали жить в съемных квартирах большей площади. Хозяева — страстные коллекционеры искусства и винтажа, и главной задачей было разместить в квартире максимальное количество искусства, не перегрузив интерьер. Но все-таки пришлось сформировать определенный запасник из неповешенных работ, на тот случай, если им захочется сменить «экспозицию».
Первоначальная планировка предполагала изолированную кухню и две комнаты. Пока у владельцев квартиры нет детей, но в перспективе они могут появиться, поэтому еще одной задачей было предусмотреть возможность детской.

Вид из кухни на гостиную.
Моим главным желанием при разработке планировки было открыть визуальную ось на огромные окна с выходом на балкон (оттуда красивый вид на парк), а также объединить кухню с общим пространством.

Гостиная, фрагмент. Над диваном работы Арона Буха.
Отделить зону прихожей от гостиной я решила двумя кубами двойного назначения: шкафы для верхней одежды со стороны прихожей и красивые стеллажи для книг и предметов искусства со стороны гостиной. Кубы симметричные, они зонируют пространство, а также поддерживают ось, ведущую на балкон.

Гостиная, фрагмент. Симметричные деревянные шкафы, отделяющие гостиную от прихожей, изготовлены на заказ.
Главной задачей было разместить в комнатах максимальное количество произведений искусства, не перегрузив интерьер

Гостиная, фрагмент.

Гостиная, фрагмент.
Окно кухни тоже выходит на парк, поэтому мне захотелось организовать возле него небольшую полубарную зону для завтраков или вечерних легких посиделок. Это стало любимым местом хозяйки дома, уходить из кухни ей теперь не хочется.

Кухня. Стулья, Deep House, переобиты в ткань от Dedar. Над плитой работа Оскара Рабина. На соседней стене — каслинское литье.

Кухня, фрагмент. Из окна перед барной стойкой открывается красивый вид на парк.

Кухня, фрагмент.
Нестандартным предложением было разделить одну из комнат на две зоны: кабинет (который в будущем может стать детской с окном) и спальню. Между ними мы поставили большие раздвижные двери с матовыми стеклами. Обычно они открыты, но у хозяев всегда есть возможность их закрыть и уединиться для работы в кабинете. А когда дверь в кабинет открыта со стороны гостиной, квартира кажется максимально большой. К сожалению, я не могу, как бы мне ни хотелось, назвать это анфиладой, ведь мне пришлось пожертвовать соосностью проемов ради размещения необходимых предметов.

Спальня, фрагмент. Кровать, Dantone Home. Прикроватные комоды, винтаж. Бра, винтаж, Simon&Schelle, 1980 г., Германия. Над изголовьем работа Эрнста Неизвестного.
Учитывая, что у заказчиков практически все искусство достаточно яркое и акцентное, мне захотелось одеть квартиру в белый цвет, добавив акценты в оттенках дерева и в керамограните, который лежит на полу в прихожей и ванной.

Вид из кабинета на спальню. Кровать, Danton Home. Ковер, Dovlet House. На стене работа Олега Целкова «Бильярдисты».
«В огромную картину Олега Целкова „Бильярдисты“, купленную хозяевами на аукционе еще при жизни художника, я влюбилась с первого взгляда. Она нереально красивая. И так совпало, что зеленый — мой любимый цвет!»

Спальня. Винтажный тумбы были найдены на «Авито».
Нам хотелось сохранить обаяние советского ретро, поэтому основные предметы интерьера — это винтаж с характером той эпохи. Дополнительной задачей было вписать в интерьер предметы из предыдущей квартиры клиентов (диван и люстру, которая висит в гостиной).

Кабинет. Стол, Dantone Home. Бра, Catellani & Smith. Ковер, Dovlet House. Над столом работа Егора Острова. По верхней обвязке развешены работы Ильи Кабакова из серии «Раскраски».

Вид из кабинета на обеденную зону.
Почти все винтажные предметы найдены случайно, как, например, прикроватные комоды. Долгое время заказчики жили без них (как временное решение в спальне стояли небольшие столики из предыдущей квартиры). Но нам определенно хотелось подобрать именно комоды, как дополнительное место хранения, и именно винтажные. В какой-то момент я почти сдалась, устав мониторить десятки мест в поисках нужных предметов, и даже предложила сделать такие же на заказ. Но хозяин сказал твердое нет: «Хочу настоящий винтаж». И буквально через пару дней я наткнулась на «Авито» на эти два чудесных комода с идеальными параметрами. Они были согласованы за пять минут, осталось лишь привести их в порядок.

Прихожая. Винтажная банкетка куплена на «Авито» и переобита в бархат Misia. Винтажный потолочный светильник, factory 232. Над банкеткой работа Андрея Гросицкого. На соседней стене графика Олега Целкова.
Для меня в целом проект получился собранным, цельным и «для моих заказчиков». Квартира приносит им большое удовольствие, в ней много деталей, которые радуют глаз и создают их личный комфорт. Главное для меня — это их слова благодарности и моя благодарность им за то, что полностью мне доверились.

Ванная комната. Бра, Veca, винтаж, 1970-e годы.

Ванная комната, фрагмент. На стене работа Андрея Гросицкого.

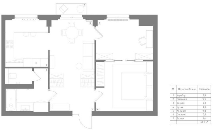
План квартиры 60 кв. м. Проект Евгении Самариной.Татьяна Филиппова