Понедельник, 3 ноября, 2025

Квартира для девушки в Санкт-Петербурге 39 м²

Это интересно

Первая квартира — это всегда эксперимент, в данном случае — успешный. После съемки заказчица призналась дизайнеру Ольге Копосовой: «это ведь именно то, что я изначально хотела, но не сразу поняла!»

Кухня-гостиная. Корпусная мебель и диван сделаны по эскизам дизайнера. Журнальный столик, ominimalism. Стулья, винтаж.

ОБЩИЕ ПАРАМЕТРЫ

Тип недвижимости: квартира в новом доме 2021 года

Где находится: Санкт-Петербург, Лиговский проспект, ЖК «Второй квартал»

Метраж: 39 м2

Стиль: современный

Цветовая гамма: белые стены, натуральные фактуры

Автор проекта: дизайнер Ольга Копосова, т. +7 (953) 373-18-24, o.kopos@yandex.ru

Квартира для девушки в Санкт-Петербурге 39 м²

Гостиная, фрагмент. Кварцвиниловое покрытие, Fine Floor. Плинтус, Orac Decor. На стенах краска Joker, Tikkurilla.

Квартира небольшой площади, но с очень удачной планировкой, не совсем типичной для однокомнатной: в гостиной целых три окна. Дизайнер Ольга Колосова предложила не закрывать их шторами, а, наоборот, подчеркнуть. Окна выходят на юго-восток, поэтому до обеда солнце, проходя сквозь жалюзи, бросает на стены и мебель красивые тени.

Квартира для девушки в Санкт-Петербурге 39 м²

Кухня-гостиная, фрагмент. Корпусная мебель и диван сделаны по эскизам дизайнера. Над диваном диптих Ольги Павловой. Журнальный столик, ominimalism. Декор, blange_decor.

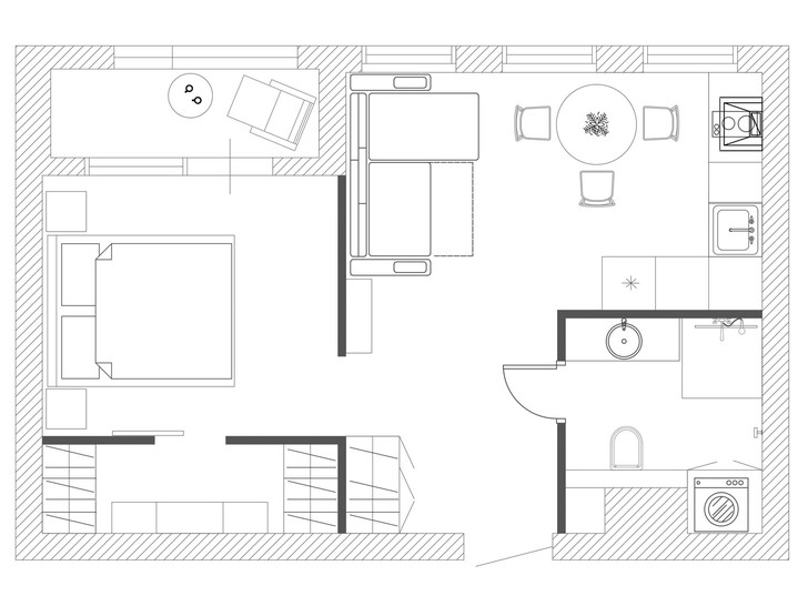
Застройщик сдавал квартиру со свободной планировкой, внутри квартиры не было стен, только обозначение мокрых зон. Это позволило без труда поставить стены согласно пожеланиям заказчицы: выстроили гардеробную, хоть и скромных размеров, оставили большое пространство для кухни-гостиной.

Квартира для девушки в Санкт-Петербурге 39 м²

Кухня сделана на заказ. Стулья, винтаж. На столе керамика Марии Шильниковой.

Все три окна выходят на солнечную сторону, до обеда солнце оставляет красивые тени, проходя через жалюзи

Квартира для девушки в Санкт-Петербурге 39 м²

Кухня, фрагмент. Над смесителем фоторабота Александра Курлыгина.

Квартира для девушки в Санкт-Петербурге 39 м²

Кухня-гостиная, фрагмент. Пол во всей квартире сделали единым покрытием, в том числе и на кухне. Такой прием визуально не делит пространство на части. Вместо дорогостоящего скрытого плинтуса сделали обычный невысокий из дюрополимера и выкрасили его в цвет стен.

Хозяйка квартиры молода, это ее первая квартира и первый масштабный ремонт. Как обычно бывает в таких случаях, ей было сложно определиться сразу, чего именно хочется видеть в квартире. «Нас кидало из стороны в сторону от ярко-вишневых стульев и черной кухни до белых стен и мебели пастельных тонов, — вспоминает дизайнер. — Но чем больше мы общались, тем понятнее мне становилось видение заказчицы, ее желания».

Квартира для девушки в Санкт-Петербурге 39 м²

Спальня. Кровать сделана на заказ по эскизам дизайнера. Прикроватный столик, Kare Design. Бра, Mantra. На стене работа Инги Павловой. Постельное белье, H&M Home. Плед, Artefacto. Ковер, Arte de vivre. Подушки сшиты в Мастерской Анжелики Долгачевой.

В итоге была выбрана концепция и цветовая гамма, как нельзя лучше отражающие хозяйку квартиры. После интерьерной съемки она призналась: «это ведь именно то, что я изначально хотела, но не сразу поняла!»

Квартира для девушки в Санкт-Петербурге 39 м²

Спальня, фрагмент. Подвесные светильники, Aromas del Сampo. Бра, Mantra. На стене работа Инги Павловой.

Интерьер получился гораздо лучше, чем был по проекту, потому что хозяйка квартиры принимала непосредственное участие в его создании, считает дизайнер. Пока в квартире шел ремонт, она подбирала декор для открытых полок, знакомилась с работами петербургских художников, так как ей хотелось сделать основными акцентами интерьера произведения искусства. Да и сам Петербург внес в интерьер свою лепту. Дом расположен в центре города, рядом много архитектурных шедевров — такое соседство располагает к творчеству.

Квартира для девушки в Санкт-Петербурге 39 м²

Ванная комната, фрагмент. Сантехника, Wassercraft.

Квартира для девушки в Санкт-Петербурге 39 м²

Квартира 39 м² в Санкт-Петербурге. Проект Ольги Копосовой.

Новое на сайте

12 дачных хитростей на осень: салат под снегом, чеснок в два яруса, зимние домики и другие садовые чудеса

Осень на даче — это не про прощание, а про волшебство. Земля еще теплая, воздух пахнет листвой и дымком,...

Похожие статьи

Если вы хотите получать уведомления на свой E-mail о появлении новых статей, то рекомендуем вам чуть ниже ввести свой электронный почтовый адрес.