Дизайнер Анна Путилова оформила интерьеры двухуровневой квартиры-ячейки F в знаменитом доме Наркомфина— памятнике архитектуры конструктивизма 1920-х годов. Яркие цвета и современный дизайн поддержали историю этого необычного места
Подушки на диване с изображением авангардистских работ Василия Кандинского и Эль Лисицкого, Jules Pansu.
ОБЩИЕ ПАРАМЕТРЫ
Тип недвижимости: Квартира-ячейка F, дом Наркомфина
Где находится: Москва, Новинский бул., 25, корп. 1
Размер: 35,5 м2
Автор проекта: дизайнер Анна Путилова, студия «ИнтраДизайн»; т. +7(903)724-33-32; http://intradesign.ru
Дом, в котором находится эта квартира, — один из главных памятников жилой архитектуры конструктивизма. Он был построен в 1928–1930 годах по проекту архитекторов Моисея Гинзбурга, Игнатия Милиниса и инженера Сергея Прохорова для работников Народного комиссариата финансов СССР. Воссозданием легендарного здания спустя 90 лет занималось архитектурное бюро, возглавляемое внуком Моисея Гинзбурга — Алексеем.
Главной инновацией в доме Наркомфина были так называемые квартиры-ячейки. Советские архитекторы хотели создать экономичный с точки зрения пространства и комфортный для проживания формат квартиры. Результатом их трудов стало появление шести типов квартир: А, В, С, D, E, F. Четыре из них — B, D, E, F — были двухуровневыми.

«Задуманный в гармонии с окружающей средой, дом Наркомфина спроектирован с системой двойного проветривания и двусторонним светом для всех без исключения квартир. Пропорции комнат таковы, что в каждой из них видно небо, а хорошая инсоляция в сочетании с двухуровневостью позволяет избежать одномерности восприятия. Нашей студии „ИнтраДизайн“ посчастливилось поработать с двухъярусной ячейкой типа F», — рассказывает дизайнер Анна Путилова.

Диван выполнен по эскизам автора проекта. Комод в гостиной и столик у кресла создал дизайнер Дмитрий Самыгин.
Дизайнер черпала вдохновение в истории этого места, архитектуре конструктивизма и русском авангарде. В интерьерах эти мотивы присутствуют в виде современного дизайна, геометрических формах и ярких красках. Анна использовала палитру, разработанную в Баухаусе, основными цветами который были желтый, красный, черный и серый, а дополнительными — коричневый, зеленый, синий.

Подушка на диване с принтом работы Василия Кандинского, Jules Pansu. Под лестницей разместили шкафы и встроенный холодильник. Обеденный стол, дизайнер Дмитрий Самыгин.
«Это современное прочтение эпохи конструктивизма и авангарда. Главным вдохновением при создании квартиры-ячейки F стали идеи школы ВХУТЕМАС и Баухауса»

Владелец этой квартиры был категорически против старой, подержанной (винтажной) мебели, но при этом просил отразить в обстановке дух эпохи конструктивизма. В итоге, вся мебель здесь новая, современная, но подобрана в духе того времени и частично изготовлена на заказ по эскизам автора проекта.
«Мы создали чистое, не загроможденное пространство, где все шкафы, холодильник, раковина для умывания и шкаф в спальне спрятаны за панелями и зеркальными полотнами. Благодаря двум уровням, огромным окнам и высоте потолка 3,5 метра у нас получилось создать ощущение простора на маленькой площади», — рассказывает Анна Путилова.

Комод в гостиной и столик, дизайнер Дмитрий Самыгин.

Лестница между уровняит квартиры-ясейки типа F.
Центром притяжения в гостиной стало большое панно, напоминающее абстрактные картины русского авангарда. На самом деле это ткань с мотивами японских кимоно, которую дизайнер натянула на подрамник и обрамила в черный лаковый багет — ну чем не авангардное произведение искусства!

Панно из ткани Japon, Gaston y Daniela. Фарфоровый пакет молока, Studio Klimenkoff.
В спальне Анна обращается к творчеству художника Александра Дейнеки, который сам когда-то жил в доме Наркомфина, в такой же ячейке F, более 20 лет. Здесь он создал эскизы для мозаик станций метро «Маяковская» и «Новокузнецкая», написал картины «Будущие летчики» (1938), «Натурщица» (1936), «Оборона Севастополя» (1942) «Раздолье» (1944), «У моря» (1957). Над кроватью в спальне дизайнер повесила полотно с изображением работы Александра Дейнеки «Бег с препятствиями» (1958).
«Я связалась с наследниками художника, чтобы на законных правах получить лицензию с правом использования этого произведения. Получив согласие, мы воплотили идею в жизнь: на плотной ткани вышили копию картины и натянули полотно на деревянный подрамник», — рассказывает Анна.

Над изголовьем — полотно с изображением картины Александра Дейнеки «Бег с препятствиями» (1958). Светильники Decompose, Artemide, на тумбочках дополняют спортивную тематику, напоминая об олимпийском огне и спортивных достижениях СССР. Декоративные подушки в стилистике оп-арт, авторская коллекция Лоренцо Кастильо для Gastón y Daniela.

Спальня, деталь. Гардероб с зеркальными дверцами визуально увеличивает небольшое пространство спальни.

Два зеркальных полотна в спальне скрывают зону умывания с раковиной и гардероб.
В санузле на стене повесили отрисованную в духе 1920-х годов агитационную карту «Новая Москва», на которой отмечены 180 главных памятников конструктивизма в Москве. Над небольшой раковиной — круглое зеркало с рамой в оттенке красного, характерном для теории основных цветов, которую разрабатывали в школе ВХУТЕМАСа и в Баухаусе.

Карта, студия Baklažanas при поддержке Центра авангарда на Шаболовке.


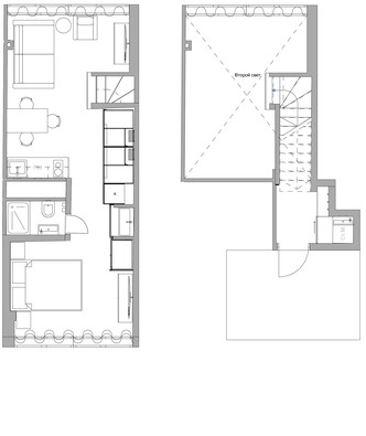
Объем ячейки F.

План квартиры с расстановкой мебели.

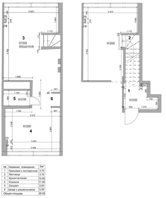
Обмерный план квартиры.Елена Игумнова