Терраса занимает в квартире 17 квадратных метров из общих 72. Посмотрите, как выглядит этот интерьер.
Заказчики и задачи
Эти апартаменты находятся в комплексе TriBeCa Apartments в центре Москвы и принадлежат паре преподавателей Британской высшей школы дизайна. Они обратились к дизайнерам Анне Клековкиной и Юлии Долголеевой из Studio DA с просьбой оформить квартиру так, чтобы она выглядела больше, чем есть на самом деле. Нужна была просторная кухня-гостиная, отдельная спальня со своей гардеробной, зона столовой для того, чтобы принимать гостей, и место для хранения книг.

Перепланировка
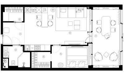
Изначальная площадь апартаментов — 76 квадратных метров, из которых 17 застройщик отвел на террасу. На остальном пространстве предстояло обустроить все нужные хозяевам зоны. Создание планировки упрощало то, что апартаменты — нежилое пространство, а значит, здесь менее строгие нормы, чем в жилых квартирах.
При входе выделили гардеробную для верхней одежды, сезонных вещей, а также санузел. Кухня-гостиная заняла большое центральное пространство. Кухню расположили параллельно, столовую решили организовать с помощью барной стойки, а зону гостиной — диван и ТВ напротив него — разместили у окна.

Из кухни-гостиной — выход на террасу. Приватный блок — спальню с примыкающей к ней гардеробной — выделили в дальней части апартаментов, изолировав от гостиной.
После возведения всех перегородок площадь уменьшилась на 4 квадрата.
Отделка
Для стен во всех зонах, исключая санузел, выбрали краску. Полы в кухней-гостиной, спальне с гардеробной и террасе оформили инженерной доской.

Для пола в прихожей и второй гардеробной выбрали микроцемент — практичный материал, который ложится без стыков, устойчивый к влажности и грязи. Видовую стену в прихожей — с входной дверью — оформили декоративной штукатуркой под бетон, которая сочетается с фактурой и цветом серого микроцемента.

Ту же штукатурку использовали для акцентной стены за изголовьем кровати в спальне. В кухне-гостиной решили сделать акцент на фартуке. Этот участок выложен клинкерным кирпичом, который для практичности закрыли стеклом.

В санузле скомбинировали несколько видов керамогранита. На стенах — под темный серый бетон. На полу — керамогранит той же коллекции, но более светлого серого оттенка. Душевая оформлена черным мозаичным керамогранитом.

Светлые оттенки, единое напольное покрытие в кухне-гостиной и спальне, единые фактуры и гамма входной зоны и санузла позволили визуально расширить пространство, но при этом избавиться от монотонности, которую могли бы создать похожие материалы.
Мебель и системы хранения
Две гардеробные полностью закрыли вопрос с местами для хранения в квартире и позволили отказаться от отдельно стоящих шкафов. Для мелких вещей предусмотрена тумба под телевизор в зоне гостиной, а для обширной библиотеки — два стеллажа, установленные в торцах террасы. В спальне — выдвижные ящики под кроватью.

Решение с параллельной планировкой кухни также позволило нивелировать утилитарность этой зоны. Основная рабочая часть с варочной поверхностью и мойкой располагается в нише. Нижние шкафы оформлены под светлое дерево, верхние — белые — вторят цвету стен. Массивная часть со встроенным холодильником, духовым шкафом и местами для хранения расположена напротив, фасады шкафов-колонн полностью белые, что позволяет «скрыть» кухонную зону на фоне светлых стен. Барная стойка оформлена тем же светлым деревом, что и нижние базы рабочей зоны. Также под столешницей расположен встроенный винный холодильник.

В санузле за хранение отвечает тумба под раковину, где скрыта и стиральная машина. А для разных мелочей предусмотрены полки-ниши и накладные полки в душевой.
Освещение
Для освещения использовали трековые светильники, которые позволили создать разные сценарии света, не только общее потолочное.

Так, например, один из треков на кухне спускается на стену в зоне барной стойки и выполняет функцию бра. Таким же образом реализовано освещение в спальне, где трек с потолка проведен по стене уже рядом с кроватью. В ванной комнате — встроенные влагозащищенные светильники. В зоне гостиной предусмотрели торшер у дивана и настольную лампу на тумбе напротив. На террасе треки выделяют две зоны: отдыха и дополнительную столовую.


Юлия Долголеева и Анна Клековкина, дизайн-бюро Studio DA Дизайнеры, авторы проекта
Работа с пространством и задачи, которые необходимо было решить при создании планировки и концепции, сподвигли нас максимально подчеркнуть геометрию, поэкспериментировать с материалами, светом и цветом. Визуальные приемы не только увеличивают пространство, но и придают выразительности всему интерьеру, а природная цветовая палитра добавляет уюта.
12 фото

Гостиная

Гостиная

Гостиная

Столовая

Столовая

Кухня

Спальня

Спальня

Терраса

Терраса

Санузел

Санузел Редакция предупреждает, что в соответствии с Жилищным кодексом РФ требуется согласование проводимых переустройств и перепланировок.

Смотреть перепланировку

Анастасия Дубровина

Ольга Шангина

Александра Пыленкова Современный стиль Светлые цвета