Яркие обои, восточные ковры и лепнина — студия интерьерного дизайна Balcon создала яркий, эклектичный интерьер для квартиры в старом доме на Тишинке
ОБЩИЕ ПАРАМЕТРЫ:
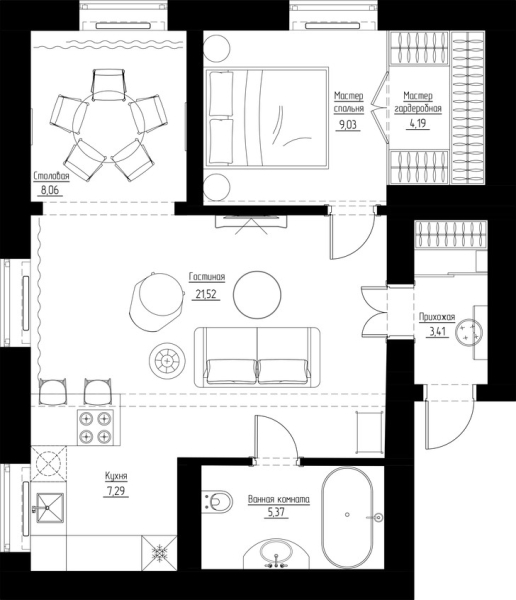
Тип недвижимости: квартира в старом доме
Где находится: Москва, Малый Тишинский переулок, дом 14-16
Метраж: 60 м2
Стиль: эклектика
Цветовая гамма: зеленый, бардовый, терракотовый
Авторы проекта: студия интерьерного дизайна Balcon, www.balcon.studio, @balcon.studio

К студии дизайна Balcon обратилась молодая женщина с просьбой переделать 60-метровую квартиру в старом доме в центре Москвы, которую она недавно купила. Она не хотела ломать существующие стены, поэтому было решено обойтись без кардинальной перепланировки. При этом автору проекта Ольге Лагодной удалось добиться, чтобы квартира получилась комфортной, функциональной и удобной для жизни. При спальне имеется гардеробная, спрятанная за зеркальными перегородками, в прихожей — много места для хранения, а в гостиной — камин.

Из прихожей через большие двухстворчатые двери вы сразу попадаете в просторную гостиную площадью более 20 кв. метров, которая соединяется с кухней и столовой большими открытыми проемами. Общая площадь этой зоны составляет порядка 35 кв. метров, поэтому квартира, несмотря на сравнительно небольшие размеры, ощущается просторной.

Хозяйка любит путешествовать и почти из каждой поездки привозит разные дизайнерские вещицы, которые органично вписываются в интерьер

Заказчица изначально была настроена на необычные решения, поэтому дизайнер не боялась смелых экспериментов. Она решила создать эклектичный интерьер, в котором классические детали, такие как лепнина, старые двери или темный паркет, сочетались бы с яркими красками и обоями с активными принтами. «Самое главное было, чтобы пространство получилось гармоничным: не перегруженным лишними деталями и вместе с тем наполненное и яркое», — говорит Ольга. — Цвет — основной прием в этой квартире, он делит пространство на зоны: столовую, гостиную и спальню».
Яркий тропический принт в прихожей, бордовый цвет в спальне (в него выкрашены как стены, так и потолок), зеленый — в столовой. А вот для гостиной выбрали более спокойную палитру: цвет слоновой кости. Лепнина во всех комнатах визуально объединяет пространства.

«Забавно, что раньше квартира принадлежала мужчине, у которого был брутальный темный лофт. Мы же сделали полную тому противоположность!»

Хозяйка квартиры любит путешествовать и почти из каждой поездки привозит разные дизайнерские вещицы. С ее легкой руки в интерьере появились пестрые ковры из Турции, Индии и Азербайджана, а сама она стала полноправным соавтором проекта — ведь предметы, бережно собираемые по всему миру, стали не только частью нового интерьера, но и придали ему особый, уникальный характер.



Несмотря на обилие ярких деталей обстановка квартиры выглядит гармонично. И заказчица, и студия BALCON довольны проделанной работой.


