Дизайнер Анна Майер адаптировала модный стиль джапанди для квартиры своих заказчиков — семейной пары с тремя детьми
Размеры гостиной позволяют в полной мере показать красоту паркета, в кухне внимание притягивают шпон ореха с красивым рисунком и природный камень.
ОБЩИЕ ПАРАМЕТРЫ
Тип недвижимости: квартира в новостройке
Где находится: Екатеринбург, ЖК «Нагорный»
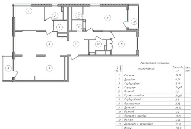
Метраж: 139 м2
Стиль: джапанди
Основная идея проекта: совместить скандинавскую практичность и японский минимализм
Цветовая гамма: светлые, натуральные оттенки
Автор проекта: дизайнер Анна Майер, studia-dar@mail.ru, anna.majer.91@mail.ru, т. +7 (952) 737-95-99
Рассказ об этом проекте стоит начать с того, что такое джапанди. Это современный стиль, соединяющий японские и скандинавские традиции, минимализм и функциональность. Название сложилось из двух слов — Japan и Scandi. Хозяева этой квартиры влюбились в этот необычный гибрид и хотели оформить в этой стилистике свое новое жилье в новостройке. Но Анна Майер убедила заказчиков, что для такого большого города, как Екатеринбург, и для семьи с тремя детьми смесь японского со скандинавским может оказаться не самым подходящим вариантом.

Главная спальня, фрагмент. За реечной перегородкой располагается гардеробная комната. Кровать, ИКЕА. Прикроватные тумбочки, Skog Konstruktor.

Главная спальня, фрагмент. Тумбочка, ИКЕА

Главная спальня, фрагмент. Консоль, ИКЕА.
«Мы адаптировали стиль джапанди, потому что в чистом виде он не очень подходит для жизни в большом городе с тремя детьми»

Главная спальня, вид на ванную комнату. Реечные перегородки сделаны на заказ на местном производстве.

Ванная комната при спальне, фрагмент.
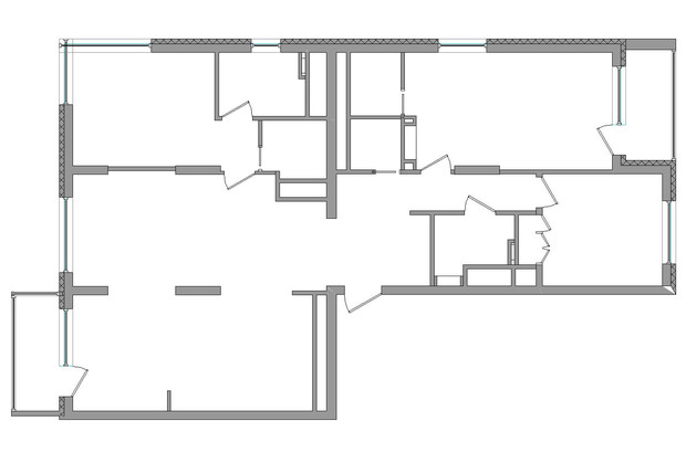
В итоге стиль джапанди был сильно адаптирован под городскую среду, под особенности Екатеринбурга и под потребности большой семьи. Еще один момент, который необходимо было учесть — история квартиры. Она сложилась из двух соседних, однокомнатной и двухкомнатной. Поэтому дизайнерской работе предшествовала полная перепланировка.

Детская девочек. Рабочие столы, Skog Konstruktor. На варианте покраски, который делит стену на две части, настояла заказчица.

Комната девочек, вид на гардеробную. Реечные перегородки выполнены на заказ.
После объединения двух квартир появилась просторная зона кухни, гостиной и столовой общей площадью почти 40 кв. метров, отдельный родительский блок со спальней, гардеробной и ванной комнатой и детский блок (комната девочек с собственной гардеробной, комната малыша плюс ванная комната), а также небольшая хозяйственная комната при входе с функциями кладовой и постирочной.
Все комнаты связаны между собой общей отделкой: заказчикам хотелось видеть в своей квартире как можно больше натурального дерева, поэтому на полу везде лежит дубовый паркет, двери и фасады кухонных шкафов отделаны шпоном американского ореха, гардеробные от спален отделяют реечные деревянные перегородки.

Детская мальчика, фрагмент.
Заказчице важны тактильные ощущения, именно с этим связано использование большого количества дерева во всех помещениях. Ей так же хотелось видеть в своей квартире и другие природные материалы, поэтому в кухне-столовой-гостиной две стены отделаны штукатуркой под бетон.

Гостиная, фрагмент. Диван изготовлен на заказ на фабрике Tamamm. Столы, Skog Konstruktor.
Японский минимализм, даже адаптированный под екатеринбургские условия, дает о себе знать почти полным отсутствием декора. Роль декоративных предметов играют технические элементы, такие как трубчатый радиатор в столовой зоне: он здесь не только для красоты.

Столовая группа. Стена оформлена штукатуркой под бетон.

Кухня. Мебель изготовлена на заказ на фабрике Navarra. Стена слева лишена верхних шкафов, дизайнеры сделали только короб, чтобы организовать подсветку этой зоны. В другой части кухни расположены два больших холодильника, так как в семье трое детей и приходится делать запасы. За островом можно присесть не надолго или организовать фуршет.

Шкаф при входе, который решает сразу несколько задач. Открытая секция предназначена для одежды гостей, под шкафом можно спрятать от глаз их обувь.

Прихожая, фрагмент.

Ванная комната при входе.


План «до» и «после».