Дизайнер Анастасия Григорьева спланировала пространство так, чтобы уместить все нужные функциональные зоны. Интерьер получился с элементами современного шика — латунью, мрамором, деревянными панелями и высокими дверями.
Заказчики и задачи
Владелец этой квартиры — молодой человек 35 лет, который живет с котом. К дизайнеру Анастасии Григорьевой он обратился с запросом создать комфортный интерьер с вместительной кухней (хозяин любит готовить), разместить на имеющейся площади гостиную зону, спальню, рабочий стол, который не нужно приставлять к стене, а также место для занятий спортом. «Нужен был интерьер, отвечающий стилю жизни молодого человека, но не хотелось, чтобы эта квартира была похожа на миллион других серо-бежевых интерьеров», — говорит автор проекта.

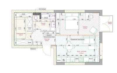
Перепланировка
Планировка квартиры от застройщика предусматривала огороженную ванную с санузлом, а также мокрую зону кухни. Но метраж и конфигурация позволили распланировать пространство так, чтобы уместить все необходимые зоны. Слева от прихожей отделили гардеробную, которая также выполняет функции постирочной и маленькой спортивной зоны — там есть свободное пространство и установлено большое настенное зеркало для удобных занятий спортом. Ванную и санузел объединили и увеличили за счет прихожей, чтобы разместить всю сантехнику. Между кухней и комнатой не стали делать глухую перегородку — выбрали раздвижную стеклянную, чтобы пространство казалось больше. На площади кухни удалось выделить и маленькую гостиную со столовой, они получились объединенными.

Отделка
Для отделки стен выбрали краску — это фон для мебели и акцентных материалов, которыми стали фотообои с актуальной графикой за изголовьем кровати, гипсовое панно в зоне рабочего стола и панели под дерево на стене, где размещен телевизор.

В гардеробной стены решили отделать декоративной штукатуркой под бетон — помещение получилось более камерным и брутальным. В санузле использовали крупноформатную настенную плитку, скомбинированную с краской глубокого бирюзового оттенка. С помощью художника на стене над ванной плитку украсили рисунком в японском стиле.

Пол выложен керамогранитом — все комнаты, включая жилые, таким было пожелание владельца. В прихожей и ванной — керамогранит под светлый мрамор. В кухне-гостиной и спальне — с фактурой дерева. А в гардеробной — метализированная, которая отлично сочетается с покрытием стен под бетон.
Мебель и системы хранения
Основная система хранения — гардеробная-постирочная. Там хранится верхняя одежда, хозяйственные принадлежности, сезонные вещи. В прихожей намеренно не стали устанавливать ни шкаф, ни вешалку, чтобы сделать акцент на парадности пространства. Оставили только небольшую банкетку и консоль для мелочей.
В спальне есть встроенный шкаф для повседневных вещей.

Кухню сделали вместительной, как и хотел заказчик. Часть кухонных шкафов на деле выполняют функции тумбочки под телевизор. Интересная идея для небольших квартир и экономии пространства, а также визуальной гармонии.

Освещение
«Мы всегда придерживаемся разных световых сценариев. Свет в текущей жизни — это и функционал, и декор», — говорит Анастасия.
Исходя из этого, в квартире спроектировали общий потолочный свет, функциональный и декоративный. Общий решен встроенными в потолок точечными светильниками. В зоне гостиной это встроенные линейные профили — таким образом удалось дополнительно зонировать комнату. Над обеденным столом есть подвесы, как и по обеим сторонам от кровати. В небольшой прихожей — круглый потолочный плафон и встроенная подсветка зеркала за консолью, которая выделяет и украшает эту зону.

В ванной в качестве дополнительного света — подвесы над зеркалом. В гардеробной предусмотрели подсветку шкафов и зеркала.


Дизайнер Анастасия Григорьева, автор проекта:
Первым критерием при подборе текстиля была устойчивость — чтобы он пережил когти кота. Вся мебель — из велюра или микровелюра. Шторы мы создавали из трех тканей: светонепроницаемая, декоративная и декоративная синяя для пересечения с интерьером. Декор подбирали тоже по принципу цветового пересечения. Композиция на консольном столе в прихожей перекликается с постером, закрывающим электрощиток. Картину, которая состоит из двух окружностей, рисовала я — хотелось необычную форму и почти монохромную гамму. В целом, в остальных помещениях функцию декора играет цвет, отделка стен и светильники. Квартира небольшая, хотелось лаконичности, не было цели делать много декора, учитывая и без того здесь большое количество мебели.
26 фото

Вид на кухню-гостиную

Гостиная

Кухня-гостиная (за постером скрывается щиток, по сути, рамка с постером и есть дверца)

Гостиная, вид на спальню

Гостиная

Кухня

Кухня

Кухня-столовая

Вид на спальню

Спальня

Спальня

Спальня

Спальня

Спальня

Спальня

Вид на прихожую

Прихожая

Прихожая

Прихожая

Прихожая

Ванная комната

Ванная комната

Ванная комната

Гардеробная-спортзал

Гардеробная-спортзал

Гардеробная-спортзал Редакция предупреждает, что в соответствии с Жилищным кодексом РФ требуется согласование проводимых переустройств и перепланировок.

Смотреть перепланировку

Анастасия Дубровина

Наталья Градусова Маленькие квартиры Современный стиль Светлые цвета