От расположения в доме до зонирования и особенностей планировки — рассказываем и показываем на примере, как оформить кухню-гостиную, если вы живете за городом.
Загородное жилье — это не только красивая природа вокруг, но и большие возможности для творчества при обустройстве интерьера. И если вы мечтали о просторной уютной кухне-гостиной, в частном доме это будет легко реализовать, не переживая о каждом квадратном метре. В статье расскажем, что при этом стоит учесть и как зонировать пространство, а также разберем разные варианты планировок на примере реализованных проектов.
Все о дизайне кухни-гостиной в частном доме
Расположение в доме
Зонирование
— Кухня
— Столовая
— Мягкая группа
— Другие зоны
Примеры планировок
— Классическая прямоугольная
— Вытянутая с островом
— Квадратная
— С кухней в нише
— Нестандартной формы
Расположение в доме

В загородном жилье, несмотря на свободу в расположении помещений, нужно следовать определенной логике. Главное правило: общественные зоны внизу, приватные — наверху (либо в дальней части дома, если он одноэтажный). В связи с этим кухню-гостиную почти всегда располагают на первом этаже ближе ко входу.
Вот еще несколько моментов, которые нужно учесть:
- Если вы делаете панорамное освещение, желательно, чтобы в этой части находилась гостиная или столовая. Так вы сможете постоянно любоваться красивым видом.
- Учитывайте стороны света. Если расположить диванную группу так, чтобы окна выходили на запад, вы будете регулярно наблюдать закат, а утром и днем вас не будет беспокоить слишком яркое солнце. Часть с кухней желательно разместить так, чтобы она не была целый день под палящими лучами — во время готовки и так жарко, особенно летом.
- Здорово, если можно организовать выход из гостиной или столовой на веранду либо террасу. Если пристройка закрытая, можно вообще вынести обеденный стол туда, заменив дверь широкой аркой.
13 фото

Дизайн: Наталья Бучнева

Дизайн: Наталья Бучнева

Дизайн: Наталья Бучнева

Соцсети дизайнера Сабины Валиевой

Дизайн: Анастасия Никифорова. Фото: Наталья Мавренкова. Стиль: Светлана Куксова

Дизайн: Анастасия Никифорова. Фото: Наталья Мавренкова. Стиль: Светлана Куксова

Соцсети дизайнера Маргариты Корниенко

Соцсети студии Reroom

Соцсети студии Reroom

Дизайн: Дарюс Зайда. Фото: Вайдотас Дарулис

Дизайн: Дарюс Зайда. Фото: Вайдотас Дарулис

Дизайн: Татьяна Алипова

Дизайн: Татьяна Алипова
Зонирование
При оформлении интерьера кухни-гостиной в частном доме очень важна планировка. Традиционно выделяют несколько зон, но их могут дополнять и другие — в зависимости от площади жилья, состава семьи и потребностей жильцов.
Кухня

Несмотря на то, что объединение кухни, гостиной и столовой — самое популярное решение сейчас, оно сопряжено с некоторыми проблемными моментами. Так, например, нужно понимать, что открытая зона готовки — это запахи еды, шум плиты или работающей посудомоечной машины, а также повышенная загрязняемость. При этом такая организация пространства позволяет не отрываться от общения в процессе готовки и не носить тарелки туда-сюда из разных комнат. В любом случае зону готовки желательно разместить обособленно. Если вам важна приватность, можно установить перегородки — лучше прозрачные, чтобы зрительно не дробить пространство.
Планировка гарнитура может быть любой — ориентируйтесь на форму помещения и свои потребности. Тем, кто готовит немного, хватит и одного ряда либо Г-образной конструкции, возможно, без верхних шкафов. Если же вы любите готовить и делаете это часто, рассмотрите П-образную планировку (особенно удобно, если гарнитур находится в нише) или остров, который может служить дополнительной рабочей поверхностью. Обязательно установите мощную вытяжку, чтобы избежать проблемы с запахами во время готовки. Мойку можно расположить у окна, если вам нравится в процессе уборки любоваться окружающей природой.
14 фото

Дизайн: Анна Малютина

Дизайн: Анна Малютина

Дизайн: Ксения Шакирова. Фото: Инна Каблукова

Дизайн: Анастасия Никифорова. Фото: Наталья Мавренкова. Стиль: Светлана Куксова

Дизайн: Анастасия Никифорова. Фото: Наталья Мавренкова. Стиль: Светлана Куксова

Соцсети студии Holl

Соцсети студии Holl

Дизайн: Татьяна Бакланова. Фото: Александр Полосин

Дизайн: Татьяна Бакланова. Фото: Александр Полосин

Дизайн: Юлия Сорокалетова. Фото: Иван Сорокин

Дизайн: Юлия Сорокалетова. Фото: Иван Сорокин

Дизайн: Вячеслав Нестеренко и Анастасия Кутовая. Фото: Наталья Горбунова

Дизайн: Вячеслав Нестеренко и Анастасия Кутовая. Фото: Наталья Горбунова

Дизайн: Вячеслав Нестеренко и Анастасия Кутовая. Фото: Наталья Горбунова
Столовая
Обеденная зона может выглядеть по-разному: от большого стола на 8-10 персон до барной стойки или просто маленького столика на несколько человек.

Располагают ее несколькими способами:
- Между зонами готовки и отдыха в прямоугольном помещении — тогда столовая группа становится своеобразным буфером между ними.
- Рядом с гарнитуром — такой вариант чаще всего применяют, если он угловой или П-образный, а помещение не слишком большое.
- В центре — если общее пространство просторное или квадратной формы.
12 фото

Дизайн: Ксения Шакирова. Фото: Инна Каблукова

Дизайн: Татьяна Бакланова. Фото: Александр Полосин

Дизайн: Татьяна Бакланова. Фото: Александр Полосин

Дизайн: Анастасия Григорьева

Дизайн: Юлия Сорокалетова. Фото: Иван Сорокин

Соцсети дизайнера Соцсети дизайнера Натальи Мукасьян

Соцсети дизайнера Соцсети дизайнера Натальи Мукасьян

Дизайн: Элия Рудт. Фото: Максим Максимов

Дизайн: Элия Рудт. Фото: Максим Максимов

Дизайн: Элия Рудт. Фото: Максим Максимов

Соцсети дизайнера Марины Куницыной

Соцсети дизайнера Марины Куницыной
Мягкая группа
Наконец, третья обязательная составляющая интерьера кухни-гостиной в доме (фото ниже) — непосредственно мягкая группа.

Зона отдыха предполагает наличие одного или нескольких диванов, опционально — дополнительных сидячих мест. Это могут быть кресла, банкетки, пуфы, специальные подушки. Композиция дополняется журнальным столиком (иногда — не одним). Завершать ее может телевизор с небольшой системой хранения, камин или акцентная стена: например, с ярким арт-объектом или крупным декором.
9 фото

Дизайн: Анна Малютина

Дизайн: Элия Рудт. Фото: Максим Максимов

Соцсети дизайнера Екатерины Митрофановой

Соцсети дизайнера Екатерины Митрофановой

Соцсети дизайнера Екатерины Митрофановой

Дизайн: Ксения Шакирова. Фото: Инна Каблукова

Соцсети студии Holl

Дизайн: Павел и Светлана Алексеевы

Соцсети дизайнера Марины Куницыной
Другие зоны
Площадь загородного жилья обычно позволяет без проблем выделить место под дополнительные функциональные зоны.

Например, это может быть:
- Камин или печь — обычно очаг располагают ближе к диванной группе, но в больших домах это может быть полноценная отдельная секция.
- Библиотека с уголком для чтения.
- Домашняя картинная галерея.
- Мини-игровая (чтобы дети были на виду у взрослых)
- Музыкальный уголок.
- Место для домашнего любимца и т.п.
В небольших коттеджах здесь же иногда оформляют рабочее место. Конечно, если есть возможность, под него лучше выделить отдельную комнату, чтобы обеспечить уединение. Но при отсутствии такого варианта вполне можно поставить письменный стол и в общей зоне — главное, не в самом ее эпицентре, чтобы разговоры домашних или просмотр телевизора не мешал работать.
11 фото

Дизайн: Анна Малютина

Дизайн: Анна Малютина

Дизайн: Анастасия Никифорова. Фото: Наталья Мавренкова. Стиль: Светлана Куксова

Дизайн: Анастасия Никифорова. Фото: Наталья Мавренкова. Стиль: Светлана Куксова

Соцсети дизайнера Арины Троиловой

Соцсети дизайнера Арины Троиловой

Дизайн: Вячеслав Нестеренко и Анастасия Кутовая. Фото: Наталья Горбунова

Дизайн: Татьяна Воеводина. Фото: Сергей Мельников. Стиль: Мария Мигуленко

Дизайн: Татьяна Воеводина. Фото: Сергей Мельников. Стиль: Мария Мигуленко

Дизайн: Татьяна Воеводина. Фото: Сергей Мельников. Стиль: Мария Мигуленко

Соцсети дизайнера Марины Куницыной
Проекты кухонь-гостиных в доме с фото и планировками
Частное жилье дает куда больше вариантов планировочных решений, чем городская квартира. Рассмотрим несколько примеров организации общей зоны разной формы.
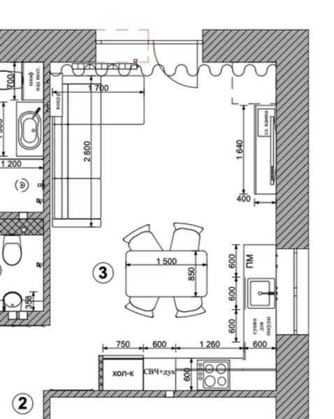
Классическая прямоугольная
Прямоугольное, не слишком узкое помещение — самое удобное для работы.

Например, площадь этого дома — всего 92 квадратных метра. Это сравнимо с трехкомнатной квартирой. Под кухню-гостиную отвели 25 кв. м — этого вполне достаточно, чтобы разместить все необходимые зоны. В вытянутой комнате зоны обычно располагают последовательно, так поступили и здесь — только столовую группу сдвинули ближе к гарнитуру. Он Г-образной формы и располагается сразу при входе. В противоположном конце — большой угловой диван и ТВ-группа напротив. Сам интерьер оформлен в неоклассическом стиле. Здесь нет кричащих цветов или нестандартной мебели. Пространство получилось элегантным и уютным, оно располагает к тихим семейным вечерам или обедам с друзьями.
7 фото

Дизайн: Наталья Николенко и Елена Чернова. Фото: Вера Деблик. Стиль: Анна Шенбергер

Дизайн: Наталья Николенко и Елена Чернова. Фото: Вера Деблик. Стиль: Анна Шенбергер

Дизайн: Наталья Николенко и Елена Чернова. Фото: Вера Деблик. Стиль: Анна Шенбергер

Дизайн: Наталья Николенко и Елена Чернова. Фото: Вера Деблик. Стиль: Анна Шенбергер

Дизайн: Наталья Николенко и Елена Чернова. Фото: Вера Деблик. Стиль: Анна Шенбергер

Дизайн: Наталья Николенко и Елена Чернова. Фото: Вера Деблик. Стиль: Анна Шенбергер

Дизайн: Наталья Николенко и Елена Чернова. Фото: Вера Деблик. Стиль: Анна Шенбергер
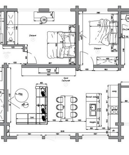
Вытянутая с островом
Иногда прямоугольную комнату делают более вытянутой. В маленьком жилье это часто становится проблемой, а вот за городом, если места много, дает возможность удобно расположить зоны.

Эта современная дача принадлежит молодой паре с двумя детьми. Они хотели оформить комфортное и уютное пространство для жизни, при этом без ощущения деревянной избушки. Так, для большой семьи дизайнер организовала просторную общую зону площадью 43 квадрата. Ее зонировали следующим образом:
- Слева от входа из прихожей находится линейный гарнитур с островной частью, где установлена мойка и организована дополнительная система хранения.
- За островом расположен большой обеденный стол на 6-8 человек — идеально для семейных застолий с гостями.
- Диван, расположенный спинкой к столовой группе, таким образом зонирует комнату и отделяет мягкую группу с телевизором.
Интерьер получился минималистичным, но не холодным — деревянная отделка и природные цвета в палитре делают пространство уютным и умиротворяющим.

Дизайн: Аделина Шарапова. Фото: Георгий Трушкин

Дизайн: Аделина Шарапова. Фото: Георгий Трушкин

Дизайн: Аделина Шарапова. Фото: Георгий Трушкин

Дизайн: Аделина Шарапова. Фото: Георгий Трушкин

Дизайн: Аделина Шарапова. Фото: Георгий Трушкин
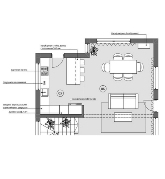
Квадратная
Квадратная форма помещения наиболее удобная, когда площадь не слишком большая — например, как в этом коттедже площадью 77 кв. м.

Планировочное решение всего жилья продиктовано логикой жизни: из прихожей небольшой коридорчик ведет в общую зону, а приватные комнаты расположены в дальней части строения. Площадь современной кухни-гостиной в этом доме — 26 квадратных метров. Здесь нет ничего лишнего: кухонный гарнитур в один ряд, напротив — параллельно расположенные столовая и мягкая группы. Основной задачей дизайнера было визуально соединить интерьер и окружающую природу, поэтому пространство оформлено в духе мягкого минимализма. Палитра — нейтральная, в теплых бежево-коричневых оттенках.

Дизайн: Наталья Федотова. Фото: Наталья Горбунова. Стиль: Ирина Чертихина

Дизайн: Наталья Федотова. Фото: Наталья Горбунова. Стиль: Ирина Чертихина

Дизайн: Наталья Федотова. Фото: Наталья Горбунова. Стиль: Ирина Чертихина

Дизайн: Наталья Федотова. Фото: Наталья Горбунова. Стиль: Ирина Чертихина

Дизайн: Наталья Федотова. Фото: Наталья Горбунова. Стиль: Ирина Чертихина
С кухней в нише
Форма помещения может быть и более сложной — например, не просто квадратной, а Т-образной.

В этом проекте такую планировку предлагал застройщик загородного дома. Она предполагает просторную общую зону площадью 42 квадрата, в которой уже заранее есть ниша под кухню. Это удобно, поскольку частично снимает вопрос зонирования. Для зоны готовки выбрали угловой гарнитур: сторона с окном сделана без верхнего яруса, а к ней примыкает несколько шкафов-колонн со встроенной техникой. Также установили остров, за которым можно готовить или выпить кофе. Оставшееся пространство поделили на столовую и диванную группу, напротив которой находится лестница на второй этаж.
7 фото

Дизайн: Ирина Бородина и Екатерина Малая. Фото: Антон Лихтарович

Дизайн: Ирина Бородина и Екатерина Малая. Фото: Антон Лихтарович

Дизайн: Ирина Бородина и Екатерина Малая. Фото: Антон Лихтарович

Дизайн: Ирина Бородина и Екатерина Малая. Фото: Антон Лихтарович

Дизайн: Ирина Бородина и Екатерина Малая. Фото: Антон Лихтарович

Дизайн: Ирина Бородина и Екатерина Малая. Фото: Антон Лихтарович

Дизайн: Ирина Бородина и Екатерина Малая. Фото: Антон Лихтарович
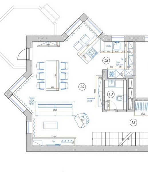
Нестандартной формы
Наконец, форма кухни-гостиной может быть и вовсе нестандартной — обычно это продиктовано архитектурными особенностями дома.

Такую имеет, например, этот таунхаус для семьи с ребенком. Общая зона по форме напоминает половину звезды, что выглядит эффектно, но требует особо тщательной работы с планировкой. Дизайнер учла скошенные углы и эркеры при расстановке мебели. Так, одно из треугольных окон оставили свободным, а рядом с другим расположили барную стойку, которая примыкает к гарнитуру сложной формы. Большой обеденный стол расположен практически по центру комнаты — но так, чтобы не мешать проходу. За ним организовала диванная группа, а вдоль короткой стенки, которую образует санузел, установили большой открытый стеллаж под потолок.
7 фото

Дизайн: Анна Маркова. Фото: Борис Бочкарев

Дизайн: Анна Маркова. Фото: Борис Бочкарев

Дизайн: Анна Маркова. Фото: Борис Бочкарев

Дизайн: Анна Маркова. Фото: Борис Бочкарев

Дизайн: Анна Маркова. Фото: Борис Бочкарев

Дизайн: Анна Маркова. Фото: Борис Бочкарев

Дизайн: Анна Маркова. Фото: Борис Бочкарев

Анастасия Степанова