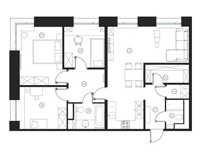
Застройщик предполагал три комнаты и кухню-гостиную. С помощью перепланировки дизайнеру удалось увеличить общую зону, а также предусмотреть нужные хозяйственные помещения — гардеробную и постирочную. При этом у всех членов семьи есть свои спальни.
Заказчик и задачи
Это квартирой в Москве владеет молодая семья с двумя детьми. Чтобы оформить комфортный интерьер, они обратились к дизайнеру Ольге Коломиец. Главной задачей дизайнер называет создание планировки. «Удобная, функциональная и эргономичная планировка, продуманная до мелочей», — комментирует задачу Ольга.

Перепланировка
Застройщик сдавал квартиру с несущей стеной, разделяющей ее практически пополам, и двумя санузлами. Перегородок больше не было. Тем не менее термин «свободная планировка» в квартирах всегда условный — все равно есть определенные мокрые зоны. Так было и в этом случае. Но отсутствие стен позволило сэкономить на демонтаже.

Перепланировка получилась следующей. На месте коридора организовали кухню. Там, где была кухня, сделали детскую. Согласовать такое решение можно, если обозначить детскую как кабинет — нежилое помещение. На месте жилой площади (гостиной) — родительская спальня. Вторая детская осталась на своем месте. А при кухне — просторная гостиная зона. Прихожую отделили от кухни перегородкой с проемом. Также во входном блоке — объединенный санузел с душевой, постирочная и гардеробная. Последние выделены за счет спальни, постирочная обозначена технической комнатой. Вторая ванная осталась в приватной зоне со спальнями. Перепланировку согласовали.

Отделка
Отделочные материалы определили стилистику и атмосферу пространства: природные, натуральные оттенки, дерево и его имитация, некричащие рисунки. На стенах в кухне-гостиной, прихожей и хозяйственных помещениях — краска. В кухне-гостиной и прихожей также использовали отделку деревянными рейками за диваном и в столовой зоне и декоративным кирпичом в зоне окон.

В спальнях — обои. На полу в комнатах и кухне-гостиной — ламинат. В прихожей и технических комнатах (гардеробная, постирочная) использовали напольный керамогранит.

В душевой и ванной комнате — плитка на полу и стенах.

Мебель и системы хранения
В каждой спальне дизайнер предусмотрела шкафы. Их делали на заказ и проектировали исходя из количества вещей хозяев — для каждой нашли место.

В детских есть зоны для хранения игрушек (младшего ребенка) и школьных принадлежностей (старшего).

В коридоре между спальнями вписали небольшую спортивную зону.

В кухне-гостиной есть тумба под телевизор с пеналом для хранения мелочей. Кроме того, дизайнер нашла место в гостиной для гитары — это увлечение хозяина дома. В П-образную кухню встроили всю необходимую технику, а объем хранения увеличили с помощью верхних шкафов под потолок.

В душевой и ванной комнате хранение решено тумбами под раковины. Также сделаны полки в зоне душа и ванны для разных бутылочек со средствами.
Освещение
По словам автора проекта, квартира достаточно темная даже в дневное время из-за ее ориентации на северо-запад. Поэтому продумать разнообразные сценарии света было важно. Есть общий свет, который дает равномерное освещение в комнатах. И местный: бра у дивана и кроватей в детских, подвесы по бокам от кровати в хозяйской спальне.


Ольга Коломиец Дизайнер, автор проекта
Основная концепция проекта была связана с планировкой пространства. В квартире была выделена общая зона, в которую вошли кухня, гостиная, столовая, гардеробная, постирочная, и приватная — это спальни. Вторая важная составляющая концепции — натуральные, приближенные к природным цвета и материалы: лен, дерево, камень, приятные на ощупь, фактурные, не полированные.
26 фото

Кухня-гостиная

Кухня-гостиная

Кухня-гостиная

Кухня-гостиная

Кухня-гостиная

Кухня-гостиная

Кухня-гостиная

Кухня-гостиная

Прихожая

Прихожая

Спальня

Спальня

Спальня

Спальня

Детская 1

Детская 1

Детская 1

Детская 2

Детская 2

Детская 2

Гостевой санузел

Гостевой санузел

Гостевой санузел

Ванная комната

Ванная комната

Ванная комната Редакция предупреждает, что в соответствии с Жилищным кодексом РФ требуется согласование проводимых переустройств и перепланировок.

Смотреть перепланировку

Анастасия Дубровина

Анастасия Кутырина

Анастасия Ламанова Современный стиль