Низкие потолки, несущие стены и износившиеся коммуникации — разбираемся с главными проблемами панелек, чтобы оформить красивую и удобную кухню.
Кухня в панельном доме может быть разной: крошечной или достаточно просторной, квадратной или прямоугольной. Все зависит от серии — а их очень много. В этой статье рассмотрим особенности, которые объединяют все дома этого периода, покажем примеры реализованных проектов и разберем готовые планировки для разной площади.
Все о дизайне кухни в панельном доме
Что учесть при ремонте
— Высоту потолков
— Тип стен
— Наличие газа
— Качество коммуникаций
Проекты с планировками
— 6 кв. м
— 7 кв. м
— 8 кв. м
— 9 кв. м
— 10 кв. м
— 11 кв. м
Идеи оформления
Что учесть при ремонте
Панельные дома часто называют «улучшенками», потому что проектировщики учли все недостатки хрущевок. И чем позже серия, тем больше работы над ошибками проделано. Но тем не менее есть общие моменты, которые характерны почти для всего вторичного жилья этого периода. Их нужно учитывать, планируя ремонт кухни в панельном доме.

Высокие ли потолки
Наверное, самое неприятное «наследство» хрущевской застройки — низкие потолки. Вкупе с небольшими комнатами они превращают пространство в тесную коробку. Конечно, в поздних сериях домов ситуация чуть лучше: есть квартиры с потолками высотой до 2,8 м. Но часто это диапазон 2,4-2,6 м. Поэтому дизайн должен быть не только эстетичным, но и создавать необходимый визуальный эффект. В этом вам помогут воздушные светлые оттенки, глянцевые поверхности (например, фасады гарнитура или фактура напольной плитки), вытянутые вверх силуэты.
8 фото

Дизайн: Юлия Баршевская. Фото: м

Дизайн: Юлия Баршевская. Фото: м

Дизайн: Юлия Баршевская. Фото: м

Дизайн: Алеся Котова. Фото: Евгений Гнесин. Стиль: Анастасия Власова

Дизайн: Алеся Котова. Фото: Евгений Гнесин. Стиль: Анастасия Власова

Дизайн: студия Geometrium. Фото: Сергей Красюк

Дизайн: студия Geometrium. Фото: Сергей Красюк

Дизайн: студия Geometrium. Фото: Сергей Красюк
Какого типа стены
В панельках почти все стены — несущие. А значит, двигать их категорически нельзя. Поэтому изменить конфигурацию кухни, например, сделав ее шире или в целом просторнее, не получится. Придется остаться в заданных границах и работать с тем, что есть. Здесь на помощь придут компактные мебель и техника, светлая палитра, отсутствие громоздких предметов, антресольный гарнитур, скрытый карниз и т.д.
7 фото

Дизайн: Ирина Акимова. Фото: Мария Иринархова

Дизайн: Ирина Акимова. Фото: Мария Иринархова

Дизайн: Ирина Акимова. Фото: Мария Иринархова

Дизайн: Наталья Широкорад

Дизайн: Наталья Широкорад

Дизайн: Наталья Широкорад

Дизайн: Елена Карасаева
Есть ли газ
Этот пункт также зависит от конкретной серии. Чаще всего в панельках поздних лет стоят электрические плиты, а вот в старых домах может быть проведен газ. Это влечет за собой в первую очередь эстетическую проблему — газовая труба может сильно портить общий вид зоны готовки. Варианта в этом случае всего два: отказаться от электричества вообще или креативно обыграть некрасивые коммуникации.
10 фото

Соцсети дизайнера Ольги Коркиной

Соцсети дизайнера Ольги Коркиной

Дизайн: Марина Павлова. Фото: Максим Максимов. Стиль: студия декора «Искусство жить красиво»

Дизайн: Марина Павлова. Фото: Максим Максимов. Стиль: студия декора «Искусство жить красиво»

Дизайн: Марина Павлова. Фото: Максим Максимов. Стиль: студия декора «Искусство жить красиво»

Дизайн: Мария Ничипоренко. Фото: Максим Канакин. Стиль: Нелли Муратова

Дизайн: Мария Ничипоренко. Фото: Максим Канакин. Стиль: Нелли Муратова

Дизайн: Елена Иванова. Фото: Дина Александрова. Стиль: Яна Яхина и Полина Рожкова

Дизайн: Елена Иванова. Фото: Дина Александрова. Стиль: Яна Яхина и Полина Рожкова

Соцсети блогера 43_livnordic
В каком состоянии коммуникации
Инженерные коммуникации (электрика, водопровод, вентиляция) со временем изнашиваются, а иногда и вовсе приходят в негодность. Нужно понимать, что панельным домам в среднем 40-50 лет, а самым первым сериям — итого больше. Более того, некоторые изначально строили как «сносимое жилье», чей срок эксплуатации был рассчитан на 25-30 лет. Отсюда вполне вероятны проблемы с коммуникациями: электрика может оказаться не готова к одновременному использованию нескольких мощных приборов, вентиляция — слишком слабой, с водопроводом тоже часто бывают проблемы.
Проверьте все эти элементы инженерных систем, при необходимости замените проводку, при неработающей вентиляции купите качественную вытяжку, вызовите сантехников, если что-то не так с напором воды или качеством самих труб.
6 фото

Дизайн: Анна Зуева. Фото: Ольга Шангина-Лестерлен. Стиль: Екатерина Наумова

Дизайн: Анна Зуева. Фото: Ольга Шангина-Лестерлен. Стиль: Екатерина Наумова

Дизайн: Наталья Широкорад

Дизайн: Наталья Широкорад

Дизайн: Лидия Напреенко. Фото: Максим Канакин. Декоратор: Екатерина Лаптева

Дизайн: Лидия Напреенко. Фото: Максим Канакин. Декоратор: Екатерина Лаптева
Проекты с планировками
Рассмотрим, как оформить кухню в панельном доме, с фото реальных квартир и примерами планировок для разных серий.
6 кв. м
Серия дома: II-49Д

Эта серия панелек возводилась с середины 60-х, поэтому площадь зоны готовки здесь недалеко ушла от хрущевки — всего 6 квадратных метров. Конечно, в таком маленьком пространстве невозможно вместить все и сразу, поэтому обеденную зону вынесли в гостиную. А на ровном квадрате 3х3 м разместили большой угловой гарнитур с посудомоечной машиной, двухдверным холодильником и отдельной колонной для духового шкафа и СВЧ-печи. Стол в гостиной стоит прямо при входе на кухню — это удобно, поскольку не нужно далеко ходить.
Оформление сделали максимально простым: две стены полностью занимает белый гарнитур, остальные покрыты краской ему в тон, а фартук отделан плиткой-кабанчиком того же оттенка.

Дизайн: Инна Чашина. Фото: Алексей Ключников

Дизайн: Инна Чашина. Фото: Алексей Ключников

Дизайн: Инна Чашина. Фото: Алексей Ключников

Дизайн: Инна Чашина. Фото: Алексей Ключников
7 кв. м
Серия дома: М-464

Площадь кухни в этой типовой квартире даже чуть меньше 7 квадратов — 6,6 кв. м. Она также имеет пропорциональную форму практически ровного квадрата. Причем уже в изначальной планировки между кухней и узким коридором нет двери. Это визуально делает небольшое пространство чуть легче.
Расстановку мебели выбрали стандартную для такого метража: угловой гарнитур со всей необходимой, но компактной техникой и маленькую обеденную зону в углу — круглый столик и два стула. В квартире живет девушка, поэтому больше было и не нужно.

Дизайн: Татьяна Манцевич и Денис Лавровский. Фото: Егор Пясковский. Стиль: Юлия Мамедова

Дизайн: Татьяна Манцевич и Денис Лавровский. Фото: Егор Пясковский. Стиль: Юлия Мамедова

Дизайн: Татьяна Манцевич и Денис Лавровский. Фото: Егор Пясковский. Стиль: Юлия Мамедова
8 кв. м
Серия дома: 1ЛГ-606

606-я серия тоже относится к старым, но при этом считается одной из самых удобных для того периода. И действительно: восьмиметровая зона готовки с большим окном и широким подоконником, потолок 2,7 м. Эту квартиру обустраивали для мужчины, поэтому итоговых 7,6 квадратов хватило, чтобы разместить на них и столовую группу на четверых, и гарнитур со всей необходимой техникой. И даже винный стеллаж! Чтобы хватило места для встроенных шкафов с холодильником, кухню немного расширили за счет ванной. Такой маневр разрешен, поскольку квартира находится на последнем этаже.

Дизайн: Светлана Куксова. Фото: Наталья Мавренкова

Дизайн: Светлана Куксова. Фото: Наталья Мавренкова

Дизайн: Светлана Куксова. Фото: Наталья Мавренкова

Дизайн: Светлана Куксова. Фото: Наталья Мавренкова

Дизайн: Светлана Куксова. Фото: Наталья Мавренкова
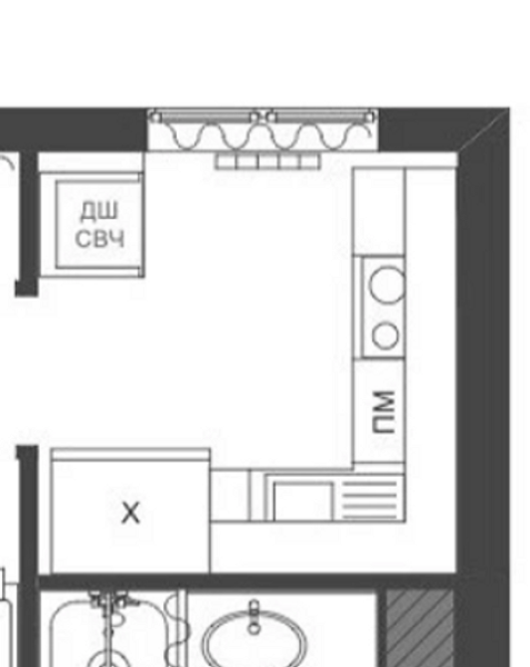
Кухня 9 кв. м в панельном доме
Серия дома: П-3М

Эти панельки возводились вплоть до 1998 года — жилье считается современным. Планировки, действительно, стали более удачными: например, под зону готовки отвели чуть больше 9 квадратов. Такой площади вполне достаточно, чтобы разместить гарнитур, всю нужную технику, включая холодильник, и столовую группу. Так поступили и в этом проекте.
Однокомнатную квартиру оформляли для женщины, которая живет одна. Кухонные шкафы расположили Г-образно, а выступающую часть одной из стен обыграли неглубокой витриной, оформленной в том же стиле, что и остальной гарнитур. В углу у окна расположился компактный столик с 2 стульями. Если придут гости, его можно выдвинуть вперед и добавить еще два посадочных места.
Стилистически остановились на современной классике — она отлично вписывается даже в небольшие пространства. Палитру подобрали в тон остальной квартире: здесь много сложных оттенков розового, сочный зеленый и, конечно, белый и бежевый как объединяющие элементы.

Дизайн: Нина Абасеева. Фото: Ольга Пегова

Дизайн: Нина Абасеева. Фото: Ольга Пегова

Дизайн: Нина Абасеева. Фото: Ольга Пегова

Дизайн: Нина Абасеева. Фото: Ольга Пегова

Дизайн: Нина Абасеева. Фото: Ольга Пегова
10 кв. м
Серия дома: ДОММОС

Изначально эта кухня представляла собой прямоугольник с лоджией, выходящий в узкий межкомнатный коридор. Поскольку часть перегородки между зоной готовки и жилой комнатой была ненесущей, в процессе перепланировки было решено ее снести, чтобы получилось частично открытое пространство между кухней и гостиной. Гарнитур расположили Г-образно, разместив всю необходимую хозяевам технику. Напротив, вдоль короткой стены, часть которой демонтировали, оформили столовую группу на четверых.

Дизайн: Юлия Левина. Фото: Сергей Кузнецов

Дизайн: Юлия Левина. Фото: Сергей Кузнецов

Дизайн: Юлия Левина. Фото: Сергей Кузнецов

Дизайн: Юлия Левина. Фото: Сергей Кузнецов
11 кв. м
Серия дома: ИП-46М

Изначальные данные этой квартиры — две комнаты и кухня с примыкающим к ней балконом. Из-за несущих стен в исходной планировки ничего менять не стали. Не слишком узкий прямоугольник — удачная форма для расстановки кухонной мебели. Расположение выбрали классическое: слева от входа угловой гарнитур, напротив — столовая группа. Стол выбрали прямоугольный формы. Модель раскладная, так что при наличии гостей можно увеличить вместимость.
Пространство оформлено в соответствии с общим стилем квартиры: нежная светло-бежевая гамма, нотки неоклассики, лаконичная мебель. Часть верхних шкафов сделали стеклянными, чтобы визуально облегчить конструкцию и заодно продемонстрировать красивую посуду.

Дизайн: Милена Яничкина. Фото: Евгений Кулибаба. Стиль: Ольга Васюкова

Дизайн: Милена Яничкина. Фото: Евгений Кулибаба. Стиль: Ольга Васюкова

Дизайн: Милена Яничкина. Фото: Евгений Кулибаба. Стиль: Ольга Васюкова

Дизайн: Милена Яничкина. Фото: Евгений Кулибаба. Стиль: Ольга Васюкова
Советы по оформлению
Даже с учетом всех недостатком квартир в панельном доме кухню можно оформить стильно и эргономично.

Вот несколько советов, которые вам помогут:
- Расставьте приоритеты. Чем скромнее площадь кухни, тем меньше шансов вместить туда все составляющие. Подумайте, что для вас важно, а что — компромиссно. Например, кому-то обязательно нужна посудомоечная машина, а кто-то готов мыть посуду руками, но вот без большого холодильника не обойтись. Откажитесь от тех зон, которые не принципиально важны для вас в пользу того, что действительно необходимо.
- Продумайте хранение. Сделайте верхние шкафчики под потолок, используйте разделители и вставки для полок, задействуйте ниши, пространство над обеденным столом или над входом, подоконник. Даже на маленькой кухне, если включить фантазию, можно получить в два раза больше мест для хранения, чем кажется на первый взгляд.
- По возможности откажитесь от традиционной двери. Короб и полотно в любом случае занимают место. Можно заменить распашную модель на более легкую раздвижную или, если у вас не газовая плита, вообще оставить открытый проем.
- Встраивайте все, что можно. Да, такие модели стоят немного дороже, но они, во-первых, сэкономят вам место, а, во-вторых, дадут лаконичную и эстетичную общую картинку.
- Помните про визуальные эффекты. Этот набор правил знаком уже практически всем. Светлые цвета, зеркальные и глянцевые поверхности увеличивают пространство. Вертикальные полосы вытягивают комнату вверх, горизонтальные — вширь. Слишком контрастные и крупные узоры привлекают внимание и зрительно делают кухню меньше.
- Продумайте освещение. Чем больше естественного света будет в зоне готовки, тем лучше. Но не забывайте и про искусственное освещение: оно должно быть многоуровневым и распределенным по зонам. Сделайте отдельную подсветку рабочей поверхности, в идеале — столовой группы тоже.
12 фото

Дизайн: Надежда Ракова и Алена Гуслиц. Фото: Борис Бочкарев

Дизайн: Надежда Ракова и Алена Гуслиц. Фото: Борис Бочкарев

Дизайн: Надежда Ракова и Алена Гуслиц. Фото: Борис Бочкарев

Дизайн: Анна Маркова и Ксения Шабалина. Фото: Борис Бочкарев

Дизайн: Анна Маркова и Ксения Шабалина. Фото: Борис Бочкарев

Дизайн: Анна Маркова и Ксения Шабалина. Фото: Борис Бочкарев

Дизайн: Анастасия Загорельская. Фото: Марина Климова

Дизайн: Анастасия Загорельская. Фото: Марина Климова

Дизайн: Анастасия Загорельская. Фото: Марина Климова

Дизайн: Анна Шиманова. Фото: Максим Максимов. Стиль: Екатерина Шаповалова

Дизайн: Анна Шиманова. Фото: Максим Максимов. Стиль: Екатерина Шаповалова

Дизайн: Анна Шиманова. Фото: Максим Максимов. Стиль: Екатерина Шаповалова
Кроме общих советов по обустройству, есть еще один важный момент. Нужно адекватно оценить желаемый образ кухни и действительность и подобрать подходящий стиль. Не все направления предназначены для маленьких помещений. Лофт, классика, чистый минимализм, хай-тек — вряд ли ваша история. Сканди, эко, контемпорари, эклектика, неоклассика — отличный вариант для кухни любой площади.
14 фото

Дизайн: Дарья Курчанова. Фото: Полина Полудкина

Дизайн: Дарья Курчанова. Фото: Полина Полудкина

Дизайн: Вера Шеверденок. Фото: Евгений Гнесин. Стиль: Ирина Бебешина и Евгения Мельникова

Дизайн: Вера Шеверденок. Фото: Евгений Гнесин. Стиль: Ирина Бебешина и Евгения Мельникова

Дизайн: Вера Шеверденок. Фото: Евгений Гнесин. Стиль: Ирина Бебешина и Евгения Мельникова

Дизайн: Вера Шеверденок. Фото: Евгений Гнесин. Стиль: Ирина Бебешина и Евгения Мельникова

Дизайн: Елена Ерашевич. Фото: Егор Пясковский

Дизайн: Елена Ерашевич. Фото: Егор Пясковский

Дизайн: Елена Ерашевич. Фото: Егор Пясковский

Дизайн: Юлия Карпухина. Фото: Евгений Гнесин. Стиль: Евгения Мельникова

Дизайн: Юлия Карпухина. Фото: Евгений Гнесин. Стиль: Евгения Мельникова

Дизайн: Юлия Карпухина. Фото: Евгений Гнесин. Стиль: Евгения Мельникова

Дизайн: Надия Кисельникова

Дизайн: Надия Кисельникова

Анастасия Степанова Маленькие квартиры