За счет дизайнерских приемов удалось сделать маленькое пространство визуально просторным, светлым и не загроможденным.
Заказчик и задачи
Этой квартирой владеет 23-летний мужчина, который работает в сфере IT. У него удаленная работа, поэтому много времени он проводит дома, при этом любит путешествия, занимается творчеством, играет на гитаре. Молодой человек обратился в студию Мадины Богатыревой с просьбой сделать квартиру комфортной, светлой и эргономичной, удобной для жизни и работы.

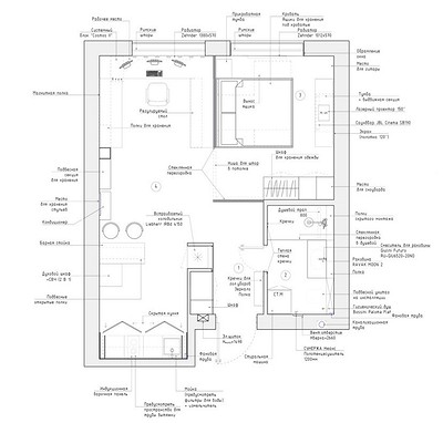
Планировка
Квартира была евродвушкой. Так называют планировки, где есть кухня-гостиная и небольшая изолированная спальня. В этом случае были еще и раздельные ванная с санузлом. Так как заказчик живет один, решили оформить студийное пространство. Перегородки между кухней-гостиной и комнатой разобрали. Заменили их на стеклянные перегородки с черным профилем. Таким образом солнечный свет попадает даже в прихожую.

Стенку между прихожей и кухней также перестроили, чтобы вписать системы хранения. Объединили ванную с санузлом.
Отделка
В интерьере решили придерживаться минимализма, поэтому для отделки выбрали достаточно простые материалы. На стенах — краска. На полу — инженерная доска (даже на кухне и в прихожей). Фартук кухни оформлен крупноформатным керамогранитом под мрамор с коричневыми и желтыми прожилками. Основной цвет стен — белый, но акценты в виде светлого зеленого введены в мебели. В ванной комнате зеленый раскрылся на максимум. Зеленая краска на стенах в этой комнате сочетается с серой плиткой под бетон в зоне душа и на полу.

Мебель и системы хранения
Системы хранения спланировали в соответствии с потребностями хозяина. Так, дома он почти не готовит. Поэтому кухню сделали минимальной — линейный гарнитур с верхними и нижними шкафами, небольшой раковиной, варочной панелью на две конфорки.

Но самое интересное — кухню можно скрыть за дверями-гормошками. В закрытом виде утилитарная зона выглядит буквально как шкаф. Холодильник встроен отдельно рядом, тоже в шкаф.

Обеденный стол заменили полубарной стойкой, а встроенную СВЧ-печь установили в отдельно стоящем модуле-тумбе.

В прихожей предусмотрели шкаф для одежды, крючки для повседневных вещей и полку для разных мелочей, которые удобно положить при входе.
Рабочая зона организована на плошади гостиной. Здесь П-образная столешница. У окна — основной рабочий стол с монитором и удобным креслом. Под стеклянной перегородкой, которая отделяет спальню — тумбы для хранения, а напротив — система из открытых, закрытых полок, пегборда, а также еще один стол для работы и хобби хозяина.

В спальне — встроенный шкаф для одежды (скомбинированы глухие фасады, такие же как на кухне, и из рифленого стекла — выглядят «легче», но позволяют скрыть возможный беспорядок на полках), а также тумба напротив кровати, состоящая из двух модулей — консоли и напольной тумбы.

Тумба разработана для проектора нового поколения, который размещен в выдвижном ящике. Экран не ставили, проектор показывает четкое изображение и на стену, выкрашенную краской.

В ванной комнате — тумба под раковину, сделанная по тому же принципу. Она двойная: столешница и под ней подвесной модуль с выдвижными ящиками. Также есть шкаф со стирально-сушильной машиной и местом для хранения, для бутылочек с шампунями и гелями предусмотрена полка-ниша в душевой.
Освещение
Дизайнеры сделали встроенное освещение — это линейные светильники в гостиной, спальне, прихожей. Яркость можно регулировать со смартфона. В ванной комнате — трек с поворотными спотами, а также подсветка зеркала. Подсветки использовали и на кухне для создания функционального освещения. Над полубарным столом — два подвеса.

Мадина Богатырева Дизайнер, автор проекта, основатель студии MAD ABOUT INTERIOR
Наш заказчик — молодой человек, который дистанционно работает в сфере IT. Для него важно иметь эргономичную большую рабочую зону и визуально не перегруженное окружение. Исходя из этих критериев мы пришли к выводу, что идеально подойдет современный минимализм, поэтому в нашем проекте стены окрашивались в спокойный оттенок, было решено сделать скрытую кухню, чтобы иметь возможность упростить интерьер и спрятать кухонный гарнитур за минималистичными деревянными дверями. Для зонирования использовались стеклянные перегородки, которые визуально увеличивают пространство, пропускают дневной свет и не перегружают интерьер. По такому же принципу проектировались все шкафы. Основным колористическим вдохновением выступал любимый художник заказчика Ben Ashton, в чьих работах часто встречаются оттенки зеленого, серого и коричневого. Вся квартира выдержана в этой цветовой гамме.
11 фото

Кухня

Кухня

Кухня

Кухня

Кухня

Кухня

Рабочая зона

Рабочая зона

Спальня

Спальня

Спальня Редакция предупреждает, что в соответствии с Жилищным кодексом РФ требуется согласование проводимых переустройств и перепланировок.

Смотреть перепланировку

Анастасия Дубровина

Максим Максимов

Кристина Бурак

Санубар Алмазлы Маленькие квартиры Минимализм Светлые цвета Зеленый цвет